GEGENÜBER HIRSCHSTETTNER BADETEICH!

Wohnung , 1220 Wien , Ziegelhofstraße 72


Beschreibung der Immobilie

GEGENÜBER HIRSCHSTETTNER BADETEICH!

2 ZIMMER MIT LOGGIA! GEGENÜBER BADETEICH!



REINE MIETWOHNUNG - KEIN ANKAUF MÖGLICH!





LOGGIA BEFINDET SEITLICH ZWISCHEN 2 HÄUSERN!


Hinweis gemäß Energieausweisvorlagegesetz: Ein Energieausweis wurde vom Eigentümer bzw. Verkäufer, nach unserer Aufklärung über die generell geltende Vorlagepflicht, sowie Aufforderung zu seiner Erstellung noch nicht vorgelegt. Daher gilt zumindest eine dem Alter und der Art des Gebäudes entsprechende Gesamtenergieeffizienz als vereinbart. Wir übernehmen keinerlei Gewähr oder Haftung für die tatsächliche Energieeffizienz der angebotenen Immobilie.


Der Immobilienmakler erklärt, dass er – entgegen dem in der Immobilienwirtschaft üblichen Geschäftsgebrauch des Doppelmaklers – einseitig nur für den Vermieter tätig ist.

Infrastruktur / Entfernungen

Gesundheit
Arzt <275m
Apotheke <475m
Klinik <800m
Krankenhaus <2.975m

Kinder & Schulen
Schule <375m
Kindergarten <125m
Universität <3.075m
Höhere Schule <3.025m

Nahversorgung
Supermarkt <550m
Bäckerei <450m
Einkaufszentrum <1.450m

Sonstige
Bank <750m
Geldautomat <550m
Post <800m
Polizei <875m

Verkehr
Bus <150m
U-Bahn <1.200m
Straßenbahn <400m
Bahnhof <1.175m
Autobahnanschluss <1.125m

Angaben Entfernung Luftlinie / Quelle: OpenStreetMap

Eckdaten Objektnr. 2999

Art: Wohnung
Land: Österreich
Gesamtmiete: 878,00
Kaltmiete (netto): 878,00 €
Kaltmiete: 878,00 €
Provision: Gemäß Erstauftraggeberprinzip bezahlt der Abgeber die Provision.
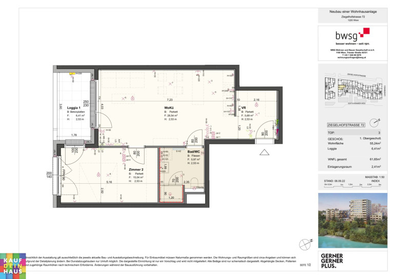
Wohnfläche: 55,24 m²
Nutzfläche: 61,65 m²
Zimmer: 2
WC: 1
Immobilie merken Exposé

Ausstattung

Personenaufzug


Immobilie anfragen


Ihre persönliche Beratung

KDH Immobilien GmbH

Simone Unger-Ullmann

KDH Immobilien GmbH

T +43 660 340 32 29