Modernes Wohnen auf drei Ebenen - PROVISIONSFREI!

Haus - Reihenhaus, 1140 Wien , Linzer Straße


Beschreibung der Immobilie

Modernes Wohnen auf drei Ebenen - PROVISIONSFREI!

PROVISIONSFREI für den Käufer!



Die attraktive Lage nahe der Hütteldorfer Straße bietet eine sehr gute Infrastruktur mit Nahversorgern des täglichen Bedarfs in unmittelbarer Umgebung sowie vielfältigen Einkaufsmöglichkeiten im Auhof Center. Schulen sind fußläufig bzw. mit öffentlichen Verkehrsmitteln gut erreichbar.



Dieses hochwertig ausgeführte Townhouse überzeugt durch seine durchdachte Raumaufteilung auf drei Ebenen, moderne Ausstattung und ein Wohnkonzept, das sowohl Familien als auch anspruchsvolle Paare begeistert. Großzügige Fensterflächen sorgen für helle, freundliche Räume und ein angenehmes Wohngefühl.



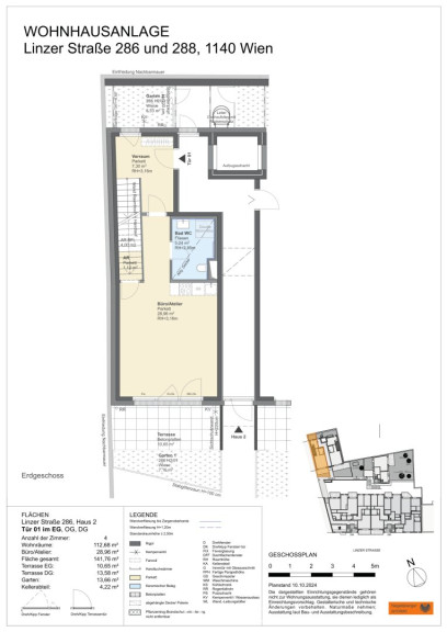
Raumaufteilung



Erdgeschoss



  • einladender Vorraum
  • Büro / Gästezimmer
  • Badezimmer mit Dusche und WC
  • Abstellmöglichkeiten
  • direkter Zugang zur Terrasse und zum Gartenbereich


Obergeschoss



  • zentraler Vorraum
  • zwei gut geschnittene Zimmer (ideal als Schlaf-, Kinder- oder Arbeitszimmer)
  • Badezimmer mit Badewanne
  • separates WC
  • praktischer Abstellraum


Dachgeschoss



  • großzügige Wohnküche
  • direkter Ausgang auf die Terrasse
  • zusätzlicher Abstellraum
  • beeindruckendes Wohngefühl durch die erhöhte Lage


Eine ausgezeichnete Verkehrsanbindung besteht durch:



  • die Straßenbahnlinie 52 nahezu vor der Haustüre
  • die Buslinie 47A mit Anschluss an die U4 (Ober St. Veit)
  • die Straßenbahnlinie 49 mit Anbindung an die U3


Die A1-Autobahnauffahrt Auhof ist rasch erreichbar.



Die Wohnung wird schlüsselfertig übergeben und verfügt über Parkettböden in den Wohnräumen, eine geschmackvolle Ausstattung sowie die Verwendung hochwertiger Materialien.



Beheizung und Kühlung erfolgen über eine komfortable Deckenheizung und -kühlung mittels effizienter Wärmepumpenanlage mit Geothermie (Tiefenbohrungen) und Sonnenkollektoren und sorgen für ein angenehmes Wohnklima.



Die Fenster sind mit außenliegendem Sonnenschutz (Raffstores) ausgestattet, einzelne Fenster verfügen über Tuchbeschattung. Die Bedienung erfolgt bequem per Funkfernbedienung. Ein Lift ermöglicht die barrierefreie Erreichbarkeit aller Wohnetagen.



Stellplätze in der Tiefgarage können ab € 34.500,– erworben werden.


Wir weisen darauf hin, dass zwischen dem Vermittler und dem zu vermittelnden Dritten ein familiäres oder wirtschaftliches Naheverhältnis besteht.


Der Vermittler ist als Doppelmakler tätig.

Infrastruktur / Entfernungen

Gesundheit
Arzt <250m
Apotheke <500m
Klinik <1.750m
Krankenhaus <1.250m

Kinder & Schulen
Schule <250m
Kindergarten <250m
Universität <1.750m
Höhere Schule <3.500m

Nahversorgung
Supermarkt <500m
Bäckerei <500m
Einkaufszentrum <3.250m

Sonstige
Geldautomat <500m
Bank <500m
Post <500m
Polizei <1.000m

Verkehr
Bus <250m
U-Bahn <750m
Straßenbahn <250m
Bahnhof <750m
Autobahnanschluss <4.250m

Angaben Entfernung Luftlinie / Quelle: OpenStreetMap

Eckdaten Objektnr. 1609/46929

Art: Haus - Reihenhaus
Land: Österreich
Baujahr: 2024
Zustand: Erstbezug
Alter: Neubau
Kaufpreis: 849.000,00
Provision: Provision bezahlt der Abgeber.
Betriebskosten: 293,82 €
MwSt Gesamt: 29,38 €
Wohnfläche: 141,76 m²
Zimmer: 4
Bäder: 2
WC: 3
Terrassen: 2
Garten: 14,84 m²
Heizwärmebedarf:  B  26,10 kWh/m²a
fGEE:  A++  0,75
Immobilie merken Exposé

Ausstattung

Parkett, Fliesen, Erdwärme, Badewanne, Garage


Immobilie anfragen


Ihre persönliche Beratung

RE/MAX First - REM Immobilienmakler GmbH & Co KG

Selina Harnuboglu

RE/MAX First - REM Immobilienmakler Gmbh & Co KG

H +43 664 502 41 77