Beschreibung der Immobilie
4-Zimmer-Wohnung mit Komfort und Ausblick - Design trifft Panorama
Baubeginn: Frühsommer 2026
Voraussichtliche Fertigstellung: Frühjahr 2027
Parkplätze: Optional erhältlich (nicht im Kaufpreis enthalten)
Dieses Wohnbauprojekt vereint hochwertige Architektur, energieeffiziente Bauweise und modernen Wohnkomfort. Hier entsteht ein Zuhause für Menschen, die Wert auf Qualität, Design und nachhaltiges Wohnen legen – eingebettet in eine ruhige und zugleich zentrale Lage.
Da das Haus noch nicht errichtet ist, können Grundriss und Raumaufteilung individuell an Ihre Wünsche angepasst werden – egal ob großzügige Eigentumswohnung oder attraktive Anlegerwohnung mit herrlicher Aussicht.
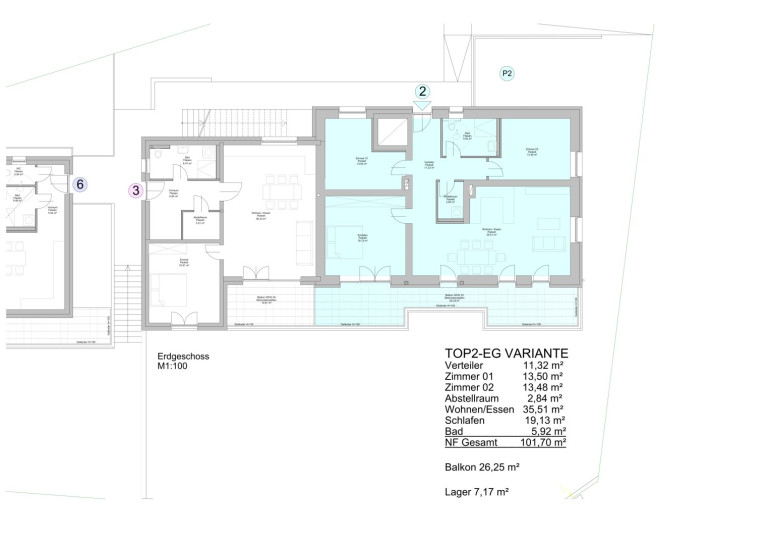
Diese attraktive Wohnungsvariante ist ebenerdig direkt vom Parkplatz aus erreichbar und begeistert mit einer großzügigen Nutzfläche von ca. 101,7 m² sowie einem modernen, lichtdurchfluteten Raumkonzept.
Vom einladenden Vorraum aus sind zwei flexibel nutzbare Zimmer erreichbar, die sich ideal als Kinderzimmer, Arbeitszimmer oder Gästezimmer eignen. Ebenfalls vom Vorraum aus zugänglich sind das rollstuhlgerechte Badezimmer mit Fenster sowie ein separates WC.
Das Herzstück der Wohnung bildet der großzügige Wohn- und Essbereich mit direktem Zugang zum Schlafzimmer und zum ca. 26,25 m² großen Balkon. Dieser erweitert den Wohnraum nach draußen und lädt dazu ein, sonnige Stunden und den schönen Ausblick zu genießen – ob beim Frühstück im Freien oder bei einem entspannten Abend.
Die Wohnung wird in massiver, energieeffizienter Bauweise errichtet und mit Holz-Alu-Fenstern mit 3-fach-Isolierverglasung sowie Raffstores ausgestattet. Hochwertige Materialien und klare Architektur schaffen ein modernes Wohngefühl mit Stil und Qualität.
Ein Kellerabteil sorgt für zusätzlichen Stauraum, Fahrradabstellplätze stehen gemeinschaftlich zur Verfügung. Parkplätze können bei Bedarf optional erworben werden.
Infrastruktur / Entfernungen
Gesundheit
Arzt <500m
Apotheke <1.000m
Klinik <2.500m
Krankenhaus <1.000m
Kinder & Schulen
Schule <500m
Kindergarten <500m
Nahversorgung
Supermarkt <1.000m
Bäckerei <1.000m
Einkaufszentrum <1.500m
Sonstige
Geldautomat <1.000m
Bank <1.000m
Post <1.000m
Polizei <1.000m
Verkehr
Bus <500m
Bahnhof <1.500m
Angaben Entfernung Luftlinie / Quelle: OpenStreetMap
Eckdaten Objektnr. 961/35918
| Art: | Wohnung |
| Land: | Österreich |
| Baujahr: | 2026 |
| Alter: | Neubau |
| Kaufpreis: | 415.000,00 € |
| Nutzfläche: | 101,70 m² |
| Zimmer: | 4 |
| Bäder: | 1 |
| Balkone: | 1 |
| Keller: | 7,17 m² |
| Heizwärmebedarf: | C 63,00 kWh/m²a |
| fGEE: | A 0,81 |
Ihre persönliche Beratung
Dieser Makler ist ein offizielles Mitglied des IR – ir.at Mehr Erfahren

