Gepflegtes Landhaus mit Carport, Nebengebäude, Garten und uneinsehbarem Innenhof
Haus
,
3762
Ludweis-Aigen
Diese schöne Liegenschaft befindet sich in der malerischen Ortschaft Blumau an der Wild umgeben von sanften Hügeln und idyllischen Wäldern, bietet sie eine perfekte Rückzugsmöglichkeit vom hektischen Alltag. Die Entfernung nach Ludweis-Aigen (zuständige Gemeinde) beträgt ca. 4 km. Die Entfernung nach Groß Siegharts beträgt ca. 7 km. Die Entfernung nach Irnfritz-Bahnhof (nächstgelegener Bahnhof) beträgt ca. 7 km.
Beschreibung der Immobilie
Gepflegtes Landhaus mit Carport, Nebengebäude, Garten und uneinsehbarem Innenhof
Herzlich Willkommen in Ihrem eigenen Rückzugsort in der malerischen Ortschaft Blumau an der Wild nahe der Gemeinde Ludweis-Aigen. Betreten Sie das Haus und lassen Sie sich von der schönen Ausrichtung und Raumaufteilung begeistern. Die gut überlegte Aufteilung der einzelnen Räume sowie die diversen Nutzungsmöglichkeiten sind hier voll und ganz gegeben. Aufgrund der kurzen Entfernung zum nächstgelegenen Bahnhof ist diese Liegenschaft auch bestens geeignet für Pendler:innen.
Machen Sie sich keine Sorgen um lästige Parkplatzsuche, denn Sie haben hier ein eigenes Carport für 2 Kfz-Fahrzeuge zur Verfügung. Sie haben auch alternativ die Möglichkeit Ihre Liegenschaft von der Rückseite zu befahren und dort ebenfalls 2 Kfz-Fahrzeuge im Freien auf Ihrem Grundstück zu parken. Dies erleichtert Ihnen und Ihrer Familie sowie Ihren Freunden die unangenehme Parkplatzsuche.
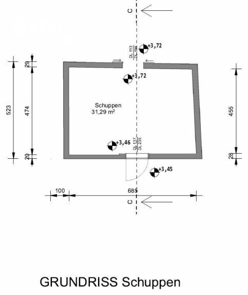
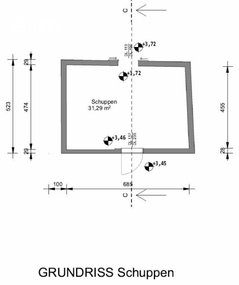
Für Bastler und Handwerker gibt es einen großen Schuppen mit ausreichend Platz um jeglichen Hobbies nachgehen zu können. Egal ob als Werkstatt oder als Lagerraum; hier haben Sie ausreichend Platz.
Der uneinsehbare, auf mehreren Ebenen angelegte, Innenhof mit Terrasse bietet den perfekten Ort, um dem stressigen Alltag zu entfliehen und die Seele baumeln zu lassen. Auch Ihre vierbeinige Freunde werden sich hier wohlfühlen, da man noch gern den hinteren Garten nutzen kann.
Die Liegenschaft teilt sich auf in:
- Wohnhaus (KG, EG, DG)
- Carport mit Zusatzgrundstück
- Vorgarten mit Brunnen
- Innenhof mit Terrasse
- Schuppen
- Garten
Das Kellergeschoss (ca. 34 m²) unterteilt sich in:
- Eingangsbereich
- Gewölbekellerraum mit Hauswasserwerk
- Aufgang zum Erdgeschoss
Das Erdgeschoss (ca. 91 m²) unterteilt sich in:
- Flur mit direktem Ausgang zum Innenhof
- Esszimmer
- Wohnzimmer mit Klimagerät
- Schlafzimmer
- Küche mit Klimagerät und Holz-Zentralheizung
- Badezimmer mit Badewanne und Waschmaschinenanschluss
- Durchgangszimmer
- WC mit Fenster
- Büro mit Dachbodentreppe und direktem Ausgang zum Innenhof
- Abgang zum Kellergeschoss
Das Dachgeschoss besteht aus einem Dachbodenraum.
Der Schuppen besteht aus einem ca. 31 m² großen Schuppenraum als Werkstatt oder Lagerraum.
Letzte Sanierungen:
- 2009: Einbau Kunststofffenster
- 2009: Einbau neue Eingangstür
- 2009: Erneuerung der Fassade
- 2012: Einbau von zwei Klimageräten
- 2020: Einbau 3x Solarpaneele am Dach
- 2020: Einbau ca. 200 L Warmwasserspeicher im DG um Platz zu sparen
Vorteile für Kaufinteressent:innen:
- Parkmöglichkeit Ihrer KFZ Fahrzeuge im eigenen Carport
- Individuell nutzbarer Schuppen für Ihre Hobbys
- Terrasse zur Entspannung im eigenen Innenhof
- Gartengrundstück für Ihre Vierbeiner
- Zufahrtsmöglichkeit zur Liegenschaft auch auf der Rückseite beim Garten
- Kurze Entfernung zum nächstgelegenen Bahnhof für Pendler
Zusatzinformationen für Kaufinteressent:innen:
- Die ehemaligen zwei Senkgruben wurden zugeschüttet und sind inaktiv.
- Ein A1 Container (wurde vereinbart) befindet sich auf dem Grundstück beim Carport.
- Der zweite Brunnen auf dem Grundstück beim Carport ist inaktiv.
- Die Bausubstanz der Liegenschaft entspricht den damalig, verwendeten Baumaterialien zum Errichtungszeitpunkt.
Gebäudeinfrastruktur:
Die Beheizung der Liegenschaft erfolgt über eine Holz-Zentralheizung. Sie haben zusätzlich im Winter die Möglichkeit mit den beiden verbauten Klimageräten die Liegenschaft auch zusätzlich zu beheizen. Des Weiteren können Sie mit diesen beiden Klimageräten auch im Sommer für eine wohlige Atmosphäre sorgen. Die Warmwasseraufbereitung erfolgt ebenfalls über die Zentralheizung und zusätzlich wurden drei Solarpaneele auf dem Dach angebracht. Die Liegenschaft ist an das öffentliche Kanalnetz angeschlossen. Die Wasserversorgung erfolgt über einen eigenen Hausbrunnen im Vorgarten. Das Glasfasernetz wurde bereits in das Haus eingeleitet.
Überzeugt? Dann zögern Sie nicht und vereinbaren Sie noch heute einen Besichtigungstermin.
Besichtigungen des Objekts können nach vorheriger Terminabsprache von Montag bis Freitag stattfinden.
(keine Besichtigungen an Feiertagen und Wochenenden)
Hier geht´s zum 360° Rundgang: https://app.immoviewer.com/portal/tour/3139999?accessKey=699a
Viele weitere Rundgänge sowie alle neuen s REAL Immobilienangebote finden Sie auf www.sreal.at.
Alle Angaben sind ohne Gewähr und basieren ausschließlich auf Informationen, welche uns von den Eigentümern, Gemeinden, Bauämtern, Hausverwaltungen und etwaigen behördlichen Instanzen zur Verfügung gestellt wurden.
Kauf und Finanzierung aus einer Hand - nutzen Sie die Synergien der Erste Bank & Sparkassen-Unternehmensgruppe. Gerne arrangieren wir für Sie ein unverbindliches Finanzierungsgespräch mit den Finanzierungsspezialisten der Erste Bank & Sparkasse.
Infrastruktur / Entfernungen
Gesundheit
Arzt <3.500m
Apotheke <5.000m
Kinder & Schulen
Schule <5.000m
Kindergarten <5.000m
Nahversorgung
Supermarkt <4.500m
Bäckerei <5.000m
Sonstige
Bank <5.000m
Polizei <5.000m
Post <5.500m
Geldautomat <5.000m
Verkehr
Bus <500m
Bahnhof <5.500m
Angaben Entfernung Luftlinie / Quelle: OpenStreetMap
Eckdaten Objektnr. 960/74421
| Art: | Haus |
| Land: | Österreich |
| Zustand: | Gepflegt |
| Möbliert: | Teil |
| Kaufpreis: | 119.000,00 € |
| Provision: | 3% des Kaufpreises zzgl. 20% USt. |
| Nutzfläche: | 91,00 m² |
| Grundstücksfl.: | 653,00 m² |
| Bäder: | 1 |
| WC: | 1 |
| Terrassen: | 1 |
| Stellplätze: | 4 |
| Garten: | 487,00 m² |
| Keller: | 34,00 m² |
| Heizwärmebedarf: | G 425,50 kWh/m²a |
| fGEE: | F 4,00 |
Ausstattung
Fliesen, Kunststoffboden, Parkett, Elektro, Solarenergie, Zentralheizung, Einbauküche, Bad mit Fenster, Badewanne, Kabel/Satelliten-TV, Carport
Ihre persönliche Beratung
Dieser Makler ist ein offizielles Mitglied des IR – ir.at Mehr Erfahren

