„Licht. Ruhe. Weitblick. Dachgeschossqualität in Brunn am Gebirge“ | ZELLMANN IMMOBILIEN

Wohnung - Dachgeschoß, 2345 Brunn am Gebirge


Beschreibung der Immobilie

„Licht. Ruhe. Weitblick. Dachgeschossqualität in Brunn am Gebirge“ | ZELLMANN IMMOBILIEN

Brunn am Gebirge | Wohnen mit Weitblick, Komfort und Effizienz



────────────────────────────────────────────────────────────────────────────



Wohnen über den Dingen – Licht, Ruhe und Aussicht



Diese Dachgeschosswohnung ist mehr als ein Neubauobjekt – sie ist ein Rückzugsort mit Charakter. Hochwertig geplant, technisch durchdacht und architektonisch klar gestaltet, verbindet sie modernes Wohnen mit einem spürbaren Mehr an Lebensqualität. Die erhöhte Lage im Dachgeschoss eröffnet eine freie, weitläufige Aussicht, die den Wohnraum optisch vergrößert und zu jeder Tageszeit ein Gefühl von Ruhe und Großzügigkeit vermittelt.



Hier wohnt man hell, luftig und angenehm zurückgezogen – mit dem beruhigenden Gefühl, ganz oben angekommen zu sein.



────────────────────────────────────────────────────────────────────────────



Lage & Umfeld



Die Wohnung befindet sich in Brunn am Gebirge, einer der beliebtesten Wohnlagen im südlichen Wiener Umland. Die Gemeinde steht für hohe Lebensqualität, sehr gute Infrastruktur und eine ideale Verbindung zwischen Stadt und Natur. Einkaufsmöglichkeiten, Gastronomie, Schulen sowie öffentliche und individuelle Verkehrsanbindungen sind rasch erreichbar, während das unmittelbare Wohnumfeld ruhig, gepflegt und überschaubar bleibt.



Ein Standort, der sowohl für Eigennutzer als auch für Anleger langfristig überzeugt.



────────────────────────────────────────────────────────────────────────────



Die Wohnung – durchdacht, großzügig, lichtdurchflutet



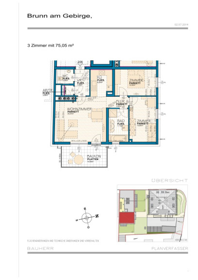
Die Dachgeschosswohnung Top 6 verfügt über eine Wohnnutzfläche von rund 75 m² und überzeugt durch einen klar strukturierten, sehr gut nutzbaren Grundriss.



Der Mittelpunkt der Wohnung ist der großzügige Wohn‑/Essbereich, der dank seiner offenen Gestaltung und der großen Fensterflächen besonders hell und einladend wirkt. Die erhöhte Lage sorgt für einen offenen Blick ins Freie und unterstreicht das Gefühl von Weite und Freiheit.



Der Balkon erweitert den Wohnraum harmonisch nach draußen und wird zum privaten Logenplatz: ein Ort für entspannte Morgenstunden, ruhige Abende und einen Ausblick, den man täglich neu schätzt.



Zwei weitere Zimmer bieten vielseitige Nutzungsmöglichkeiten – ob als Schlafzimmer, Kinderzimmer, Gästezimmer oder Homeoffice. Die angenehmen Raumgrößen ermöglichen eine komfortable Möblierung und flexible Lebenskonzepte.



Bad, separates WC, Abstellraum und Vorraum sind funktional angeordnet und runden das stimmige Gesamtbild dieser Wohnung ab.



────────────────────────────────────────────────────────────────────────────



Dachgeschoss mit besonderem Komfort



Als Dachgeschosswohnung genießt diese Einheit eine besondere Stellung innerhalb der Wohnhausanlage: keine darüberliegenden Nachbarn, ein hohes Maß an Privatsphäre und ein spürbares Plus an Ruhe.



Ein herausragendes Ausstattungsmerkmal ist der Aufzug mit direktem Zugang in die Wohnung. Diskret, komfortabel und barrierearm gelangt man direkt aus der Tiefgarage oder dem Eingangsbereich bis vor die eigene Wohnungstüre – ein Detail, das den exklusiven Charakter dieser Immobilie deutlich unterstreicht und den Alltag spürbar erleichtert.



────────────────────────────────────────────────────────────────────────────



Energieeffizienz & Raumklima – Qualität, die man spürt



Der Energieausweis dieser Wohnung weist ausgezeichnete Kennzahlen auf und steht für eine moderne, energieeffiziente Bauweise. Dies bedeutet nicht nur ein nachhaltiges Wohnkonzept, sondern auch langfristig niedrige Heiz‑ und Betriebskosten.



Gerade im Dachgeschoss zeigt sich die Qualität der Bauweise besonders deutlich: angenehme Temperaturen zu jeder Jahreszeit und ein ausgewogenes Raumklima.



Die automatische, kontrollierte Wohnraumlüftung sorgt kontinuierlich für frische Luft in allen Wohnräumen. Sie gewährleistet einen regelmäßigen Luftaustausch, reduziert Feuchtigkeit und trägt wesentlich zu einem gesunden, behaglichen Wohngefühl bei – ganz ohne manuelles Lüften. Ein entscheidender Vorteil, insbesondere im Dachgeschoss.



Die Fußbodenheizung ergänzt dieses Komfortpaket und sorgt für gleichmäßige, angenehme Wärme in allen Räumen.



────────────────────────────────────────────────────────────────────────────



Parken & Nebenflächen



Ein Garagenplatz in der hauseigenen Tiefgarage kann optional angemietet werden. Die Zufahrt ist komfortabel und wettergeschützt, der Zugang erfolgt bequem über den Lift. Zusätzlich steht ein Kellerabteil zur Verfügung, das wertvollen Stauraum für Alltag, Sport‑ und Freizeitutensilien bietet.



────────────────────────────────────────────────────────────────────────────



Fazit – Dachgeschosswohnen mit Seltenheitswert



Diese Wohnung überzeugt durch eine Kombination aus freier Aussicht, Dachgeschossruhe, moderner Energieeffizienz, automatischer Wohnraumlüftung und dem Luxus eines Aufzugs direkt in die Wohnung. Eine Immobilie mit Substanz, Qualität und nachhaltigem Wert – ideal für Menschen, die bewusst wohnen und langfristig denken.



────────────────────────────────────────────────────────────────────────────



Rechtliche Hinweise / Kommunikation



Bitte kontrollieren Sie auch Ihren SPAM‑ bzw. WERBE‑Ordner, da E‑Mails manchmal dort landen können. Wir antworten in der Regel innerhalb weniger Stunden – auch am Wochenende. Teilen Sie uns gerne Ihre Telefonnummer mit, damit wir Sie zusätzlich per SMS über die Versendung des Exposés informieren können.



Dieses Objekt wird unverbindlich und freibleibend angeboten. Alle Angaben basieren auf Informationen des Eigentümers sowie den vorliegenden Unterlagen und wurden mit größter Sorgfalt zusammengestellt. Für die Richtigkeit, Vollständigkeit und Aktualität dieser Angaben wird keine Gewähr übernommen. Änderungen, Irrtümer und Zwischenverkauf bleiben ausdrücklich vorbehalten. Maßangaben sind Circa‑Angaben. Das Exposé stellt kein verbindliches Angebot dar. Bei erfolgreichem Abschlussfall fällt eine Käuferprovision in Höhe von 3 % des Kaufpreises zzgl. 20 % USt. an – gemäß Immobilienmaklerverordnung BGBI. 262 und 297/1996.



────────────────────────────────────────────────────────────────────────────



Unser Service – Vertrauen. Service. Qualität.



Bei ZELLMANN IMMOBILIEN legen wir größten Wert auf persönliche Beratung, Transparenz und Service auf höchstem Niveau. Jede Besichtigung ist unverbindlich und findet in entspannter Atmosphäre statt. Nach Vertragsabschluss übernehmen wir selbstverständlich sämtliche Formalitäten – von der Übergabedokumentation bis zur Abstimmung mit Hausverwaltung und Energieversorgern. Ihr Anliegen ist bei uns in den besten Händen – auch nach Vertragsabschluss.

Noch nichts gefunden? Wir informieren Sie über geeignete Immobilienangebote noch vor allen anderen.
Legen Sie jetzt Ihren individuellen Suchagenten unter folgendem Link an. Wir schicken Ihnen passende Immobilien exklusiv vorab zu. 



-> Suchagent anlegen

Infrastruktur / Entfernungen

Gesundheit
Arzt <500m
Apotheke <500m
Klinik <3.000m
Krankenhaus <2.000m

Kinder & Schulen
Schule <500m
Kindergarten <500m
Universität <9.000m
Höhere Schule <4.000m

Nahversorgung
Supermarkt <1.000m
Bäckerei <500m
Einkaufszentrum <2.500m

Sonstige
Bank <500m
Geldautomat <500m
Post <500m
Polizei <1.000m

Verkehr
Bus <500m
U-Bahn <3.500m
Straßenbahn <3.500m
Bahnhof <500m
Autobahnanschluss <1.500m

Angaben Entfernung Luftlinie / Quelle: OpenStreetMap

Eckdaten Objektnr. 25346

Art: Wohnung - Dachgeschoß
Land: Österreich
Baujahr: 2015
Zustand: Neuwertig
Alter: Neubau
Kaufpreis: 450.000,00
Betriebskosten: 195,13 €
MwSt Gesamt: 19,51 €
Wohnfläche: 75,05 m²
Zimmer: 3,50
Bäder: 1
WC: 1
Balkone: 1
Heizwärmebedarf:  A+  15,48 kWh/m²a
Immobilie merken Exposé

Ausstattung

Parkett, Fliesen, Fernwärme, Wohnküche / offene Küche, Personenaufzug, Bad mit Fenster, Badewanne, Dusche, Kabel/Satelliten-TV, Garage


Immobilie anfragen


Ihre persönliche Beratung

ZELLMANN IMMOBILIEN GmbH | Vertrauen. Service. Qualität.

Nicole Zellmann

ZELLMANN IMMOBILIEN

T +43 699 15 15 22 01

H +43 699 15 15 22 01