Schönes BÜRO - PRAXIS - ATELIER nahe Kreuzgasse I Währinger Straße

Büro / Praxis , 1180 Wien , Staudgasse


Beschreibung der Immobilie

Schönes BÜRO - PRAXIS - ATELIER nahe Kreuzgasse I Währinger Straße

Sie suchen ein nettes Büro - Praxis - Atelier in guter Lage?



Die Räumlichkeiten befinden sich im Erdgeschoß (barrierefrei) in einem gepflegten Stilhaus in Währing und bieten eine Vielzahl an Möglichkeiten ob als Büro, Praxis oder Atelier.



LAGE
Das Objekt befindet sich nahe der Kreuzgasse beim Johann-Nepomuk-Vogel-Platz. Eine gute öffentliche Anbindung mit den Straßenbahnlinien 9, 40, 41, 42 sowie Geschäfte des täglichen Bedarfs (Penny, Bipa, Billa, Apotheke) finden sich in unmittelbarer Nähe. Ebenso rasch erreichbar die Währinger Straße Richtung U6-Bahnstation Volksoper sowie die U6-Bahnstation Michelbeuern AKH.



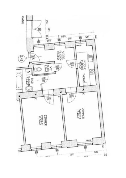
RAUMAUFTEILUNG
Vorraum

2 Zimmer 

Küche

Bad

WC



Das Objekt überzeugt mit einem guten Grundriss und bieten jede Menge Gestaltungsvielfalt. Eine angenehme Raumhöhe, moderne Kunststofffenster und Parkettböden vermitteln ein angenehmes Raumgefühl.



Das Büro wird ab sofort auf 5 Jahre befristet vermietet (Verlängerungsoption).



Bitte haben Sie Verständnis dass Anfragen ausschließlich mit vollständiger Angaben bearbeitet werden.



Bei Interesse an einer Besichtigung bzw. Fragen stehe ich Ihnen unter der Mobil-Nr.: 0664/511 99 17 gerne auch am Wochenende persönlich zur Verfügung.



Der guten Ordnung halber wird darauf hingewiesen, dass alle Angaben auf Informationen des Abgebers oder ihm beauftragten Dritten beruhen. Wir übernehmen keine Gewähr/Haftung für die Vollständigkeit, Richtigkeit und Aktualität dieser Angaben. Irrtum und Zwischenvermietung vorbehalten.


Wir weisen darauf hin, dass zwischen dem Vermittler und dem zu vermittelnden Dritten ein familiäres oder wirtschaftliches Naheverhältnis besteht.

Infrastruktur / Entfernungen

Gesundheit
Arzt <250m
Apotheke <500m
Klinik <250m
Krankenhaus <750m

Kinder & Schulen
Schule <250m
Kindergarten <500m
Universität <1.000m
Höhere Schule <500m

Nahversorgung
Supermarkt <250m
Bäckerei <500m
Einkaufszentrum <1.000m

Sonstige
Geldautomat <500m
Bank <500m
Post <500m
Polizei <500m

Verkehr
Bus <250m
U-Bahn <750m
Straßenbahn <250m
Bahnhof <750m
Autobahnanschluss <2.500m

Angaben Entfernung Luftlinie / Quelle: OpenStreetMap

Eckdaten Objektnr. 6178/738

Art: Büro / Praxis
Land: Österreich
Baujahr: 1900
Zustand: Gepflegt
Alter: Altbau
Bürofläche: 63,23 m²
Zimmer: 2
Bäder: 1
WC: 1
Heizwärmebedarf:  D  93,09 kWh/m²a
fGEE:  D  1,74
Immobilie merken Exposé

Ausstattung

Fliesen, Parkett, Gas, Etagenheizung, Personenaufzug, Badewanne, Kabel/Satelliten-TV, Teeküche


Immobilie anfragen


Ihre persönliche Beratung

SAJOWITZ Immobilien

Karin Sajowitz

SAJOWITZ Immobilien

T +43 (0) 664 511 99 17

H +43 (0) 664 511 99 17