Altbau-Villa mit prunkvoller Fassade in Knittelfeld zur Sanierung mit Garten und Parkplatzmöglichkeiten

Zinshaus Renditeobjekt , 8720 Knittelfeld , Seckauerstraße


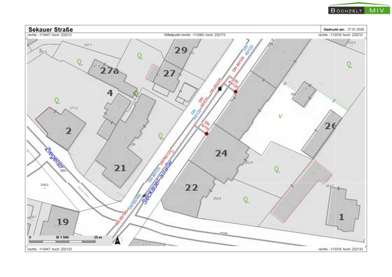
Diese wunderschöne Altbauvilla mit besonderem Flair befindet sich am Stadtrand von Knittelfeld, das Zentrum ist jedoch nur wenige Gehminuten entfernt. In der näheren Umgebung befinden sich einige Nahversorger und sie ist bestens mit öffentlichen Vermehrsmitteln zu erreichen (Bushaltestelle und Bahnhof in unmittelbarer Nähe). Parkplätze können auf Eigengrund realisiert werden, an der Straße gibt es viele öffentliche Dauerparkplätze. Knittelfeld gilt als EIsenbahnerstadt und zählt aktuell rund 13.000 Einwohner. Neben der ÖBB finden Sie viele weitere große Arbeitgeber in der Region wie z. B. die Obersteirische Molkerei, Austria Email, Sandvik, VOEST Alpine und viele weitere Betriebe. Die Nähe zum Red Bull Ring, sowie die gute Erreichbarkeit von Graz und Klagenfurt sind nur einige Vorzüge, die Knittelfeld zu bieten hat.

Beschreibung der Immobilie

Altbau-Villa mit prunkvoller Fassade in Knittelfeld zur Sanierung mit Garten und Parkplatzmöglichkeiten

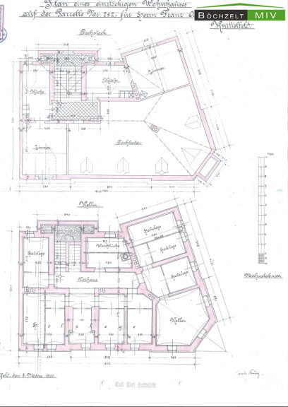
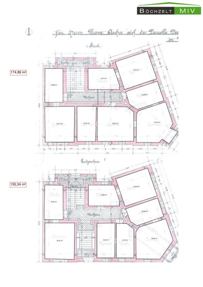
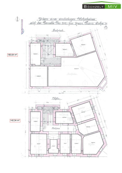
Zum Verkauf steht ein sanierungsbedürftiges Wohnhaus mit prunkvoller, gegliederter Fassade in der Seckauerstraße in Knittelfeld. Mit den nötigen Umbaumaßnahmen können dabei sechs bis neun moderne Altbauwohnungen in bester Knittelfelder Lage errichtet werden. Die 3 oberirdischen Geschosse (Erdgeschoss, 1. Obergeschoss und Dachgeschoss) weisen eine Fläche zwischen 155 - 181 m² auf, woraus sich eine Gesamtnutzfläche nach den Umbaumaßnahmen bzw. nach dem Dachgeschossausbau von ungefähr 480 m² ergibt. Das Objekt ist zudem voll unterkellert (ca. 142 m²).



Bisher wurden die jeweiligen Bestandseinheiten mit Einzelöfen beheizt. Es ist allerdings auch ein Gasanschluss im Keller vorhanden, an dem angeschlossen werden kann. Auch andere Heizungsalternativen wie z. B. Fernwärme oder eine Pelletsheizung wären denkbar, die Fernwärmeleitung liegt in der Straße, ein Anschlussangebot liegt bei Bedarf ebenfalls bereits vor. Das Objekt verfügt auch über einen großzügigen Hinterhof, der sich einerseits ideal für Eigengärten und Balkonflächen eignet, andererseits aber auch genügend Platz bietet um Parkplätze, Garagen oder Carports für künftige Mieter zu schaffen.







Aufgrund des Baujahres und des Erhaltungszustandes des Objektes würde sich auch die Sanierung unter Inanspruchnahme einer Wohnbauförderung anbieten. Mit der umfassenden Sanierung des Landes Steiermark werden 45% nicht rückzahlbare Annuitätenzuschüsse für die Sanierung gewährt. Zudem kommen Sie in den steuerlichen Genuss der 15tel Abschreibung und damit zur Reduktion Ihrer persönlichen Einkommenssteuerlast. Nähere Informationen zur umfassenden Sanierung finden Sie hier.



Wie erwähnt ist die Infrastruktur für eine geplante Wohnhaussanierung durch die unmittelbare Nähe zu Nahversorgern, Schulen, öffentlichen Verkehrsmitteln und dem Bahnhof als ideal anzusehen (fußläufig alles in ca. 5 Minuten erreichbar). Auch auch das Stadtzentrum Knittelfeld ist nur wenige Gehminuten entfernt.



Eckdaten und Ausstattungshighlights:



  • 623 m² Grundstücksgröße in perfekter Lage in Knittelfeld
  • ca. 330 m² Wohnnutzfläche im EG und 1. OG
  • ca. 181 m² Nutzfläche im Dachgeschoss
  • ca. 142 m² Kellerfläche
  • ca. 12,8 m² westseitige Terrasse
  • knapp 653 m² Gesamtnutzfläche (inkl. Keller und Dachgeschoss)
  • großzügige Gartenfläche für Freiflächen, Balkone, Stellplätze, Carports etc.
  • Fernwärme vor der Haustüre (Gasleitung im Keller)
  • Altbauvilla mit prunkvoller, gegliederter Fassade
  • Kaufpreis: 316.800 € 


Überzeugen Sie sich selbst und vereinbaren Sie noch heute einen Besichtigungstermin. Herr Weikl steht Ihnen gerne unter 0660/4740573 für Fragen und Terminvereinbarungen zur Verfügung.


Hinweis gemäß Energieausweisvorlagegesetz: Ein Energieausweis wurde vom Eigentümer bzw. Verkäufer, nach unserer Aufklärung über die generell geltende Vorlagepflicht, sowie Aufforderung zu seiner Erstellung noch nicht vorgelegt. Daher gilt zumindest eine dem Alter und der Art des Gebäudes entsprechende Gesamtenergieeffizienz als vereinbart. Wir übernehmen keinerlei Gewähr oder Haftung für die tatsächliche Energieeffizienz der angebotenen Immobilie.


Wir weisen darauf hin, dass zwischen dem Vermittler und dem zu vermittelnden Dritten ein familiäres oder wirtschaftliches Naheverhältnis besteht.


Der Vermittler ist als Doppelmakler tätig.

Infrastruktur / Entfernungen

Gesundheit
Arzt <750m
Apotheke <500m
Krankenhaus <1.250m

Kinder & Schulen
Schule <250m
Kindergarten <1.000m

Nahversorgung
Supermarkt <750m
Bäckerei <750m
Einkaufszentrum <7.000m

Sonstige
Bank <500m
Geldautomat <500m
Post <1.000m
Polizei <500m

Verkehr
Bus <500m
Autobahnanschluss <1.250m
Bahnhof <500m
Flughafen <7.250m

Angaben Entfernung Luftlinie / Quelle: OpenStreetMap

Eckdaten Objektnr. 6349/456

Art: Zinshaus Renditeobjekt
Land: Österreich
Baujahr: 1900
Zustand: Teil_vollrenovierungsbed
Alter: Altbau
Kaufpreis: 316.800,00
Kaufpreis / m²: 484,99 €
Provision: 3% des Kaufpreises zzgl. 20% USt.
Wohnfläche: 510,87 m²
Nutzfläche: 653,21 m²
Grundstücksfl.: 623,00 m²
Keller: 142,34 m²
Immobilie merken Exposé

Ausstattung

Parkett, Dielenboden, Kunststoffboden, Gas, Parkplatz


Immobilie anfragen


Ihre persönliche Beratung

Böchzelt Immobilien GmbH

Tobias Weikl

Böchzelt Immobilien GmbH

T +43 3512 82 237 71

H +43 660 474 05 73

F +43 3512 82 237 75