„Natur genießen – direkt vor der Tür“ Stilvolle Gartenwohnung mit Terrasse Top 20/1 - NES 101

Wohnung , 8530 Deutschlandsberg , Norbert-Ehrlich-Siedlung 101


Die Immobilien befinden sich in der Norbert-Ehrlich-Siedlung 101 in 8530 Deutschlandsberg. Sie überzeugen durch eine traumhafte Weitsicht und die Nähe zum Stadtzentrum.

Beschreibung der Immobilie

„Natur genießen – direkt vor der Tür“ Stilvolle Gartenwohnung mit Terrasse Top 20/1 - NES 101

NES 101 - STYLISCH und EXKLUSIV - Das Neubauprojekt von inStyleHaus!



Sich Zuhause fühlen - machen Sie jetzt den Schritt zum Eigenheim.



Unsere Mission: stilvolles Design und regionale Qualität vereint mit leistbarem Wohnen





Stylische Gartenwohnung in ruhiger Wohnsiedlung in Deutschlandsberg - nur 4 Wohneinheiten pro Haus



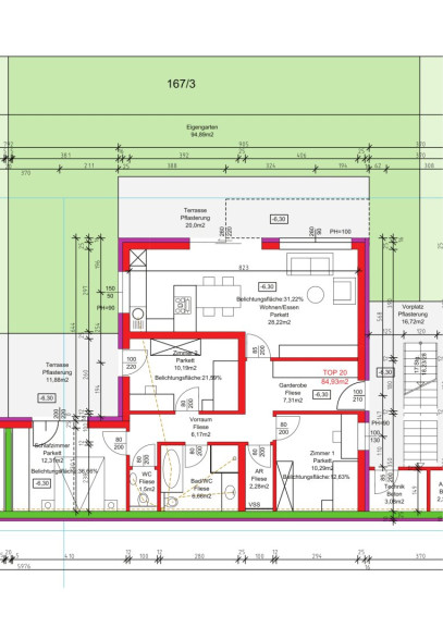
Diese attraktive Gartenwohnung Top 20/1, überzeugt durch eine durchdachte Raumaufteilung sowie eine hervorragende Infrastruktur und eine wunderbare Weitsicht.



Die Wohnung verfügt über einen großzügigen Koch-Wohn-Essbereich, der als zentraler Lebensmittelpunkt dient und direkten Zugang zur Terrasse sowie zum Garten bietet. Große Fensterflächen sorgen für eine helle und freundliche Wohnatmosphäre.



Insgesamt stehen drei Schlafzimmer zur Verfügung, die sich ideal als Schlaf-, Kinder-, Gäste- oder Arbeitszimmer eignen. Der private Garten bietet viel Platz zum Entspannen, Spielen oder für gemütliche Stunden im Freien.



Zur Wohnung gehört ein Parkplatz.  Die Lage in einer ruhigen Wohnsiedlung kombiniert entspanntes Wohnen mit sehr guter Infrastruktur – Einkaufsmöglichkeiten, Schulen, öffentliche Verkehrsmittel und Freizeiteinrichtungen sind rasch erreichbar.



Highlights der Wohnung:




  • Gartengeschoß mit Terrasse und Garten



  • Großer Koch-Wohn-Essbereich



  • 3 Schlafzimmer



  • 1 Parkplatz, 1 weiterer optional



  • Fußbodenheizung mit Luftwärmepumpe



  • Photovoltaik



  • Sehr gute Infrastruktur



  • Adresse: Norbert-Ehrlich-Siedlung 101, Deutschlandsberg




Bezug: Ende 2026



„Für nähere Informationen stehe wir Ihnen auch gerne telefonisch, oder bei einem Termin in unserem Büro in Deutschlandsberg zur Verfügung.“



Bilder Ki erstellt.














Infrastruktur / Entfernungen

Gesundheit
Arzt <950m
Apotheke <1.000m
Klinik <1.275m
Krankenhaus <1.750m

Kinder & Schulen
Schule <625m
Kindergarten <1.450m

Nahversorgung
Supermarkt <850m
Bäckerei <825m
Einkaufszentrum <825m

Sonstige
Bank <900m
Geldautomat <900m
Post <1.325m
Polizei <1.125m

Verkehr
Bus <250m
Bahnhof <950m

Angaben Entfernung Luftlinie / Quelle: OpenStreetMap

Eckdaten Objektnr. 2096/43

Art: Wohnung
Land: Österreich
Baujahr: 2026
Zustand: Erstbezug
Alter: Neubau
Kaufpreis: 329.900,00
Wohnfläche: 84,93 m²
Zimmer: 4
Bäder: 1
WC: 1
Terrassen: 1
Garten: 94,89 m²
Heizwärmebedarf:  B  50,00 kWh/m²a
fGEE:  A+  0,68
Immobilie merken Exposé

Ausstattung

Dielenboden, Fliesen, Fußbodenheizung


Immobilie anfragen


Ihre persönliche Beratung

InstyleHaus Holding GmbH

Renate Hengsberger

InstyleHaus Holding GmbH

H +43 660 22 49 490