ERSTBEZUG, moderne Gewerbeimmobilie - vielseitig nutzbar mit großzügigen Büro- und Lagerflächen
Halle / Lager / Produktion
,
4020
Linz
In einer der besten Lagen des Linzer Hafengebiets gelegen, überzeugt das Objekt durch die unmittelbare Nähe zu beiden Autobahnauffahrten. Dadurch ist es optimal an das Verkehrsnetz angebunden und bietet ideale Voraussetzungen für unterschiedlichste betriebliche Anforderungen und Vorhaben. Die zentrale Lage im Industriegebiet gewährleistet zudem eine ausgezeichnete Erreichbarkeit und hohe Sichtbarkeit.
Beschreibung der Immobilie
ERSTBEZUG, moderne Gewerbeimmobilie - vielseitig nutzbar mit großzügigen Büro- und Lagerflächen
Zur Vermietung gelangt eine neuwertige, schlüsselfertige Gewerbeimmobilie in der Linzer Industriezeile. Das Objekt befindet sich im Erstbezug und überzeugt durch eine moderne Ausstattung, funktionale Grundrisse sowie vielfältige Nutzungsmöglichkeiten für unterschiedlichste Branchen.
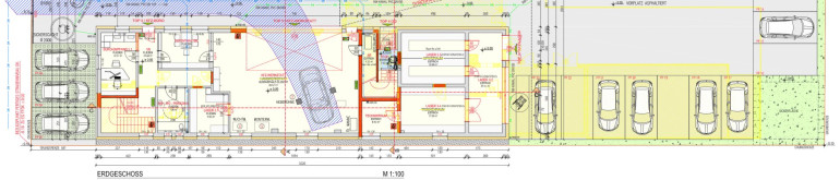
Im EG steht ein ca. 95 m² großes Lager mit einer Raumhöhe von ca. 4 m zur Verfügung und ist über ein Einfahrtstor mit einer Breite von ca. 7,45 m und einer Höhe von ca. 3,0 m direkt zugänglich. Ergänzend befinden sich auf dieser Ebene zwei Büroräume bzw. Empfang und Aufenthaltsraum sowie ein WC. Das 1. OG bietet sieben separat begehbare Büroräume, einen Archivraum, eine Teeküche sowie zwei WC-Einheiten und eignet sich ideal für administrative oder organisatorische Tätigkeiten, zwei der Büroräume verfügen zudem über einen direkten Ausgang auf den südseitigen Balkon. Im 2. OG befindet sich ein großzügiger Besprechungsraum mit Badezimmer, Küchenanschlüssen sowie einer südseitig ausgerichteten Terrasse, die zusätzlichen Mehrwert für Pausen oder repräsentative Zwecke bietet.
Die Immobilie ist mit Fußbodenheizung und Deckenkühlung ausgestattet und gewährleistet damit ein angenehmes Raumklima über das gesamte Jahr. Zehn PKW-Stellplätze direkt am Objekt sorgen für komfortable Erreichbarkeit für Mitarbeiter (ca. 14 Plätze) und Kunden. Die zentrale Lage in der Linzer Industriezeile bietet eine ausgezeichnete Infrastruktur sowie eine optimale Verkehrsanbindung. Diese Immobilie eignet sich ideal für Büro- und Verwaltungsbetriebe, Kanzleien, Dienstleister, oder Kombinationen aus Büro und Lager.
Eine hochwertige und flexible Gewerbefläche in gefragter Lage von Linz.
Gerne stellen wir Ihnen diese Immobilie im Rahmen einer persönlichen Besichtigung näher vor.
Wir weisen darauf hin, dass zwischen dem Vermittler und dem zu vermittelnden Dritten ein familiäres oder wirtschaftliches Naheverhältnis besteht.
Der Vermittler ist als Doppelmakler tätig.
Infrastruktur / Entfernungen
Gesundheit
Arzt <1.500m
Apotheke <1.500m
Klinik <2.500m
Krankenhaus <1.500m
Kinder & Schulen
Kindergarten <1.500m
Schule <1.500m
Universität <1.500m
Höhere Schule <2.500m
Nahversorgung
Supermarkt <1.000m
Bäckerei <1.500m
Einkaufszentrum <3.000m
Sonstige
Bank <1.500m
Geldautomat <1.500m
Post <2.500m
Polizei <1.500m
Verkehr
Bus <500m
Straßenbahn <3.000m
Bahnhof <1.500m
Autobahnanschluss <1.000m
Flughafen <1.500m
Angaben Entfernung Luftlinie / Quelle: OpenStreetMap
Eckdaten Objektnr. 1927/42
| Art: | Halle / Lager / Produktion |
| Land: | Österreich |
| Baujahr: | 2025 |
| Zustand: | Erstbezug |
| Alter: | Neubau |
| Kaltmiete (netto): | 4.400,00 € |
| Kaltmiete: | 5.050,00 € |
| Provision: | 18.180,00 € inkl. 20% USt. |
| Betriebskosten: | 650,00 € |
| Nutzfläche: | 440,00 m² |
| Lagerfläche: | 104,00 m² |
| Bürofläche: | 238,00 m² |
| Zimmer: | 10 |
| WC: | 4 |
| Balkone: | 1 |
| Terrassen: | 1 |
| Stellplätze: | 10 |
| Heizwärmebedarf: | C 54,20 kWh/m²a |
| fGEE: | A 0,85 |
Ausstattung
Zentralheizung, Fußbodenheizung, Südbalkon, Parkplatz
Ihre persönliche Beratung
Maximilian Stadler
100pro Immobilien GmbH
T +43 732 272408