#SQ - BAUBEWILLIGTER ROHDACHBODEN MIT CA. 680 M² ERZIELBARER WOHNNUTZFLÄCHE

Zinshaus Renditeobjekt , 1110 Wien


Der zum Kauf stehende, bereits eingereichte, Rohdachboden befindet sich in einem schönen Eckhaus, nur 5 Gehminuten von der U3 Station "Simmering" sowie der Buslinie 72A entfernt. Schräg gegenüber dem Haus liegt eine Station der Straßenbahnlinien 11, 71 und D. Geschäfte des täglichen Bedarfs befinden sich in unmittelbarer Nähe ebenso wie diverse Restaurants, Cafés, Bars etc. Dieser Teil der von Wien erfreut sich seit einigen Jahren steigender Beliebtheit bei all jenen, welche in einer urbanen Umgebung wohnen und zusätzlich den Komfort einer umfangreichen Infrastruktur genießen möchten.

Beschreibung der Immobilie

#SQ - BAUBEWILLIGTER ROHDACHBODEN MIT CA. 680 M² ERZIELBARER WOHNNUTZFLÄCHE

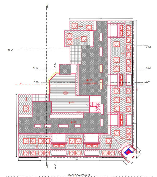
Zum Verkauf gelangt ein bereits eingereichter Rohdachboden in einem sehr gepflegten Zinshaus in sehr zentraler Lage des 11. Wiener Gemeindebezirks. Die Planung sieht einen 2 geschoßigen Ausbau mit insgesamt 10 Dachgeschosswohnungen mit einer Wohnnutzfläche von ca. 679 m² inkl. Loggien im Ausmaß von ca. 20,59 m² sowie Balkone, Terrassen und Dachterrassenflächen von ca. 116,71m². Dies entspricht einer gewichteten Wohnnutzfläche von ca. 718m². Hinzu kommt ein bereits vorhandener Personenaufzug welcher vom KG bis ins 3.OG fährt.



Eckdaten im Überblick:



  • Rohdachboden mit fertiger Einreichplanung in Toplage des 11ten Wiener Gemeindebezirks
  • 10 lichtdurchflutete Dachgeschosswohnungen mit einem schönen Ausblick über Wien
  • Wohnungsgrößen von ca. 48m² bis ca. 97m² (2-3 Zimmerwohnungen)
  • Fast alle Dachgeschosswohnungen haben eine Außenfläche (Balkon oder Terrasse)
  • Gesamtwohnnutzfläche (WNFL+Loggia): ca. 679,68m²
  • Balkone: ca. 8,13m²
  • Terrassen: ca. 87,99m²
  • Gewichtete Wohnnutzfläche: ca. 718m²
  • Sehr gute öffentliche Verkehrsanbindung




Kosten:



  • Kaufpreis € 649.000,-- (Asset Deal) (= ca. € 900 / m² erz. gew. Fläche)
  • Provision: 3% vom Kaufpreis zzgl. 20% Ust




Kontaktdaten:



Haben wir Ihr Interesse geweckt? 



Dann kontaktieren Sie uns einfach via invest@stadtquartier.at oder unter der Telefonnummer: +43 1 796 15 58




Weitere Objekte auf: www.stadtquartier.at 


Please add us on Facebook! Thank you!


Hinweis gemäß Energieausweisvorlagegesetz: Ein Energieausweis wurde vom Eigentümer bzw. Verkäufer, nach unserer Aufklärung über die generell geltende Vorlagepflicht, sowie Aufforderung zu seiner Erstellung noch nicht vorgelegt. Daher gilt zumindest eine dem Alter und der Art des Gebäudes entsprechende Gesamtenergieeffizienz als vereinbart. Wir übernehmen keinerlei Gewähr oder Haftung für die tatsächliche Energieeffizienz der angebotenen Immobilie.


Wir weisen darauf hin, dass zwischen dem Vermittler und dem zu vermittelnden Dritten ein familiäres oder wirtschaftliches Naheverhältnis besteht.


Der Vermittler ist als Doppelmakler tätig.

Infrastruktur / Entfernungen

Gesundheit
Arzt <500m
Apotheke <500m
Klinik <2.000m
Krankenhaus <4.000m

Kinder & Schulen
Schule <500m
Kindergarten <500m
Universität <2.500m
Höhere Schule <3.000m

Nahversorgung
Supermarkt <500m
Bäckerei <500m
Einkaufszentrum <1.000m

Sonstige
Geldautomat <500m
Bank <500m
Post <500m
Polizei <500m

Verkehr
Bus <500m
U-Bahn <500m
Straßenbahn <500m
Bahnhof <500m
Autobahnanschluss <2.000m

Angaben Entfernung Luftlinie / Quelle: OpenStreetMap

Eckdaten Objektnr. 21168

Art: Zinshaus Renditeobjekt
Land: Österreich
Kaufpreis: 649.000,00
Kaufpreis / m²: 903,90 €
Provision: 3% des Kaufpreises zzgl. 20% USt.
Wohnfläche: 679,68 m²
Nutzfläche: 679,68 m²
Immobilie merken Exposé

Ausstattung

Personenaufzug


Immobilie anfragen


Ihre persönliche Beratung

STADTQUARTIER Home GmbH

STADTQUARTIER INVEST

STADTQUARTIER Real Estate Group

T +43 1 796 15 58

F +43 1 796 15 58 15