2-Zimmer-Wohnung | Nähe Prater

Wohnung , 1030 Wien


U3 Schlachthausgasse | Prater

Beschreibung der Immobilie

2-Zimmer-Wohnung | Nähe Prater

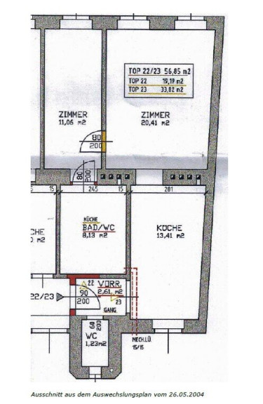
Diese renovierungsbedürftige 2-Zimmer-Wohnung liegt im 2. Stockwerk (ohne Lift) des Hoftraktes und besteht aus Vorraum, Abstellraum, Küche, 2 Zimmer, Bad/WC. Die Wohnung überzeugt durch ihre hervorragende Lage nahe der U3-Station Schlachthausgasse und dem Prater. Die ausgezeichnete Anbindung an öffentliche Verkehrsmittel (U3 Schlachthausgasse, Buslinien: 77A/80A, Straßenbahnlinie: 18) sowie die Nähe zu Autobahnanschlüssen, machen diese Lage besonders begehrt.



Für Detailinformationen oder einen Besichtigungstermin stehe ich jederzeit zur Verfügung!



Bernhard FRIEDRICH

+43 660 117 9020

bf@finallyhome.at

Infrastruktur / Entfernungen

Gesundheit
Arzt <500m
Apotheke <500m
Klinik <500m
Krankenhaus <1.000m

Kinder & Schulen
Schule <500m
Kindergarten <500m
Universität <1.000m
Höhere Schule <1.000m

Nahversorgung
Supermarkt <500m
Bäckerei <500m
Einkaufszentrum <1.000m

Sonstige
Geldautomat <500m
Bank <500m
Post <500m
Polizei <500m

Verkehr
Bus <500m
U-Bahn <500m
Straßenbahn <500m
Bahnhof <500m
Autobahnanschluss <1.000m

Angaben Entfernung Luftlinie / Quelle: OpenStreetMap

Eckdaten Objektnr. 1819/61

Art: Wohnung
Land: Österreich
Baujahr: 1894
Zustand: Teil_vollrenovierungsbed
Kaufpreis: 285.000,00
Provision: 3% des Kaufpreises zzgl. 20% USt.
Wohnfläche: 56,85 m²
Zimmer: 2
Bäder: 1
WC: 1
Keller: 2,97 m²
Heizwärmebedarf: 65,30 kWh/m²a
fGEE: 1,76
Immobilie merken Exposé

Ausstattung

Fliesen, Parkett, Gas, Etagenheizung


Immobilie anfragen


Ihre persönliche Beratung

Bernhard Friedrich

finallyHOMEreal GmbH

T +43 660 117 9020