AB 01.04.2026 VERFÜGBAR I BALKON I BADEWANNE I WG-TAUGLICH I HAUSTIERE WILLKOMMEN I PROJEKT WOHNEN

Wohnung , 8020 Graz , Niesenbergergasse 75


Die Niesenbergergasse 75 liegt im beliebten Stadtteil Gries im Westen von Graz – einem urban geprägten und doch sehr wohnlichen Stadtbezirk mit hervorragender Infrastruktur und hoher Lebensqualität. Die Niesenbergergasse selbst ist eine ruhige Wohnstraße, die sowohl städtisches Leben als auch erholsame Rückzugsorte bietet und sich durch ihre Nähe zu vielfältigen Angeboten auszeichnet. Die unmittelbare Umgebung verbindet urbanes Wohnen mit naturnahem Flair: Große Teile der Niesenbergergasse liegen eingebettet in ruhigere Seitengassen mit begrünten Innenhöfen und Spazierwegen, sodass Sie hier eine angenehme Balance zwischen Aktivität und Entspannung genießen. Die Lage zeichnet sich durch ihre exzellente Verkehrsanbindung aus – öffentliche Verkehrsmittel, Straßenbahn und Buslinien sind fußläufig erreichbar, was Ihnen schnelle Verbindungen in alle Teile der Stadt ermöglicht. Gleichzeitig profitieren Sie von einer Vielzahl an Nahversorgern, Cafés, Restaurants und Dienstleistern in der Nähe, die den täglichen Bedarf bequem abdecken.

Beschreibung der Immobilie

AB 01.04.2026 VERFÜGBAR I BALKON I BADEWANNE I WG-TAUGLICH I HAUSTIERE WILLKOMMEN I PROJEKT WOHNEN

Licht. Lage. Lebensqualität – 2-Zimmer-Eigentumswohnung mit Balkon & Top-Ausstattung in der Niesenbergergasse 75, 8020 Graz





  • Zentrale & ruhige Lage in 8020 Graz
    Inmitten des beliebten Bezirks Gries wohnen Sie ruhig und trotzdem zentral – mit perfekter Anbindung an das öffentliche Verkehrsnetz und fußläufiger Nähe zu Nahversorgern, Cafés und dem Lendplatz.
  • Geplanter Einzug leicht gemacht
    Ein zusätzlicher Vorteil: Die Wohnung ist derzeit noch vermietet und ab dem 01.04.2026 verfügbar – so haben Sie ausreichend Zeit, Ihren Umzug entspannt und ganz ohne Zeitdruck zu organisieren.
  • Großzügige 66,28 m² Wohnfläche
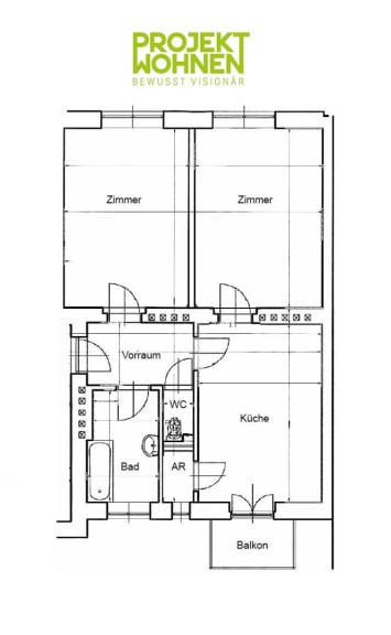
    Ideal aufgeteilt mit zwei getrennt begehbaren Zimmern, separater Küche, Badezimmer, WC und Vorraum – perfekt für Paare, Singles sowie WG-geeignet.
  • Balkon in den Innenhof
    Ruhig gelegen und angenehm grün – der Balkon ist direkt von der Küche aus begehbar und lädt zum Entspannen im Freien ein.
  • Viel Tageslicht durch große Fensterflächen
    Die Wohnung überzeugt mit lichtdurchfluteten Räumen – hier beginnt jeder Tag mit natürlichem Sonnenlicht und einem Gefühl von Weite.
  • Moderne Einbauküche inklusive
    Praktisch und stilvoll: Die Küche ist mit Kühlschrank, Ceranfeld, Backofen und Geschirrspüler ausgestattet – ideal für Hobbyköche und alle, die gerne zu Hause genießen.
  • Zusätzlicher Abstellraum direkt von der Küche begehbar
    Ein echtes Plus im Alltag: Der Abstellraum bietet wertvollen Stauraum für Vorräte, Haushaltsgeräte oder Reinigungsutensilien – für mehr Ordnung im Wohnbereich.
  • Badezimmer mit Fenster & Badewanne
    Das Badezimmer bietet ein angenehmes Raumgefühl dank natürlicher Belichtung – ausgestattet mit Badewanne, Waschbecken und Waschmaschinenanschluss.
  • Fernwärmeheizung & Parkplatzoption
    Die Wohnung wird nachhaltig und effizient über Fernwärme beheizt. Ein Parkplatz kann bei Bedarf separat angemietet werden – besonders praktisch in dieser Lage.








Willkommen in der Niesenbergergasse 75 – eine Wohnung zum Wohlfühlen



Diese helle und sehr gepflegte 2-Zimmer Wohnung liegt im 1. Stock einer ruhigen, gut erhaltenen Wohnanlage mitten in Graz-Gries. Mit einer großzügigen Wohnfläche von 66,28 m² überzeugt sie durch ihre durchdachte Raumaufteilung, zeitlose Ausstattung und angenehme Ruhelage.



Vom zentralen Vorraum aus erreichen Sie alle Räume: das Bad mit Tageslicht, Badewanne, Waschbecken und Waschmaschinenanschluss, das separate WC sowie zwei große Zimmer, die sich flexibel als Wohn-, Schlaf- oder Arbeitszimmer nutzen lassen. Besonders hervorzuheben ist die geräumige Küche mit Einbaugeräten und direktem Zugang zum hofseitigen Balkon – perfekt für einen ruhigen Start in den Tag oder entspannte Stunden im Freien.



Ein weiteres Plus ist der praktische Abstellraum, der von der Küche aus begehbar ist – ideal, um für mehr Ordnung und Struktur im Alltag zu sorgen.



Die Wohnung wird über eine effiziente Fernwärme beheizt. Ein zugeordnetes Kellerabteil sorgt für zusätzlichen Stauraum, und wer einen Parkplatz benötigt, kann diesen bei Verfügbarkeit in der Anlage anmieten.



Ein zusätzlicher Vorteil: Die Wohnung ist derzeit noch vermietet und ab dem 01.04.2026 verfügbar – das bietet Ihnen ausreichend Zeit, Ihren Einzug in aller Ruhe und stressfrei zu planen.



Ich freue mich auf Ihre Anfrage und darauf, Ihnen diese wunderschöne Wohnung bei einem persönlichen Besichtigungstermin präsentieren zu dürfen.


Der Immobilienmakler erklärt, dass er – entgegen dem in der Immobilienwirtschaft üblichen Geschäftsgebrauch des Doppelmaklers – einseitig nur für den Vermieter tätig ist.

Infrastruktur / Entfernungen

Gesundheit
Arzt <225m
Apotheke <475m
Klinik <825m
Krankenhaus <600m

Kinder & Schulen
Schule <550m
Kindergarten <425m
Universität <675m
Höhere Schule <825m

Nahversorgung
Supermarkt <250m
Bäckerei <375m
Einkaufszentrum <325m

Sonstige
Geldautomat <375m
Bank <375m
Post <400m
Polizei <475m

Verkehr
Bus <150m
Straßenbahn <275m
Autobahnanschluss <4.150m
Bahnhof <125m
Flughafen <9.200m

Angaben Entfernung Luftlinie / Quelle: OpenStreetMap

Eckdaten Objektnr. 38313

Art: Wohnung
Land: Österreich
Zustand: Neuwertig
Alter: Neubau
Gesamtmiete: 858,75
Kaltmiete (netto): 608,35 €
Kaltmiete: 780,68 €
Provision: Gemäß Erstauftraggeberprinzip bezahlt der Abgeber die Provision.
Betriebskosten: 172,33 €
MwSt Gesamt: 78,07 €
Wohnfläche: 66,28 m²
Nutzfläche: 66,28 m²
Zimmer: 2
Bäder: 1
WC: 1
Balkone: 1
Heizwärmebedarf:  D  115,71 kWh/m²a
Immobilie merken Exposé

Ausstattung

Fliesen, Laminatboden, Fernwärme, Einbauküche, Bad mit Fenster, Badewanne, Kabel/Satelliten-TV, Parkplatz


Immobilie anfragen


Ihre persönliche Beratung

Projekt Wohnen Gruppe GmbH

Sabina Maitz

PW Projekt Wohnen Immobilienvermittlung GmbH

T 0316850850

H +43 664 427 00 57