Sanierungsbedürftige, helle Drei-Zimmer-Wohnung im 3.OG! Sanieren Sie diese Wohnung ganz nach Ihren Bedürfnissen.

Wohnung , 1100 Wien , Weldengasse


Diese Top-Lage unmittelbar bei der U1 Troststraße, lässt wohl keine Wünsche offen. In wenige Gehminuten gelangen Sie zum Alfred-Böhm-Park und zu weiteren Grünflächen. Supermärkte, Apotheken, Banken und sämtliche Geschäfte des täglichen Bedarfs befinden sich quasi ums Eck entlang der Favoritenstraße! Gastronomisch werden Sie hier auch verwöhnt - zahlreiche Restaurants, Beisl, Cafés und Kneipen machen das Grätzl sehr lebenswert. Zur U1 Station Troststraße (Ausgang Klausenburger Straße) sind es lediglich ca. 2-3 Minuten zu Fuß.

Beschreibung der Immobilie

Sanierungsbedürftige, helle Drei-Zimmer-Wohnung im 3.OG! Sanieren Sie diese Wohnung ganz nach Ihren Bedürfnissen.

Top U1 Anbindung + Perfekte Infrastruktur + Ruhige Seitengasse + 3.OG + Hell und Sonnig



Jetzt zugreifen!



Diese Wohnung lässt Ihren Wünschen und Bedürfnissen jeglichen Spielraum. 



Profitieren Sie von einer TOP-Infrastruktur, einer idealen öffentlichen Anbindung und dem Genuss dieser zentralen Lage!



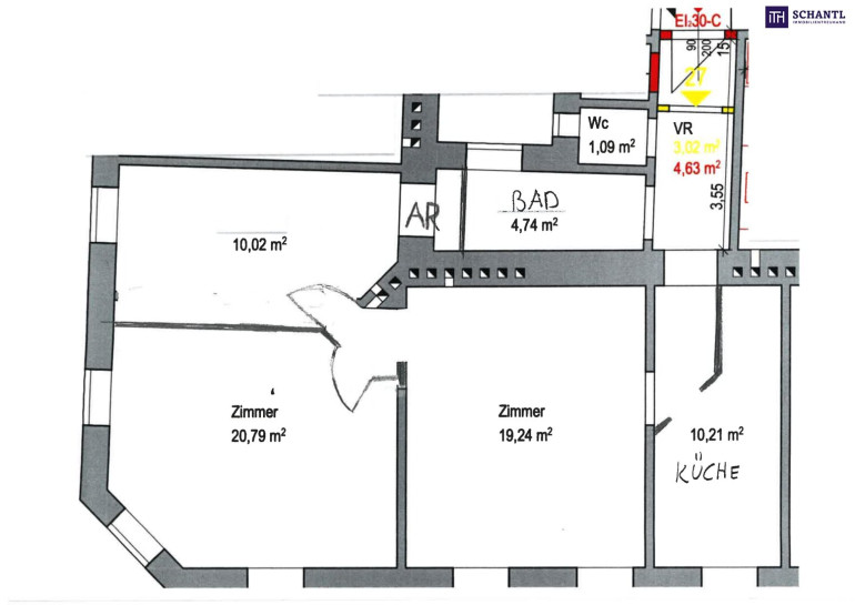
Die zum Verkauf stehende Wohnung, ist ein einzigartiges Highlight für alle, die sich ihren Wohntraum ganz nach ihren Wünschen gestalten möchten. Die Wohnung bietet einen Grundriss mit einem zentralen Vorraum, eine separate Küche, das zentrale Wohnzimmer, zwei helle Schlafzimmer, ein Badezimmer mit Fenster, ein separates WC und einen Abstellraum. 



Für einen modernen und zeitgemäßen Stand der Technik, ist eine Sanierung erforderlich. 



Das Motto für diese Stadtwohnung lautet: 3, 2, 1 und LOS! 



Wohnfläche: ca. 70,72 m² 



Kaufpreis: € 179.000.-



Provision: 3% vom KP zzgl. 20% Ust. 





Bei konkretem Interesse senden wir Ihnen sehr gerne weiterführende Dokumente zu, wie:



o Grundbuchauszug



o Wohnungseigentumsvertrag



o Nutzwertgutachten



o Eigentümerversammlungsprotokoll (Falls vorhanden) etc...





Unser Service für Sie: Wenn Sie sich für diese Immobilie entschieden haben, begleiten wir Sie gerne vom Kaufanbot weg inkl. Klärung von Sonderwünschen und der Vertragsunterzeichnung über die Wohnungsübergabe bis hin zu diversen Ummeldungen wie Strom und Gas. Entsprechende Formulare oder auch Meldezettel stellen wir Ihnen sehr gerne zur Verfügung.



Gerne unterstützen wir Sie auch bei der Finanzierung Ihres Traumobjekts und finden mit unseren langjährigen Partnern die besten Konditionen für Sie.



Worauf warten Sie noch, diese perfekte 3-Zimmer Wohnung wird nicht lange zu haben sein!



www.schantl-ith.at


Wir weisen darauf hin, dass zwischen dem Vermittler und dem zu vermittelnden Dritten ein familiäres oder wirtschaftliches Naheverhältnis besteht.


Der Vermittler ist als Doppelmakler tätig.

Infrastruktur / Entfernungen

Gesundheit
Arzt <500m
Apotheke <250m
Klinik <1.250m
Krankenhaus <2.500m

Kinder & Schulen
Schule <250m
Kindergarten <250m
Universität <500m
Höhere Schule <3.000m

Nahversorgung
Supermarkt <250m
Bäckerei <500m
Einkaufszentrum <1.500m

Sonstige
Geldautomat <500m
Bank <500m
Post <500m
Polizei <500m

Verkehr
Bus <250m
U-Bahn <500m
Straßenbahn <1.000m
Bahnhof <250m
Autobahnanschluss <750m

Angaben Entfernung Luftlinie / Quelle: OpenStreetMap

Eckdaten Objektnr. 293728

Art: Wohnung
Land: Österreich
Baujahr: 1897
Zustand: Sanierungsbeduerftig
Alter: Altbau
Kaufpreis: 179.000,00
Kaufpreis / m²: 2.531,11 €
Provision: 3% des Kaufpreises zzgl. 20% USt.
Betriebskosten: 156,54 €
MwSt Gesamt: 15,65 €
Wohnfläche: 70,72 m²
Zimmer: 3,50
Bäder: 1
WC: 1
Keller: 1,63 m²
Heizwärmebedarf:  D  140,00 kWh/m²a
fGEE:  E  2,79
Immobilie merken Exposé

Ausstattung

Fliesen, Parkett, Gas, Etagenheizung, Dusche, Kabel/Satelliten-TV


Immobilie anfragen


Ihre persönliche Beratung

Schantl ITH Immobilientreuhand GmbH

Mark Prettenthaler

Schantl ITH Immobilientreuhand GmbH

T +43 6643070009

H +43 650 56 75 611