PREISREDUKTION! Attraktiver Baugrund inkl. Bewilligung für Wohnbauprojekt mit 4 Doppelhaushälften! Jetzt anfragen!

Grundstück - Baugrund Eigenheim, 8072 Fernitz


Dieses baubewilligte Wohnbauprojekt mit 4 Doppelhaushälften befindet sich in einer erstklassigen Lage Nähe Fernitz, die sowohl durch ihre sonnige Ausrichtung als auch durch ihre ruhige Umgebung besticht. Diese Lage bietet Bauträgern eine ideale Gelegenheit, ein hochwertiges Wohnprojekt in einer gefragten Region zu realisieren.

Beschreibung der Immobilie

PREISREDUKTION! Attraktiver Baugrund inkl. Bewilligung für Wohnbauprojekt mit 4 Doppelhaushälften! Jetzt anfragen!

PREISREDUKTION! Attraktiver Baugrund inkl. Bewilligung für Wohnbauprojekt mit 4 Doppelhaushälften! Jetzt anfragen!



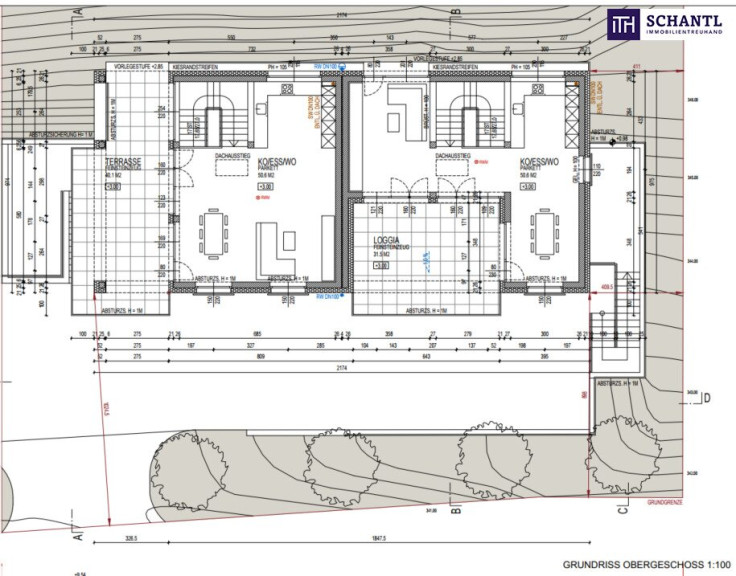
Willkommen zu Ihrem Traumprojekt in der aufstrebenden und naturverbundenen Gemeinde Fernitz! Hier erwartet Sie ein baubewilligtes Projekt auf einem großzügigen Grundstück mit einer Fläche von 2.949 m². Das exklusive Gesamtprojekt besteht aus 2 Baukörpern, in welchen insgesamt 4 Doppelhaushälften und 12 integrierte KFZ-Abstellflächen errichtet werden können. Die Zufahrt, Stützmauern und Geländeveränderungen sind bereits mit bewilligt.



Bei Interesse und nach Zustimmung der AGB´s bekommen Sie weitere Informationen.



Facts des Projekts:



  • Grundstücksfläche: 2.949 m²
  • Baubewilligtes Projekt:
    • Wohnhäuser: 2
    • Doppelhaushälften: 4
    • Wohneinheiten: Je 2 pro Baukörper
    • Integrierte Garagen: Ja
    • PKW-Stellplätze: 12 (überdacht)
    • Bewilligte Zufahrt, Stützmauern, Geländeveränderungen



Informationen zum Grundstück/Bauplatz:



  • Bebauungsdichte: 0,2 - 0,5
  • Zufahrt: Gesichert über öffentliche Gemeindestraße


Highlights:



  • Baubewilligt: Alle erforderlichen Genehmigungen liegen vor – Starten Sie sofort mit Ihrem Bauprojekt.
  • Moderne Architektur: Zeitgemäßes Design und durchdachte Raumaufteilung für höchsten Wohnkomfort.
  • Ideal für Familien: Perfekte Wohnlösung mit großzügigen, familienfreundlichen Grundrissen.
  • Sonnige Lage: Lichtdurchflutete Räume durch optimale Ausrichtung für ein helles und freundliches Wohnambiente.
  • Ruhige Umgebung: Genießen Sie die Ruhe und Privatsphäre in einer entspannten Nachbarschaft.
  • Gartenanteil: Jede Haushälfte verfügt über einen eigenen Garten – Ideal zum Entspannen und für Kinder zum Spielen.
  • Energieeffizient: Geplant nach neuesten Standards für nachhaltiges und kostensparendes Wohnen.
  • Parkmöglichkeiten: Jede Doppelhaushälfte bietet ausreichend Stellplätze direkt am Haus.


Dieses Bauprojekt bietet nicht nur ein stilvolles und modernes Wohnkonzept, sondern auch eine solide Investitionsmöglichkeit. Nutzen Sie die Gelegenheit und errichten Sie dieses TOP-Wohnprojekt in einer der begehrtesten Wohnlagen von Fernitz. Für weitere Informationen oder einen persönlichen Beratungstermin stehen wir Ihnen gerne zur Verfügung. Greifen Sie jetzt zu und vereinbaren Sie noch heute einen Besichtigungstermin!



Worauf noch warten?



Vereinbaren Sie noch heute eine Besichtigung oder eine persönliche Beratung mit uns!



Sie wollen Ihre Immobilie verkaufen? Dann sind Sie bei uns goldrichtig!




Wir sind gerne für Sie da und unterstützen Sie unverbindlich bei der Bewertung Ihrer Immobilie. Mit viel Sorgfalt stellen wir Ihnen alle wichtigen Informationen und Unterlagen zusammen, damit Sie die besten Entscheidungen treffen können.



In Kooperation mit unserer SFI Vermögenstreuhand begleiten wir Sie bei der Verwirklichung Ihres Traumobjekts und unterstützen Sie beim nachhaltigen Vermögensaufbau.



Mit unseren erfahrenen Experten sorgen wir dafür, dass Sie die besten Konditionen erhalten – damit Ihre Träume Wirklichkeit werden!



www.schantl-ith.at in Kooperation mit www.sfi-invest.com 



Die Angaben über das angebotene Objekt erfolgen mit der Sorgfalt eines ordentlichen Immobilienmaklers; für die Richtigkeit solcher Angaben, die auf Informationen der über das Objekt Verfügungsberechtigten beruhen, wird keine Gewähr geleistet.


Wir weisen darauf hin, dass zwischen dem Vermittler und dem zu vermittelnden Dritten ein familiäres oder wirtschaftliches Naheverhältnis besteht.


Der Vermittler ist als Doppelmakler tätig.

Infrastruktur / Entfernungen

Gesundheit
Arzt <2.500m
Apotheke <2.500m

Kinder & Schulen
Schule <1.000m
Kindergarten <1.000m

Nahversorgung
Supermarkt <2.500m
Bäckerei <4.000m

Sonstige
Geldautomat <2.500m
Bank <2.500m
Post <2.500m
Polizei <4.500m

Verkehr
Bus <1.500m
Autobahnanschluss <3.500m
Bahnhof <3.000m
Flughafen <9.500m

Angaben Entfernung Luftlinie / Quelle: OpenStreetMap

Eckdaten Objektnr. 293619

Art: Grundstück - Baugrund Eigenheim
Land: Österreich
Alter: Neubau
Kaufpreis: 235.000,00
Kaufpreis / m²: 79,69 €
Provision: 3% des Kaufpreises zzgl. 20% USt.
Grundstücksfl.: 2.949,00 m²
Bäder: 4
WC: 4
Terrassen: 2
Stellplätze: 12
Immobilie merken Exposé

Ausstattung

Solarenergie, Fußbodenheizung, Bad mit Fenster, Badewanne, Dusche, Carport, Parkplatz


Immobilie anfragen


Ihre persönliche Beratung

Schantl ITH Immobilientreuhand GmbH

Nikolaus Kronabitter

Schantl ITH Immobilientreuhand GmbH

T +436645411047

H +43 664 2540410