Barrierefreie Gewerbefläche mit vielseitigen Nutzungsmöglichkeiten in Zeltweg – Bahnhofstraße 73

Halle / Lager / Produktion , 8740 Zeltweg


Beschreibung der Immobilie

Barrierefreie Gewerbefläche mit vielseitigen Nutzungsmöglichkeiten in Zeltweg – Bahnhofstraße 73

Zum Verkauf gelangt eine barrierefreie, modernisierungswürdige Gewerbefläche in der Bahnhofstraße 73 in Zeltweg, welche zuletzt als Eisdiele bzw. Gastrolokal genutzt wurde.



Die Liegenschaft bietet ideale Voraussetzungen für Käufer, die ihre eigene Vision und ein individuelles Nutzungskonzept umsetzen möchten.



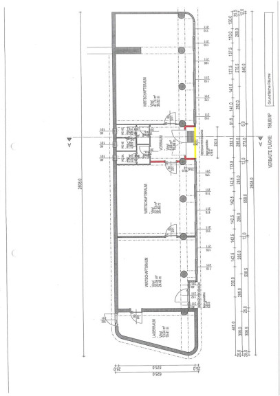
Die Gesamtfläche beträgt ca. 151 m² und besteht aus zwei eigenständigen Einheiten:

- Einheit 1: ca. 67 m²

- Einheit 2: ca. 84 m²



Derzeit sind beide Einheiten zusammengelegt nutzbar, können jedoch bei Bedarf wieder getrennt werden, da es sich um zwei separate Einheiten handelt. Dadurch ergeben sich flexible Nutzungsmöglichkeiten, beispielsweise für unterschiedliche Konzepte oder eine Teilung in zwei Geschäftslokale.



Das Objekt verfügt über zwei separate Eingänge – ein straßenseitiges Haupteingangsportal sowie einen weiteren Zugang – und ist ebenerdig begehbar.



Ob Gastronomie, Praxis oder Ordination, Büro, Studio oder Start-up – diese Gewerbefläche bietet vielfältige Gestaltungs- und Nutzungsmöglichkeiten.



Ich freue mich auf Ihre Anfragen und stehe Ihnen gerne für Besichtigungstermine zur Verfügung.



Hinweis: Bilder mit KI-bearbeitet



RE/MAX Life Knittelfeld seit 18 Jahren Ihr Immobilienpartner im Murtal!



Karriere als Immobilienexpert:in?

Wenn Arbeit Freiheit bedeutet und Erfolg kein Zufall ist.



Schnuppertag, Einblicke die man sonst nicht bekommt - Anmeldung unter 03512 600 11.


Der Vermittler ist als Doppelmakler tätig.

Infrastruktur / Entfernungen

Gesundheit
Arzt <500m
Apotheke <1.000m
Krankenhaus <1.000m

Kinder & Schulen
Schule <500m
Kindergarten <500m

Nahversorgung
Supermarkt <500m
Bäckerei <500m
Einkaufszentrum <500m

Sonstige
Bank <500m
Geldautomat <500m
Post <500m
Polizei <4.500m

Verkehr
Bus <500m
Autobahnanschluss <2.500m
Bahnhof <500m
Flughafen <2.000m

Angaben Entfernung Luftlinie / Quelle: OpenStreetMap

Eckdaten Objektnr. 1679/1593

Art: Halle / Lager / Produktion
Land: Österreich
Baujahr: 1954
Möbliert: Teil
Kaufpreis: 72.000,00
Provision: 3% des Kaufpreises zzgl. 20% USt.
Betriebskosten: 899,57 €
Nutzfläche: 151,00 m²
Heizwärmebedarf:  B  44,80 kWh/m²a
fGEE:  C  1,07
Immobilie merken Exposé

Ausstattung

Gas, Zentralheizung


Immobilie anfragen


Ihre persönliche Beratung

RE/MAX Life

Yvonne Pojer

RE/MAX Life

T +43 664 91 60 934

H +43 3512 600 11