Wohntraum mit Weitblick & modernster Ausstattung

Haus , 4522 Sierning


Dieses charmante Terrassenhaus in 4522 Sierning besticht durch seine zentrale Lage. Nur wenige Minuten vom Ortszentrum entfernt, genießen Sie die Vorzüge eines lebendigen Umfeldes mit Geschäften, Cafés und Restaurants. Ein Supermarkt ist in unmittelbarer Nähe, was Ihnen den Alltag erleichtert. Auch die Anbindung an den öffentlichen Verkehr ist ideal, mit einer Bushaltestelle in der Nähe. Hier vereinen sich Komfort und Lebensqualität!

Beschreibung der Immobilie

Wohntraum mit Weitblick & modernster Ausstattung

Willkommen in Ihrem neuen Traumhaus in der malerischen Gemeinde Sierning, Oberösterreich! Dieses wunderschöne Terrassenhaus bietet Ihnen nicht nur modernen Wohnkomfort, sondern auch eine perfekte Kombination aus Stil und Funktionalität.



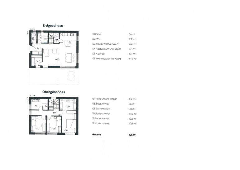
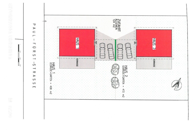
Auf einem Großzügigen Grundstück großzügigen von ca.472 m² und Wohnfläche ca. 125m² erwarten Sie vier lichtdurchflutete Zimmer, die Ihnen ausreichend Platz für individuelle Gestaltungsmöglichkeiten und eine harmonische Wohnatmosphäre bieten. Ob als Familie, Paar oder Single – hier finden Sie den idealen Rückzugsort, der Ihren Bedürfnissen gerecht wird.





Der Außenbereich des Hauses ist ein wahres Highlight. Der private Garten lädt dazu ein, die Sommerabende bei einem Glas Wein zu genießen oder mit Freunden und Familie gesellige Grillabende zu verbringen. Die zwei Stellplätze direkt vor der Tür gewährleisten Ihnen zudem ein bequemes Parken, während Sie sich in Ihrem neuen Zuhause entspannen.



Die durchdachte Raumaufteilung umfasst zwei moderne WCs, die sowohl Funktionalität als auch Komfort bieten. Somit sind Sie bestens auf Besuch vorbereitet und genießen gleichzeitig die Vorzüge eines praktischen Wohnkonzepts.



Die Lage in Sierning besticht durch eine hervorragende Verkehrsanbindung. In unmittelbarer Nähe finden Sie eine Bushaltestelle, die Ihnen eine bequeme Anbindung an die umliegenden Orte bietet. Zudem ist ein Supermarkt nur wenige Minuten entfernt, was den täglichen Einkauf zum Kinderspiel macht.



Genießen Sie die Vorzüge des ländlichen Lebens, ohne auf die Annehmlichkeiten der Stadt verzichten zu müssen. Sierning bietet Ihnen eine hohe Lebensqualität, eine ruhige Nachbarschaft und zahlreiche Freizeitmöglichkeiten in der Natur.



Lassen Sie sich diese Chance nicht entgehen und vereinbaren Sie noch heute einen Besichtigungstermin. Ihr neues Zuhause in Sierning wartet darauf, von Ihnen entdeckt zu werden!







1.    Grundstück     150.000,00 €

    500 m²; Paul-Fürst-Straße 15, 4522 Sierning    

        

        

2    Haus Fürst 125 m²    

    -    Stockhaus 10,22 x 7,82 inkl. Eingangsrücksprung: BBF: 79,92 m²; Nutzbare Flächen EG 62,47 + OG 62,14 = 124,61 m²    

    -    2 Vollgeschosse: Raumhöhen im EG und im OG je 2,50 m    

    -    Erstellung der Einreichpläne samt Baubeschreibungen für die baubehördliche Bewilligung des Hauses    

    -    Errichtung der 40 cm starken passivhaustauglichen Außenwände mit eigener Installationsebene samt zus. 4 cm unbrennbaren Steinwolle-Dämmplatten    

    -    Innenwände lt. Prospektplan errichtet und beidseitig mit Gipsfaser beplankt, inkl. vertikaler Standard-Elektroleerverrohrungen samt Unterputzdosen    

    -    Montage von vorgesetzten Sanitärwänden mit eingebauten Sanitärblöcken für 1 Dusche, 1 Waschtisch und 1 Handwaschbecken    

    -    Voll isolierte, mit Gipskarton verkleidete Geschosszwischendecken zwischen EG und OG und zwischen OG und Dachraum;    

    -    Geschlossene Wangenstiege mit Tritt- und Setzstufen von EG ins OG, Wandhandlauf und Brüstungswandabdeckung aus Eiche keilverzinkt    

    -    Fassadenfertigstellung vor Ort mittels einfärbigem Reibputz auf dem über der OSB Platte werkseitig aufgebrachten 14 cm Vollwärmeschutz    

    -    Untermörtelung der Fertighauswände zur fugenfreien Verbindung zwischen der Fundamentplatte bzw. Kellerdecke und dem Marles Haus    

    -    Kunststofffenster weiß mit 3-fach Verglasung und marmorierten oder weißen PVC Innenfensterbänken, Außenfensterbänke Alu eloxiert oder weiß    

    -    Terrassentüren / Bodentiefe Verglasungen mit ESG Sicherheitsglas (3-fach) (ohne Fensterbänke) / Anzahl und Größen wie folgt bzw. lt. Prospektplan    

    -    2 x 60/60 (Dreh/Kipp), 5 x 105/213 mittig geteilt - Oberteil Dreh/Kipp, 4 x 105/213 fix, 4 x 105/213 Dreh/Kipp, 2 x 210/213 fix    

    -    1 Alu-Eingangstüre einfärbig lt. Farbmuster; mit 5-facher Sicherheitsverriegelung und Drückergarnitur samt Schloss mit 6 Schlüsseln     

    -    Der Nagelbinderdachstuhl mit einem Dachüberstand von ca. 60 cm ist für eine Schneelast bis 200kg/m² standardmäßig ausgelegt; 1 x Ausstiegsfenster    

    -    Dachdeckung: 22° Walmdach eingedeckt mit Betondachstein Europa, (anthrazit, zinkgrau, classicrot, rotbraun); Unterdach ohne Vollholzschalung    

    -    Dachentwässerung und Regenrinnen in Alu Color (anthrazit, hellgrau, classicrot oder braun); inkl. Tropfblechen, Lüftungsgitter und Schneenasen    

        

A    Belagsfertig ( ist inkludiert)    327.800,00 €

    -    Elektroinstallationspaket: Steckdosen: 16 x 1-fach, 10 x 2-fach, 1 x 3-fach, 3 x Nassraum, 2 x Außenbereich, 1 x E-Herd, 4 x eigener Stromkreis

23 x Lichtauslässe, 19 x Schalter, 1 x Wärmepumpen-Anschluss, 1 x Türglocke samt Taster am Haus, 

1 x Duschtassenerdung, 1 x 230V Auslass,  1 x Kleinverteiler samt erforderlichen FI-Automaten; Schalterabdeckkappen     

    -    Sanitäres Rohinstallationspaket: Rohinstallation ab Fundamentplatte (ohne Keller) inkl. Wasserzähleranschlussplatte ( ohne Wasserzähler )

Sanitäranschlüsse für: 1 x Küche, 3 x Sanitärblöcke, 1 x Waschmaschine, 2 x WC Anlagen inkl. Hänge WC Einbaugestellen samt UP-Spülkästen, 2 x Kanalsteigstrang     

    -    Heizungsinstallation (im Technikraum im EG): Luft-Wärmepumpe Vaillant aroTherm Unitower Kältesplit 75/5A samt Zubehör inkl. Inbetriebnahme und inkl. Verlegung von 121 m² Fußbodenheizung inkl. 2x Unterputz-Fußbodenheizungsverteilerschränken     

    -    Estrich im EG und OG: 121 m² Betonestrich für Fußbodenheizung inkl. Wärmedämmung    

        

B    Sonderausstattung (inkludiert)    

    -    11 Außenfensterbänke ALU in anderen RAL Farben: Aufpreis pro Stück auf Standard    

    -    Dachdurchführung für SAT- oder Photovoltaikanlagen     

    -    Leerrohr für PV oder SAT Anlage (ohne Dachdurchführung)    

    -    Aufpreis für Normzählerkasten mit 4 ZP (101 cm breit) statt im Elektropaket enthaltenem; 4-reihigen Unterputz Elektrokleinverteiler mit zusätzlichem Platz für Zähler des Energieversorgers OÖ     

    -    Aktivierung der Kühlfunktion durch dampfdiffusionsdichte Kälteisolierung der Wärmepumpenheizungsleitungen    

    -    Isolierung der Kaltwasserleitungen im Technikraum    

    -    Einbaurollläden mit Alulamellen geschäumt inkl. Motoren für Schalterbetrieb bei allen o.a. Fenstern oder Raffstores mit robusten Z-Lamellen inkl. Motoren für Schalterbetrieb bei allen o.a. Fenstern    

    -    Insektenschutz bei allen o.a. öffenbaren Fenstern und Terrassentüren; farblich an die Fensteraußenfarbe angepasst     

    -    Außenfensterbänke ALU in anderen RAL Farben: Aufpreis pro Stück auf Standard    

        

C    Schlüsselfertigpaket „Rundum sorglos!“    41.687,10 €

    -    Malerarbeiten: Innenwände und Decken spachteln und weiß ausmalen (615 m²).    

    -    Fliesenlegerarbeiten: 13,7 m² Bodenfliesen, gerade verlegt, mit aus den Fliesen geschnittenen Fliesensockel.    

    -    33,6 m² Boden- und Wandfliesen in Bad und WC inkl. tw. notwendigen Dichtanstrich (Wände im Duschbereich raumhoch verfliest, ansonsten 1,20 m hoch).    

    -    Sanitärgeräte : Montage und Anschluss folgender Vigour Sanitärgeräte: 1 x Waschtisch (60x48) weiß mit Einhand-Waschtischbatterie; 1 x Handwaschbecken (45x34) samt Einhand-Waschtischbatterie; 2 x Wand-Tiefspül-WC mit Sitz und Deckel samt WC Abdeckplatten mit 2-Mengen Taster; 1 x Duschtasse Acryl (90x90x2,5) mit Duscharmatur (ohne Kabine); 1 x Küchenanschluss ohne Armatur; 1 x Waschmaschinenanschluss.    

    -    Bodenlegerarbeiten : 97 m² Eichenparkettböden lt. Marles Muster Kollektion werden samt Übergangsschienen in den Wohn- und Schlafräumen schwimmend verlegt.    

    -    Innentüren: 8 Stück weiße CPL-Röhrenspan-Innentüren samt Zargen (80/200) inkl. Beschläge (2 x WC-Beschläge) montiert.   Boden und Innentüren können zu zusammen bestellte werden !!



 

Belagsfertig :         477.800.-



Schlüsselfertig :    519.800.-




Infrastruktur / Entfernungen

Gesundheit
Arzt <1.500m
Apotheke <1.500m
Klinik <2.000m
Krankenhaus <1.500m

Kinder & Schulen
Schule <1.500m
Kindergarten <1.500m
Universität <7.500m
Höhere Schule <7.000m

Nahversorgung
Supermarkt <1.000m
Bäckerei <1.500m
Einkaufszentrum <7.500m

Sonstige
Bank <1.500m
Geldautomat <1.500m
Post <1.500m
Polizei <1.500m

Verkehr
Bus <500m
Bahnhof <2.500m
Flughafen <4.500m

Angaben Entfernung Luftlinie / Quelle: OpenStreetMap

Eckdaten Objektnr. 7819/118

Art: Haus
Land: Österreich
Baujahr: 2026
Zustand: Erstbezug
Alter: Neubau
Kaufpreis: 327.800,00
Wohnfläche: 125,00 m²
Grundstücksfl.: 472,00 m²
Zimmer: 4,50
Bäder: 1
WC: 2
Stellplätze: 2
Immobilie merken Exposé

Immobilie anfragen


Ihre persönliche Beratung

Roman Ensberger

E.R. Immobilien GmbH

T +43 664 967 20 68