Gratulation hier können Sie Ihren Wohntraum wahr machen !!!

Haus , 4522 Sierning


Dieses charmante Terrassenhaus in 4522 Sierning besticht durch seine zentrale Lage. Nur wenige Minuten vom Ortszentrum entfernt, genießen Sie die Vorzüge eines lebendigen Umfeldes mit Geschäften, Cafés und Restaurants. Ein Supermarkt ist in unmittelbarer Nähe, was Ihnen den Alltag erleichtert. Auch die Anbindung an den öffentlichen Verkehr ist ideal, mit einer Bushaltestelle in der Nähe. Hier vereinen sich Komfort und Lebensqualität!

Beschreibung der Immobilie

Gratulation hier können Sie Ihren Wohntraum wahr machen !!!

Willkommen in Ihrem neuen Traumhaus in der malerischen Gemeinde Sierning, Oberösterreich! Dieses wunderschöne Terrassenhaus bietet Ihnen nicht nur modernen Wohnkomfort, sondern auch eine perfekte Kombination aus Stil und Funktionalität. Mit einem attraktiven Kaufpreis von 327.800,00 € ist dieses Erstbezug-Haus eine einmalige Gelegenheit, Ihr neues Zuhause zu gestalten.



Haus             belagsfertig !!!



Grundstück



Sonderausstattung



GESAMTPREIS 479.800.-



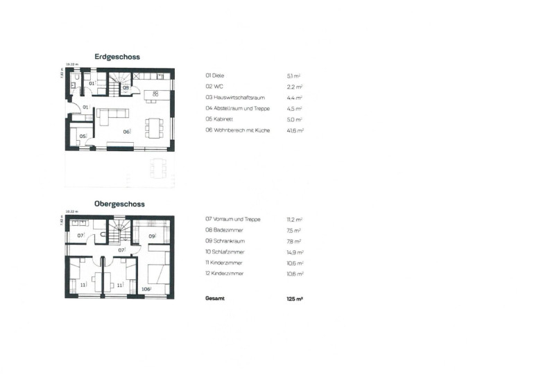
Auf einem Großzügigen Grundstück großzügigen von ca.472 m² und Wohnfläche ca. 125m² erwarten Sie vier lichtdurchflutete Zimmer, die Ihnen ausreichend Platz für individuelle Gestaltungsmöglichkeiten und eine harmonische Wohnatmosphäre bieten. Ob als Familie, Paar oder Single – hier finden Sie den idealen Rückzugsort, der Ihren Bedürfnissen gerecht wird.











Der Außenbereich des Hauses ist ein wahres Highlight. Der private Garten lädt dazu ein, die Sommerabende bei einem Glas Wein zu genießen oder mit Freunden und Familie gesellige Grillabende zu verbringen. Die zwei Stellplätze direkt vor der Tür gewährleisten Ihnen zudem ein bequemes Parken, während Sie sich in Ihrem neuen Zuhause entspannen.



Die durchdachte Raumaufteilung umfasst zwei moderne WCs, die sowohl Funktionalität als auch Komfort bieten. Somit sind Sie bestens auf Besuch vorbereitet und genießen gleichzeitig die Vorzüge eines praktischen Wohnkonzepts.



Die Lage in Sierning besticht durch eine hervorragende Verkehrsanbindung. In unmittelbarer Nähe finden Sie eine Bushaltestelle, die Ihnen eine bequeme Anbindung an die umliegenden Orte bietet. Zudem ist ein Supermarkt nur wenige Minuten entfernt, was den täglichen Einkauf zum Kinderspiel macht.



Genießen Sie die Vorzüge des ländlichen Lebens, ohne auf die Annehmlichkeiten der Stadt verzichten zu müssen. Sierning bietet Ihnen eine hohe Lebensqualität, eine ruhige Nachbarschaft und zahlreiche Freizeitmöglichkeiten in der Natur.



Lassen Sie sich diese Chance nicht entgehen und vereinbaren Sie noch heute einen Besichtigungstermin. Ihr neues Zuhause in Sierning wartet darauf, von Ihnen entdeckt zu werden!

Infrastruktur / Entfernungen

Gesundheit
Arzt <1.500m
Apotheke <1.500m
Klinik <2.000m
Krankenhaus <1.500m

Kinder & Schulen
Schule <1.500m
Kindergarten <1.500m
Universität <7.500m
Höhere Schule <7.000m

Nahversorgung
Supermarkt <1.000m
Bäckerei <1.500m
Einkaufszentrum <7.500m

Sonstige
Bank <1.500m
Geldautomat <1.500m
Post <1.500m
Polizei <1.500m

Verkehr
Bus <500m
Bahnhof <2.500m
Flughafen <4.500m

Angaben Entfernung Luftlinie / Quelle: OpenStreetMap

Eckdaten Objektnr. 7819/118

Art: Haus
Land: Österreich
Baujahr: 2026
Zustand: Erstbezug
Alter: Neubau
Kaufpreis: 327.800,00
Wohnfläche: 125,00 m²
Grundstücksfl.: 472,00 m²
Zimmer: 4,50
Bäder: 1
WC: 2
Stellplätze: 2
Immobilie merken Exposé

Immobilie anfragen


Ihre persönliche Beratung

Roman Ensberger

E.R. Immobilien GmbH

T +43 664 967 20 68