Wohnanlage in ruhiger Lage - Top A5

Wohnung - Etage, 6800 Feldkirch , Eicheleweg 13a


Die Wohnung befindet sich im Eicheleweg 13a in Feldkirch-Nofels, einem ruhigen Wohngebiet mit hohem Wohnkomfort. Die Umgebung ist geprägt von viel Grün und bietet zahlreiche Freizeit- und Erholungsmöglichkeiten wie Spazier- und Radwege. Alltagseinrichtungen in kurzer Distanz erreichbar: - Einkaufsmöglichkeiten - Apotheke - Schule und Kindergarten - Gastronomie und Nahversorgung Für Berufspendler bietet die Lage einen klaren Vorteil durch die Nähe zu Liechtenstein und der Schweiz. Die Anbindung an den öffentlichen Verkehr ist sehr gut, wodurch eine flexible Mobilität auch ohne PKW gewährleistet ist.

Beschreibung der Immobilie

Wohnanlage in ruhiger Lage - Top A5

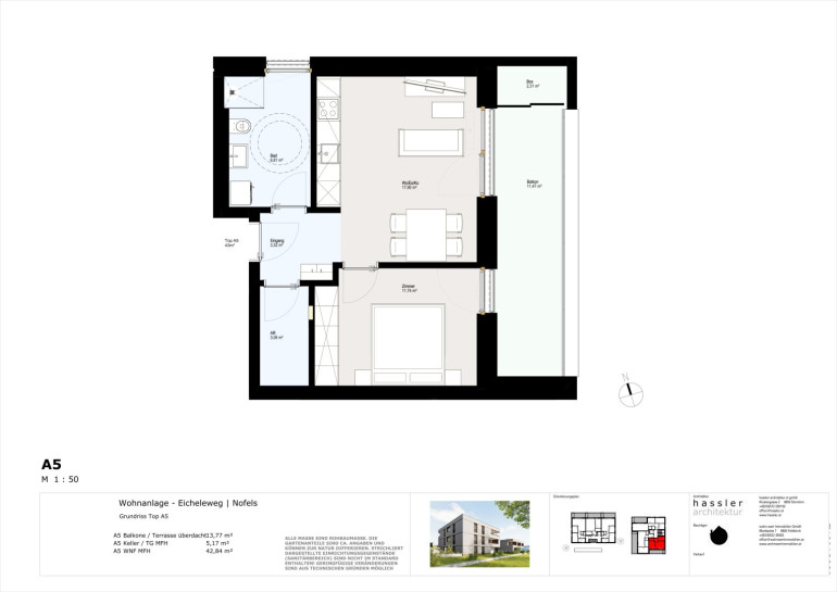
Modern wohnen auf kompakter Fläche



Die Wohnung befindet sich in einer 2024 errichteten Wohnanlage und liegt im 1. Obergeschoss. Die gepflegte 2-Zimmer-Wohnung mit ca. 42,84 m² überzeugt durch eine funktionale Raumaufteilung und zeitgemäße Ausstattung – ideal für Einzelpersonen oder Paare.



Raumaufteilung & Ausstattung:



  • Wohn-Essbereich
  • Schlafzimmer
  • Abstellraum
  • Bad mit Dusche
  • Überdachter Balkon mit ca. 11 m²


Weitere Details:



  • Einbauküche mit Miele-Geräten
  • Parkettboden in Wohn- und Schlafräumen
  • Fliesen im Bad
  • Personenaufzug vorhanden
  • Eigenes Kellerabteil
  • Tiefgaragenstellplatz inkludiert


Kurz gesagt: Eine moderne Mietwohnung mit klarer Raumstruktur, zeitgemäßer Ausstattung und praktischer Lage – kompakt & funktional



Unsere Angaben beziehen sich auf die Auskünfte des Eigentümers. Irrtum und Änderungen vorbehalten.

Noch nichts gefunden? Wir informieren Sie über geeignete Immobilienangebote noch vor allen anderen.
Legen Sie jetzt kostenlos Ihren individuellen Suchagenten unter folgendem Link an. Wir schicken Ihnen passende Immobilien exklusiv vorab zu.

Suchagent anlegen


Wir weisen darauf hin, dass zwischen dem Vermittler und dem zu vermittelnden Dritten ein familiäres oder wirtschaftliches Naheverhältnis besteht.


Der Immobilienmakler erklärt, dass er – entgegen dem in der Immobilienwirtschaft üblichen Geschäftsgebrauch des Doppelmaklers – einseitig nur für den Vermieter tätig ist.

Infrastruktur / Entfernungen

Gesundheit
Arzt <225m
Apotheke <950m
Krankenhaus <3.200m

Kinder & Schulen
Schule <575m
Kindergarten <200m
Höhere Schule <3.425m
Universität <3.475m

Nahversorgung
Supermarkt <175m
Bäckerei <925m
Einkaufszentrum <3.525m

Sonstige
Bank <975m
Geldautomat <975m
Post <450m
Polizei <3.200m

Verkehr
Bus <200m
Bahnhof <2.450m
Autobahnanschluss <4.525m

Angaben Entfernung Luftlinie / Quelle: OpenStreetMap

Eckdaten Objektnr. 5681/639

Art: Wohnung - Etage
Land: Österreich
Baujahr: 2023
Zustand: Erstbezug
Alter: Neubau
Gesamtmiete: 1.076,00
Kaltmiete (netto): 830,73 €
Kaltmiete: 960,55 €
Provision: Gemäß Erstauftraggeberprinzip bezahlt der Abgeber die Provision.
Betriebskosten: 129,82 €
Heizkosten: 9,68 €
MwSt Gesamt: 105,77 €
Wohnfläche: 42,84 m²
Zimmer: 2
Bäder: 1
WC: 1
Balkone: 1
Keller: 5,17 m²
Heizwärmebedarf:  B  30,00 kWh/m²a
fGEE:  A  0,72
Immobilie merken Exposé

Ausstattung

Parkett, Fliesen, Erdwärme, Solarenergie, Fußbodenheizung, Wohnküche / offene Küche, Personenaufzug, Ostbalkon, Bad mit Fenster, Dusche, DV-Verkabelung, Kabel/Satelliten-TV, Tiefgarage


Immobilie anfragen


Ihre persönliche Beratung

Rimo Immobilien GmbH

Daniel Marte

Rimo Immobilien GmbH

T +43 5522 39303 28