Wohnen im Weinparadies – Exklusive Gartenwohnung mit Panoramablick in Sankt Bartholomä

Wohnung , 8113 Sankt Bartholomä , Reiteregg


Die Gemeinde Sankt Bartholomä liegt auf einer Seehöhe von 499 Metern in der Weststeiermark im westlichen Teil des Bezirkes Graz-Umgebung, an der Grenze zum Bezirk Voitsberg. Die Entfernung zur steirischen Landeshauptstadt Graz beträgt etwa 15 km. In Sankt Bartholomä befindet sich eine Volksschule und die Gemeinde besitzt eine gute öffentliche Verkehrsverbindung und Infrastruktur, Apotheke und Supermärkte sind ebenfalls in wenigen Fahrminuten erreichbar.

Beschreibung der Immobilie

Wohnen im Weinparadies – Exklusive Gartenwohnung mit Panoramablick in Sankt Bartholomä

Wohnen im Weinparadies – Exklusive Gartenwohnung mit Panoramablick in Sankt Bartholomä





Das klingt nach einer beeindruckenden Wohngelegenheit! Eine moderne 4-Zimmer-Wohnung mitten in den Weinbergen der Weststeiermark, im malerischen Vulkanland, kombiniert den Genuss des Weinanbaus mit luxuriösem Wohnen. Besonders faszinierend ist die Lage in einem neu renovierten, futuristischen Gebäude, das Teil eines revitalisierten Weinguts ist. Das Gebäude scheint nicht nur Wohnraum zu bieten, sondern auch Ferienwohnungen und ein gehobenes Sterne-Restaurant, was die Attraktivität zusätzlich erhöht. Die Weststeiermark ist bekannt für ihre hervorragenden Weine, darunter den einzigartigen Schilcher sowie Weißweine und Rotweine wie den Zweigelt. Dieses Projekt klingt nach einer großartigen Möglichkeit, modernen Luxus in einer traditionsreichen und naturnahen Umgebung zu erleben





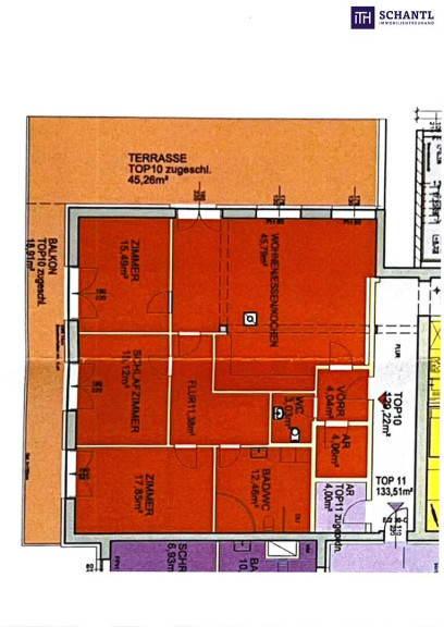
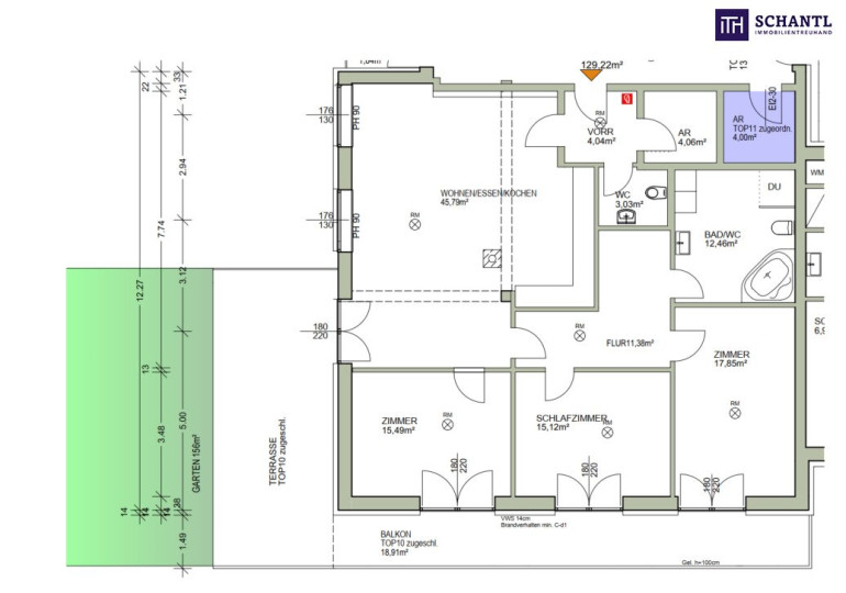
Fakten zur Top 10:



  • Wohnfläche von 129,22m²
  • Eigengarten ca. 100m²
  • Terrasse von 45,26m²
  • Balkon von 18,91m²
  • Wohn/ESS/KO auf 45,79m²
  • 3 Schlaf-Zimmer (17,85m² / 15,12m² / 15,49m²)
  • Flur 11,38m²
  • Abstellraum mit 4,06m²
  • Vorraum mit 4,04m²
  • Bad/WC mit einer Luxusdusche, einer Badewanne auf 12,46m²
  • WC mit 3,03m²
  • Abstellraum 1,06m²
  • 2 PKW-Abstellplätze
  • die Heizung erfolgt mittels Erdwärme, deshalb können Sie mit sehr niedrigen Kosten / Monat rechnen
  • Betriebskosten / Monat werden auch einen sehr moderaten Wert ergeben
  • der Kaufpreis der Top 10 beträgt inklusive der 2 PKW-Abstellplätze € 449.000,00
  • die Provision beträgt 3% zuzüglich der UST




Highlights der Top 10:



  • ideal geeignet für Familien!
  • SENSATION, die Heizung erfolgt mittels Erdwärme, diese ergibt besonders niedrige Heizkosten
  • riesiges Wohnzimmer mit Panoramablick, genießen Sie den atemberaubenden Blick auf die Weinberge durch große Fenster und luxuriöse Raumgestaltung
  • drei großzügige Schlafzimmer, extremst viel Platz für individuelle Gestaltungsmöglichkeiten und erholsame Nächte inmitten der Natur
  • ein luxuriöses Badezimmer, hochwertige Ausstattung und edle Materialien, mit einer Badewanne, einer barrierefreien Dusche, Handtuchtrockner 
  • ein Gäste WC mit Handwaschbecken
  • ein extremst großer Abstellraum in der Wohnung
  • direkter Zugang zum kleinen, entzückenden Eigengarten mit Terrasse, ideal geeignet für entspannte Stunden unter freiem Himmel mit Blick in die Weinberge
  • idyllische Lage in den Weinbergen, Ruhe und Natur pur, perfekt für Weinliebhaber und Naturliebhaber gleichermaßen
  • ein ausreichender Platz für einen eleganten Kücheneinbau
  • exklusive Architektur, moderne Architektur trifft auf ländlichen Charme, was diese Wohnung zu einem einzigartigen Wohnjuwel macht
  • hochwertige Fußbodenbeläge, Edle Holz- oder Natursteinböden, die sowohl optisch als auch haptisch höchsten Ansprüchen gerecht werden
  • umgeben von Natur und Ruhe, dort entfliehen Sie dem Alltag und genießen Sie die friedliche Atmosphäre der Weinberge, ideal zum Entspannen und Abschalten
  • ein Kellerraum
  • zwei PKW-Abstellplätze sind im KP inkludiert
  • im Gebäude befindet sich das hervorragende Lokal "GenussQuartier", falls Sie mal keine Lust zum selber kochen haben :-)
  • diese Highlights könnten der Wohnung ein wahres Luxusgefühl verleihen
  • es gibt noch die Möglichkeit diese Traum-Gartenwohnung zu mieten, oder durch einen Optionskauf zu erwerben




Worauf noch warten?



Vereinbaren Sie noch heute eine Besichtigung oder eine persönliche Beratung mit uns!

Sie wollen Ihre Immobilie verkaufen? Dann sind Sie bei uns goldrichtig!

Wir sind gerne für Sie da und unterstützen Sie unverbindlich bei der Bewertung Ihrer Immobilie. Mit viel Sorgfalt stellen wir Ihnen alle wichtigen Informationen und Unterlagen zusammen, damit Sie die besten Entscheidungen treffen können.

In Kooperation mit unserer SFI Vermögenstreuhand begleiten wir Sie bei der Verwirklichung Ihres Traumobjekts und unterstützen Sie beim nachhaltigen Vermögensaufbau. Mit unseren erfahrenen Experten sorgen wir dafür, dass Sie die

besten Konditionen erhalten – damit Ihre Träume Wirklichkeit werden!




www.schantl-ith.at in Kooperation mit sfi-invest.com




Die Angaben über das angebotene Objekt erfolgen mit der Sorgfalt eines ordentlichen Immobilienmaklers; für die Richtigkeit solcher Angaben, die auf Informationen der über das Objekt Verfügungsberechtigten beruhen, wird keine Gewähr geleistet!






Wir weisen darauf hin, dass zwischen dem Vermittler und dem zu vermittelnden Dritten ein familiäres oder wirtschaftliches Naheverhältnis besteht.


Der Vermittler ist als Doppelmakler tätig.

Infrastruktur / Entfernungen

Gesundheit
Arzt <1.750m
Apotheke <8.000m
Krankenhaus <9.500m
Klinik <8.250m

Kinder & Schulen
Schule <1.750m
Kindergarten <5.750m

Nahversorgung
Supermarkt <2.000m
Bäckerei <3.500m
Einkaufszentrum <9.000m

Sonstige
Bank <1.750m
Geldautomat <1.750m
Post <7.250m
Polizei <6.250m

Verkehr
Bus <500m
Straßenbahn <9.250m
Bahnhof <6.750m
Autobahnanschluss <9.000m

Angaben Entfernung Luftlinie / Quelle: OpenStreetMap

Eckdaten Objektnr. 293382

Art: Wohnung
Land: Österreich
Baujahr: 1979
Zustand: Erstbezug
Alter: Altbau
Kaufpreis: 449.000,00
Provision: 3% des Kaufpreises zzgl. 20% USt.
Betriebskosten: 130,00 €
Heizkosten: 135,00 €
Wohnfläche: 129,22 m²
Zimmer: 4
Bäder: 1
WC: 2
Balkone: 1
Terrassen: 1
Stellplätze: 2
Garten: 100,00 m²
Heizwärmebedarf:  B  27,70 kWh/m²a
fGEE:  A  0,71
Immobilie merken Exposé

Ausstattung

Fliesen, Parkett, Erdwärme, Fußbodenheizung, Personenaufzug, Bad mit Fenster, Dusche, Kabel/Satelliten-TV, Parkplatz


Immobilie anfragen


Ihre persönliche Beratung

Schantl ITH Immobilientreuhand GmbH

Ursula Seiwald

Schantl ITH Immobilientreuhand GmbH

T +436645411047

H +43 664 5725475