Sonniges Grundstück mit baubewilligtem Projekt!

Grundstück , 8501 Spatenhof


Lieboch ist eine Marktgemeinde mit 5504 Einwohnern in der Weststeiermark, 16 Kilometer südwestlich von Graz im Bezirk Graz-Umgebung. Das Gemeindegebiet umfasst die Ortschaften Lieboch, Schadendorf und Spatenfhof. Sämtliche Einkaufsmöglichkeiten finden sich fußläufig erreichbar. Aufgrund der Nähe zur Radlerstraße wird eine Schallschutzmauer errichtet!

Beschreibung der Immobilie

Sonniges Grundstück mit baubewilligtem Projekt!

Sie sind auf der Suche nach einem bewilligtem Projekt für ihr Einfamilienhaus?

Dann sind Sie hier genau richtig.



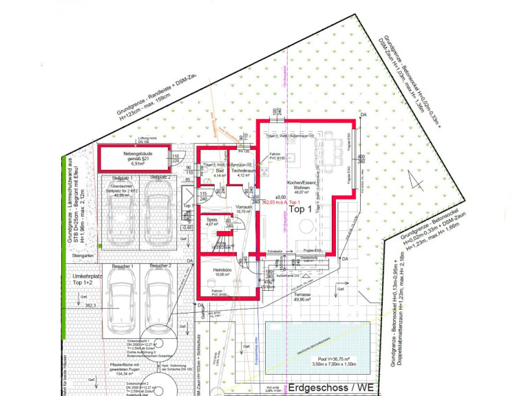
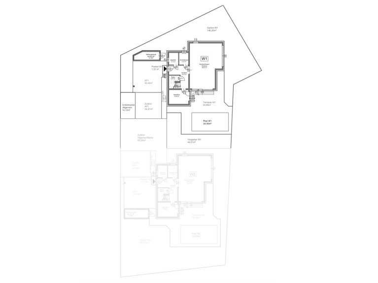
Zum Verkauf gelangt ein ca. 999m² großes Grundstück, wovon ihnen die Hälfte gehört.

Ein Nutwertgutachten aufgrund der Einreichplanung wurde bereits erstellt! Das Projekt

sieht auf dem Gesamtgrundstück zwei Einfamilienhäuser vor, wobei das zweite Einfamilienhaus

bereits vergeben ist.



Hard Facts:
- ca. 499.5m² Grundstücksgröße

- Genehmigtes Projekt Einfamilienhaus (138m²)

- Ebenes Grundstück

- Anschlüsse an der Grundstücksgrenze

...





Habe ich Ihr Interesse geweckt? Dann zögern Sie nicht und holen sich am besten gleich

die Infos per Mail oder Telefon ein - 0664/1495097.



Ich freue mich auf Ihren Anruf, Dominic Nagele - Stolz, DAHEIM D.A. Immobilien GmbH



Aufgepasst:
Wenn Sie Ihre eigene Immobilie verkaufen oder einfach nur den aktuellen

Marktwert erfahren möchten, bieten wir Ihnen gerne eine kostenlose & unverbindliche

online Bewertung
an. So wissen Sie genau, wo Sie stehen – transparent, professionell

und persönlich. Einfach unsere Homepage besuchen und unter dem Reiter Bewertung

ihre Angaben vervollständigen.

 


Hinweis gemäß Energieausweisvorlagegesetz: Ein Energieausweis wurde vom Eigentümer bzw. Verkäufer, nach unserer Aufklärung über die generell geltende Vorlagepflicht, sowie Aufforderung zu seiner Erstellung noch nicht vorgelegt. Daher gilt zumindest eine dem Alter und der Art des Gebäudes entsprechende Gesamtenergieeffizienz als vereinbart. Wir übernehmen keinerlei Gewähr oder Haftung für die tatsächliche Energieeffizienz der angebotenen Immobilie.

Infrastruktur / Entfernungen

Gesundheit
Arzt <500m
Apotheke <1.000m
Krankenhaus <9.000m

Kinder & Schulen
Schule <2.000m
Kindergarten <2.500m

Nahversorgung
Supermarkt <500m
Bäckerei <1.500m
Einkaufszentrum <6.500m

Sonstige
Bank <1.500m
Geldautomat <2.000m
Polizei <1.000m
Post <2.000m

Verkehr
Bus <500m
Autobahnanschluss <1.500m
Bahnhof <1.500m
Straßenbahn <9.000m
Flughafen <6.500m

Angaben Entfernung Luftlinie / Quelle: OpenStreetMap

Eckdaten Objektnr. 8086/406

Art: Grundstück
Land: Österreich
Kaufpreis: 159.900,00
Provision: 3% des Kaufpreises zzgl. 20% USt.
Wohnfläche: 138,50 m²
Grundstücksfl.: 499,00 m²
Zimmer: 4,50
Bäder: 2
WC: 2
Terrassen: 2
Garten: 193,00 m²
Immobilie merken Exposé

Immobilie anfragen


Ihre persönliche Beratung

DAHEIM D.A. Immobilien GmbH

Dominic Nagele-Stolz

DAHEIM D.A. Immobilien GmbH

T +43 664 149 50 97