FLOTTE 2-Zimmer Wohnung sucht FLOTTE Mieter!

Wohnung , 8043 Graz


Graz-Mariatrost, Unterer Plattenweg

Beschreibung der Immobilie

FLOTTE 2-Zimmer Wohnung sucht FLOTTE Mieter!

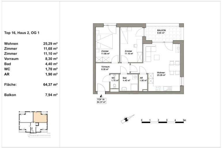
2-Zimmer Wohnung mit 64,37 m² Wohnfläche 1.Stock mit Lift





Zubehör: Balkon mit 7 m², Kellerabteil



Heizung: Fußbodenheizung



Energieausweis: HWB: 40,0 HWB Energieklasse B



Autoabstellplatz: öffentlicher Autoabstellplatz,



Gesamtzustand: sehr gut



Besonderes: sehr gepflegt, ideale Raumaufteilung, sehr hell und freundlich, 1-A Einbauküche, Fußbodenheizung, barrierefrei, Badezimmer mit Dusche, sehr gepflegtes Haus, top Infrastruktur u.v.m…

 



Miete: € 940,09 inkl. BK (Akonto)



Heizung: € 113,93 inkl. Warmwasser (Akonto)



Gesamtmiete: € 1.054,02 inkl. BK und Heizung





Kaution: 3 Monatsmieten



Honorar: !!! Provisionsfrei für den Mieter !!!



Auskünfte: Herr Peter Dusleag, Tel.: 0676/ 42 15 752





Wir freuen uns in Ihrem Interesse tätig zu sein und stehen Ihnen gerne für Detailfragen zur Verfügung!




Der Immobilienmakler erklärt, dass er – entgegen dem in der Immobilienwirtschaft üblichen Geschäftsgebrauch des Doppelmaklers – einseitig nur für den Vermieter tätig ist.

Infrastruktur / Entfernungen

Gesundheit
Arzt <500m
Apotheke <500m
Klinik <1.500m
Krankenhaus <1.000m

Kinder & Schulen
Schule <500m
Kindergarten <500m
Universität <1.000m
Höhere Schule <1.500m

Nahversorgung
Supermarkt <500m
Bäckerei <500m
Einkaufszentrum <3.000m

Sonstige
Geldautomat <500m
Bank <500m
Post <1.500m
Polizei <1.500m

Verkehr
Bus <500m
Straßenbahn <500m
Bahnhof <2.500m
Autobahnanschluss <7.000m

Angaben Entfernung Luftlinie / Quelle: OpenStreetMap

Eckdaten Objektnr. 5940/10010

Art: Wohnung
Land: Österreich
Baujahr: 2022
Zustand: Neuwertig
Alter: Neubau
Gesamtmiete: 1.054,02
Kaltmiete (netto): 670,83 €
Kaltmiete: 854,63 €
Provision: Gemäß Erstauftraggeberprinzip bezahlt der Abgeber die Provision.
Betriebskosten: 173,80 €
Heizkosten: 96,55 €
MwSt Gesamt: 102,84 €
Nutzfläche: 64,37 m²
Zimmer: 2
Bäder: 1
WC: 1
Balkone: 1
Heizwärmebedarf: 40,00 kWh/m²a
Immobilie merken Exposé

Ausstattung

Fliesen, Laminatboden, Gas, Zentralheizung, Einbauküche, Personenaufzug, Dusche


Immobilie anfragen


Ihre persönliche Beratung

PD Immobilien

Peter Dusleag

PD Immo

T +43 676 421 57 52

H 0771717771717