DG-Mietwohnung mit überdachter Terrasse in Pressbaumer Zentrumslage

Wohnung , 3021 Pressbaum


Beschreibung der Immobilie

DG-Mietwohnung mit überdachter Terrasse in Pressbaumer Zentrumslage

Die ruhig gelegene Wohnung ist nach Süd-Westen ausgerichtet und befindet sich im Dachgeschoß (2. Stock).



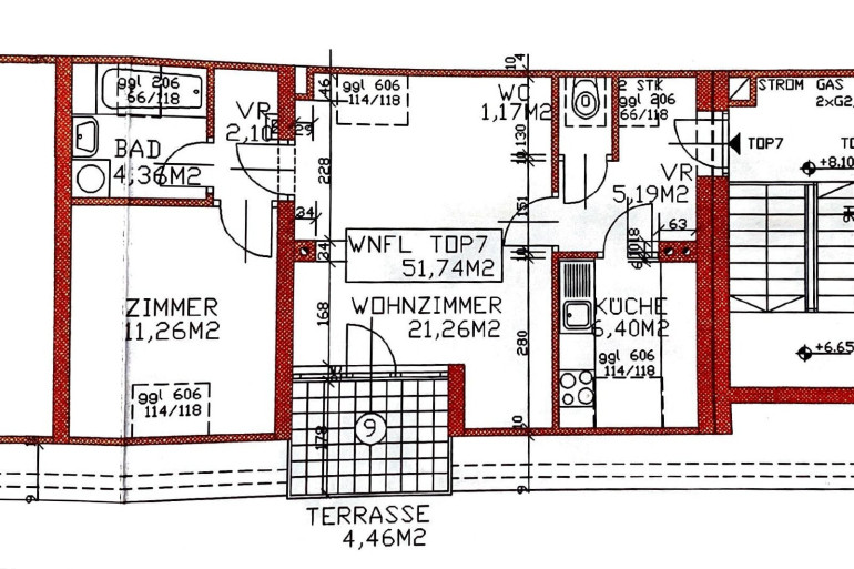
Die gepflegte Wohnung gliedert sich in einen Vorraum, ein Badezimmer, ein separates WC, eine Küche inkl. Geräten, ein Wohnzimmer mit kleiner, überdachter Südwest-Terrasse und in ein Schlafzimmer. Zur Wohnung gehört außerdem ein Kellerabteil und ein Parkplatz in der Garage.



Zahlreiche Infrastruktureinrichtungen der Wienerwald-Stadt Pressbaum (Schulen, Kindergärten, Einkaufsmöglichkeiten, Banken, Ärzte uvm.) liegen nur wenige Gehminuten entfernt und sind rasch mit dem Fahrrad oder bequem mit dem Auto zu erreichen. Zum Schulzentrum Sacre Coeur gelangt man über einen Fußweg durch das parkähnliche Schulgelände.



Die Bahnhaltestelle Pressbaum befindet sich auf der gegenüberliegenden Seite der Hauptstraße und bietet mit der Schnellbahnverbindung eine optimale öffentliche Anbindung nach Wien und St. Pölten. Die Wiener Stadtgrenze und der Bahnhof Hütteldorf mit "Park & Ride Anlage" sind rasch über die Autobahnanbindung A1 erreichbar, nach St. Pölten benötigt man nicht einmal eine halbe Stunde Fahrzeit.



Die Wohnung wird auf 5 Jahre befristet mit Verlängerungsmöglichkeit vermietet, der Gesamtmietpreis beträgt € 820,-- und beinhaltet Hauptmietzins, Betriebskosten und Garagenplatz. Die Kaution in der Höhe von € 2.460,-- ist dem Vermieter bei Mietvertragsunterzeichnung zu übergeben.



Verbrauchsabhängige Kosten wie Strom sowie eventuelle Kosten für Telefon, Fernsehen und Internet rechnen die Mieter direkt mit dem jeweiligen Anbieter ab.


Der Immobilienmakler erklärt, dass er – entgegen dem in der Immobilienwirtschaft üblichen Geschäftsgebrauch des Doppelmaklers – einseitig nur für den Vermieter tätig ist.

Infrastruktur / Entfernungen

Gesundheit
Arzt <1.000m
Apotheke <500m
Klinik <8.000m

Kinder & Schulen
Kindergarten <500m
Schule <500m

Nahversorgung
Supermarkt <500m
Bäckerei <500m

Sonstige
Bank <500m
Geldautomat <500m
Post <500m
Polizei <500m

Verkehr
Bus <500m
Bahnhof <500m
Autobahnanschluss <1.500m

Angaben Entfernung Luftlinie / Quelle: OpenStreetMap

Eckdaten Objektnr. 95319

Art: Wohnung
Land: Österreich
Zustand: Gepflegt
Gesamtmiete: 820,00
Kaltmiete (netto): 650,00 €
Kaltmiete: 820,00 €
Provision: Gemäß Erstauftraggeberprinzip bezahlt der Abgeber die Provision.
Betriebskosten: 170,00 €
Wohnfläche: 52,00 m²
Zimmer: 2
Bäder: 1
WC: 1
Terrassen: 1
Heizwärmebedarf:  C  72,50 kWh/m²a
fGEE:  C  1,86
Immobilie merken Exposé

Ausstattung

Fliesen, Parkett, Elektro, Einbauküche, Bad mit Fenster, Badewanne, Garage


Immobilie anfragen


Ihre persönliche Beratung

Rudi Dräxler Immobilientreuhand GesmbH

​Karin Hanika

Rudi Dräxler Immobilientreuhand GesmbH

T ​+43 1 577 44 34

H ​+43 664 394 0880