Sonnige Mietwohnung in Grünbach am Schneeberg!

Wohnung , 2733 Grünbach am Schneeberg


Grünbach am Schneeberg ist eine Marktgemeinde mit 1647 Einwohnern im Bezirk Neunkirchen in Niederösterreich.

Beschreibung der Immobilie

Sonnige Mietwohnung in Grünbach am Schneeberg!

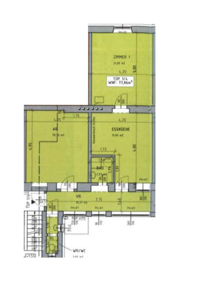
Zur Vermietung gelangt eine 73,86 m² große Wohnung in Grünbach am Schneeberg. Die gesamte Liegenschaft liegt in einer herrlichen Ruhelage und ist ideal als Starterwohnung beziehungsweise für Pärchen.



In der Zeit des Steinkohleabbaus entstand dieses Haus und gehörte zu den Gebäuden des Kohlebergwerks. Die Fassade wurde in mühevoller Kleinarbeit als Zeitzeuge erhalten und mit neuen Kunststofffenstern ausgestattet. Die Lage am Ortsrand und der anschließende Wald sowie das großzügig angelegte, von zahlreichen Bäumen geschützte Grundstück ermöglichen das Leben in und mit der Natur.



Beheizt wird das Objekt mittels Einzelofen und E-Heizung.



Mietpreis: EUR 590,00 inklusive Betriebskosten 



Kosten:

- Kaution: 3 Bruttomonatsmieten



Für nähere Details bzw. zur Vereinbarung von Besichtigungsterminen stehen wir Ihnen unter der Telefonnummer 0699 13080972 gerne zur Verfügung.



Wir weisen auf ein familiäres und wirtschaftliches Naheverhältnis hin.


Der Immobilienmakler erklärt, dass er – entgegen dem in der Immobilienwirtschaft üblichen Geschäftsgebrauch des Doppelmaklers – einseitig nur für den Vermieter tätig ist.

Infrastruktur / Entfernungen

Gesundheit
Arzt <500m
Klinik <9.000m
Apotheke <6.000m

Kinder & Schulen
Kindergarten <1.000m
Schule <500m

Nahversorgung
Supermarkt <1.000m
Bäckerei <6.000m

Sonstige
Bank <1.000m
Geldautomat <1.000m
Post <1.000m
Polizei <5.500m

Verkehr
Bus <500m
Bahnhof <500m

Angaben Entfernung Luftlinie / Quelle: OpenStreetMap

Eckdaten Objektnr. 6304/2226

Art: Wohnung
Land: Österreich
Gesamtmiete: 590,00
Kaltmiete (netto): 590,00 €
Kaltmiete: 590,00 €
Provision: Gemäß Erstauftraggeberprinzip bezahlt der Abgeber die Provision.
Wohnfläche: 73,86 m²
Immobilie merken Exposé

Immobilie anfragen


Ihre persönliche Beratung

WirtschaftsService Immobilien

Armin Hohenschläger

WirtschaftsService Immobilien

T +43 2635 64530

H +43 699 13080972

F +43 2635 64730