360 TOUR // TERRASSENWOHNUNG NAHE VORGARTENMARKT

Wohnung , 1020 Wien


Beschreibung der Immobilie

360 TOUR // TERRASSENWOHNUNG NAHE VORGARTENMARKT

TERRASSENWOHNUNG NAHE VORGARTENMARKT



Diese Dachgeschosswohnung in einem Neubau in unmittelbarer Nähe zum WU Campus/Messegelände, Prater, Tech Gate und Donauinsel

gliedert sich auf wie folgt auf:



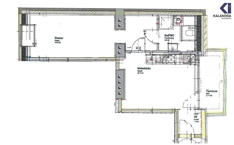
Raumaufteilung:

Vorraum, 15 m² Wohnraum mit offener Küche, Ausgang auf eine 6m² große Terrasse,Schlafzimmer ( 14m² ) , Bad mit Wanne & Dusche, Waschbecken, WC



Ausstattung:

• Parkettboden in den Wohnräumen

• Komplettküche

• Gasetagen- Fußbodenheizung

• Außenrollos



Es wird ein unbefristetes Mietverhältnis angeboten.



Ein Kellerabteil gehört zur Wohnung, ein Fahrradabstellraum steht zur Mitbenützung zur Verfügung.



Infrastruktur:

Nähe zu U1, U2, Messegelände, WU Campus, Mexikoplatz, Vorgartenmarkt, Donauinsel, Tech Gate etc.

Die Lassallestraße, die Engerthstraße und der Praterstern bieten sämtliche Einkaufsmöglichkeiten.

Die Donauinsel und der Prater als Naherholungsgebiete bieten Ihnen eine Vielzahl an Freizeitangeboten,

die Wiener Innenstadt ist nur 3 U Bahnstationen entfernt.



360 Tour:

https://360.kalandra.at/view/portal/id/VVQN0







Eine Besichtigung der Wohnung jederzeit möglich,





Bitte vorab der Besichtigung um die Selbstauskunft.





Der Eigentümer wünscht ein Nettoeinkommen der dreifachen Miete




Der Immobilienmakler erklärt, dass er – entgegen dem in der Immobilienwirtschaft üblichen Geschäftsgebrauch des Doppelmaklers – einseitig nur für den Vermieter tätig ist.

Infrastruktur / Entfernungen

Gesundheit
Arzt <500m
Apotheke <500m
Klinik <500m
Krankenhaus <1.500m

Kinder & Schulen
Schule <500m
Kindergarten <500m
Universität <500m
Höhere Schule <2.000m

Nahversorgung
Supermarkt <500m
Bäckerei <500m
Einkaufszentrum <2.000m

Sonstige
Geldautomat <500m
Bank <500m
Post <1.000m
Polizei <500m

Verkehr
Bus <500m
U-Bahn <500m
Straßenbahn <500m
Bahnhof <500m
Autobahnanschluss <1.500m

Angaben Entfernung Luftlinie / Quelle: OpenStreetMap

Eckdaten Objektnr. 17953

Art: Wohnung
Land: Österreich
Baujahr: 2018
Zustand: Erstbezug
Gesamtmiete: 1.174,73
Kaltmiete (netto): 955,68 €
Kaltmiete: 1.067,93 €
Provision: Gemäß Erstauftraggeberprinzip bezahlt der Abgeber die Provision.
Betriebskosten: 112,25 €
MwSt Gesamt: 106,80 €
Wohnfläche: 43,44 m²
Zimmer: 2
Bäder: 1
WC: 1
Terrassen: 1
Immobilie merken Exposé

Ausstattung

Gas, Etagenheizung, Personenaufzug


Immobilie anfragen


Ihre persönliche Beratung

KALANDRA Immobilien Robert Kalandra e.U.

Mag. Robin Kalandra

KALANDRA Immobilien Robert Kalandra e.U.

T +43-1533326913

H +43-69911804004

F +43-1-533-32-69-20