Neuwertige Wohnung im Zentrum von Roitham zu mieten!

Wohnung , 4661 Roitham am Traunfall


Beschreibung der Immobilie

Neuwertige Wohnung im Zentrum von Roitham zu mieten!

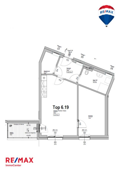
Willkommen in Ihrem neuen Zuhause in Roitham am Traunfall – einer charmanten Wohnung, die nicht nur durch ihre Lage, sondern auch durch ihre durchdachte Raumaufteilung überzeugt. Diese ansprechende 2-Zimmer-Wohnung mit einer Fläche von ca. 53 m² bietet Ihnen den idealen Rückzugsort, um sich nach einem langen Tag zu entspannen und die Vorzüge des Lebens in Oberösterreich zu genießen.



Die Wohnung besticht durch ihren modernen Grundriss und eine einladende Atmosphäre. Der lichtdurchflutete Wohnbereich ist perfekt für gesellige Abende mit Freunden oder entspannte Stunden alleine. Die angrenzende Einbauküche ist nicht nur funktional, sondern lädt auch dazu ein, kulinarische Köstlichkeiten zu kreieren.



Der Balkon, der sich ideal für gemütliche Frühstücke oder entspannte Nachmittage eignet, erweitert Ihren Wohnraum nach draußen.



Die Wohnung verfügt außerdem über zwei gut geschnittene Zimmer, die Ihnen vielfältige Nutzungsmöglichkeiten bieten. Ob als Schlafzimmer, Arbeitszimmer oder Gästezimmer – hier können Sie Ihre individuellen Wohnideen verwirklichen.



Ein weiterer Vorteil dieser Immobilie ist die hervorragende Verkehrsanbindung. Die nahegelegene Bushaltestelle sorgt dafür, dass Sie schnell und unkompliziert in die umliegenden Städte gelangen.



Die Lage in Roitham am Traunfall bietet Ihnen zudem eine Reihe von Annehmlichkeiten. In unmittelbarer Nähe finden Sie eine Schule, die für Familien mit Kindern von großem Vorteil ist. Supermärkte sind ebenfalls schnell erreichbar, sodass Sie Ihre Einkäufe bequem und zeitsparend erledigen können.



Bei dieser Wohnung steht kein Parkplatz zur Verfügung. 



Zögern Sie nicht und vereinbaren Sie noch heute einen Besichtigungstermin, um sich selbst von den Vorzügen dieser wunderbaren Wohnung zu überzeugen. Ihr neues Zuhause wartet auf Sie!


Der Immobilienmakler erklärt, dass er – entgegen dem in der Immobilienwirtschaft üblichen Geschäftsgebrauch des Doppelmaklers – einseitig nur für den Vermieter tätig ist.

Infrastruktur / Entfernungen

Gesundheit
Arzt <4.500m
Apotheke <5.000m
Klinik <5.000m

Kinder & Schulen
Schule <500m
Kindergarten <4.000m

Nahversorgung
Supermarkt <500m
Bäckerei <4.000m

Sonstige
Bank <500m
Geldautomat <500m
Post <5.000m
Polizei <4.500m

Verkehr
Bus <500m
Bahnhof <5.500m
Autobahnanschluss <3.000m
Flughafen <9.000m

Angaben Entfernung Luftlinie / Quelle: OpenStreetMap

Eckdaten Objektnr. 7359/3563

Art: Wohnung
Land: Österreich
Gesamtmiete: 771,66
Kaltmiete (netto): 437,57 €
Kaltmiete: 621,42 €
Provision: Gemäß Erstauftraggeberprinzip bezahlt der Abgeber die Provision.
Betriebskosten: 183,85 €
Heizkosten: 75,73 €
MwSt Gesamt: 74,51 €
Wohnfläche: 53,49 m²
Zimmer: 2
Bäder: 1
WC: 1
Balkone: 1
Heizwärmebedarf:  D  104,60 kWh/m²a
fGEE:  C  1,57
Immobilie merken Exposé

Ausstattung

Einbauküche, Westbalkon


Immobilie anfragen


Ihre persönliche Beratung

RE/MAX ImmoCenter - CASA TERRA IMMOBILIENTREUHAND GmbH

Julia Katharina Huber

CASA TERRA IMMOBILIENTREUHAND GmbH

T +43 7672 221 22

H +43 660 200 68 63

F +43 7672 221 22 50