Gut geschnittene 2,5 Zimmer Wohnung mit neuer Küche mit Balkon in 1210 Wien
Wohnung
- Etage,
1210
Wien
,
Leopoldauer Straße 163
Die Wohnung befindet sich in der Leopoldauer Straße, im Herzen des lebenswerten 21. Bezirks in Wien, Österreich. Diese Lage bietet eine exzellente Balance zwischen urbanem Komfort und naturnahem Wohnen. Der 21. Bezirk, auch bekannt als Floridsdorf, ist bekannt für seine hohe Lebensqualität und zahlreiche Grünflächen. In unmittelbarer Nähe zur Immobilie finden Sie verschiedene Einkaufsmöglichkeiten für den täglichen Bedarf, darunter Supermärkte, Apotheken und kleine Fachgeschäfte. Die ausgezeichnete Anbindung an den öffentlichen Verkehr, mit mehreren Bus- und Straßenbahnlinien sowie der Nähe zu den S-Bahn-Stationen, ermöglicht eine schnelle und unkomplizierte Erreichbarkeit des Stadtzentrums und anderer wichtiger Knotenpunkte Wiens. Für Familien sind Schulen und Kindergärten bequem erreichbar, und Sport- sowie Freizeiteinrichtungen bieten vielfältige Möglichkeiten für eine ausgeglichene Work-Life-Balance. Zusammengefasst bietet diese Immobilie eine perfekte Lage für all jene, die das Beste aus zwei Welten genießen möchten: die ruhige Idylle und die urbane Vielfalt Wiens.
Beschreibung der Immobilie
Gut geschnittene 2,5 Zimmer Wohnung mit neuer Küche mit Balkon in 1210 Wien
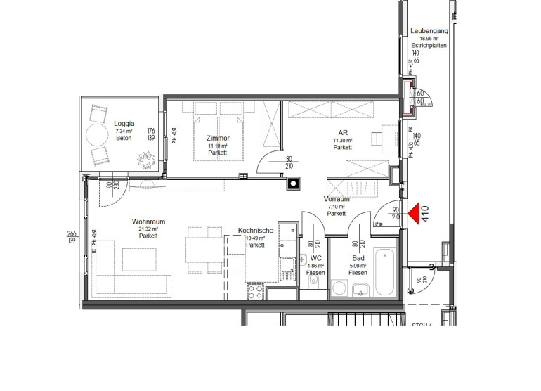
Zur Vermietung gelangt eine gut geschnittene 2,5-Zimmer Wohnung im 2. Obergeschoss in einem gepflegten Neubauwohnhaus.Das Haus wurde 2014 errichtet und verfügt über einen Aufzug.
Die Wohnung wurde mit einer komplett neuen Küche ausgestattet und wird auf 3 Jahre befristet vermietet - mit Option auf Verlängerung.
Aufteilung der Wohnung:
- großzügige Wohnküche mit Nische für die Küche
- Abstellraum an der Küche angrenzend
- Loggia 7,34 m²
- zwei Schlafzimmer, wobei eines ein Durchgangszimmer ist
- Vorzimmer
- separates WC
- Badezimmer mit Wanne und Waschmaschinenanschluss
In der Gesamtmiete von € 1.299,00 ist bereits ein Heizkostenakonto inkludiert.
Fotos sind zum Teil Beispielbilder von vergleichbaren Wohnungen im Haus.
Eckdaten Objektnr. 10916667
| Art: | Wohnung - Etage |
| Land: | Österreich |
| Baujahr: | 2014 |
| Gesamtmiete: | 1.299,00 € |
| Kaltmiete (netto): | 944,22 € |
| Provision: | provisionsfrei für den Mieter |
| Betriebskosten: | 178,31 € |
| Heizkosten: | 52,74 € |
| Wohnfläche: | 68,30 m² |
| Zimmer: | 3 |
| Bäder: | 1 |
| WC: | 1 |
Ausstattung
Parkett, Fernwärme, Zentralheizung, Einbauküche, Personenaufzug, Südbalkon, Badewanne
Ihre persönliche Beratung
Dieser Makler ist ein offizielles Mitglied des IR – ir.at Mehr Erfahren
