PALAIS HARDEGG: Großzügige 3-Zimmer-Dachgeschoßwohnung mit zwei Terrassen direkt an der Freyung - zu mieten in 1010 Wien
Wohnung
- Dachgeschoß,
1010
Wien
,
Freyung 1
In unmittelbarer Nähe der Wohnung finden sich diverse Einkaufsmöglichkeiten, Supermärkte, Restaurants, das Café Central, diverses Kulturangebot, das Burgtheater und ideale Anbindungen an den öffentlichen Verkehr (U3 Herrengasse, U2 Schottentor, Buslinie 1A, Straßenbahnlinien 1, 71 und D).
Wohnzimmer
Terrasse unten
Schlafzimmer 1
Badezimmer en suite 2
Schlafzimmer 2
Donaunixenbrunnen
Terrasse oben
Terrasse oben
Badezimmer 2 en suite
Schrankraum 2
Terrasse unten
Badezimmer en suite 1
Küche
Schrankraum 1
Wohnzimmer
Eingangsbereich
Badezimmer en suite 2
Ferstel Passage
Abstellraum
Gäste-WC
Außenansicht - Palais Hardegg
Grundriss 1
Grundriss 2
Lageplan
Beschreibung der Immobilie
PALAIS HARDEGG: Großzügige 3-Zimmer-Dachgeschoßwohnung mit zwei Terrassen direkt an der Freyung - zu mieten in 1010 Wien
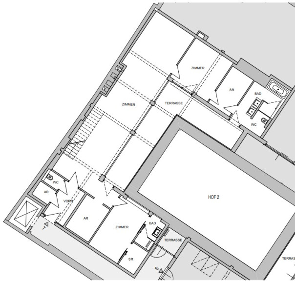
Wohnen im Herzen von Wien - direkt an der Freyung, im Palais Hardegg, gelangt im 2008 ausgebauten Dachgeschoß diese großzügige 3-Zimmer-Wohnung mit zwei Terrassen auf 5 Jahre befristet (mit Verlängerungsoption) in Vermarktung.Die Wohnung erstreckt sich insgesamt auf ca. 135 m², drei Zimmer und zwei Terrassen - sie teilt sich wie folgt:
Eingangsbereich/Vorraum mit Einbauschrank, Abstellraum mit Waschmaschinenanschluss, Gäste-WC mit Handwaschbecken, äußerst geräumiger Wohnbereich, separate und voll ausgestattete Küche, Schlafzimmer 1 mit Schrankraum (inklusive Einbauschränken) und Badezimmer en suite mit Dusche und Waschtisch, Schlafzimmer 2 mit großem Schrankraum (Durchgang zum Badezimmer 2) und ebenso Badezimmer en suite mit Wanne, Dusche, Doppelwaschtisch und WC.
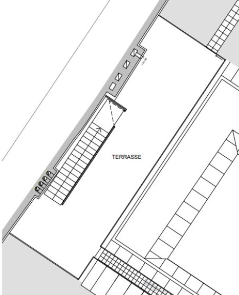
Auf der Wohnebene gibt es eine Terrasse mit ca. 30 m², welche vom Wohnbereich als auch vom Schlafzimmer 2 aus begehbar ist. Vom Wohnbereich aus führen Treppen in die obere Etage zu einer zweiten Terrasse mit weiteren, ca. 39 m².
Eckdaten Objektnr. 109258240
| Art: | Wohnung - Dachgeschoß |
| Land: | Österreich |
| Baujahr: | 2008 |
| Gesamtmiete: | 3.295,00 € |
| Kaltmiete (netto): | 2.656,64 € |
| Betriebskosten: | 338,82 € |
| Wohnfläche: | 135,00 m² |
| Zimmer: | 3 |
| Bäder: | 2 |
| WC: | 2 |
| Terrassen: | 2 |
Ausstattung
Fliesen, Parkett, Fernwärme, Zentralheizung, Einbauküche, Personenaufzug, Bad mit Fenster, Badewanne, Dusche
Ihre persönliche Beratung
Dieser Makler ist ein offizielles Mitglied des IR – ir.at Mehr Erfahren
