Dachgeschoß-Maisonette im Stadtpalais Harrach an der Freyung - zu mieten in 1010 Wien
Wohnung
- Dachgeschoß,
1010
Wien
,
Freyung 3
Ein Autoabstellplatz kann nach Verfügbarkeit in der nahe gelegenen Tiefgarage auf der Freyung angemietet werden. Durch die Nähe zum Schottentor und der U3 Herrengasse ist die Wohnung auch bestens an die öffentlichen Verkehrsmittel angebunden. Geschäfte des täglichen Bedarfs befinden sich in unmittelbarer Nähe. Durch die Lage an der Freyung befindet man sich nur wenige Schritte vom Kohlmarkt, Goldenen Quartier, Graben, Hofburg und Schottenstift entfernt.
Beschreibung der Immobilie
Dachgeschoß-Maisonette im Stadtpalais Harrach an der Freyung - zu mieten in 1010 Wien
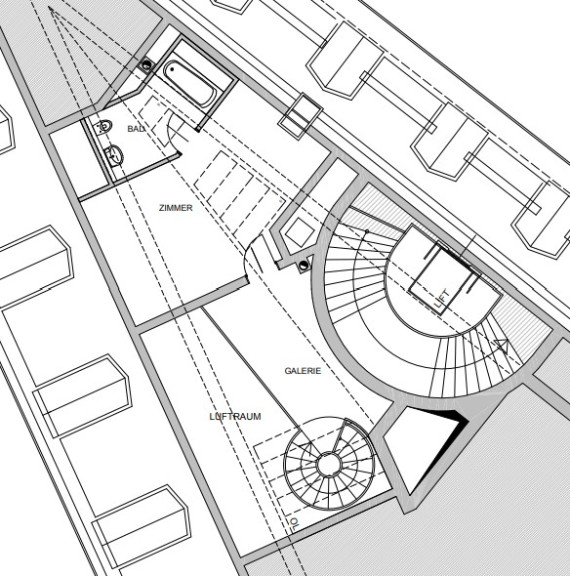
Mitten im Leben der Wiener Innenstadt, mit allen Vorteilen der Lage an der Freyung, können Sie in dieser Wohnung zudem wunderbare Ruhe und eine herrliche Atmosphäre finden. Die stilvolle 2,5-Zimmer-DG-Maisonette erstreckt sich insgesamt auf ca. 131 m².Die Wohnung teilt sich wie folgt:
Erste Ebene:
- Vorraum
- Abstellraum mit Waschmaschinenanschluss
- separates Gäste-WC mit Handwaschbecken
- großer Wohnraum
- separate, voll ausgestattete Küche
- Wendeltreppe zu:
Zweite Ebene:
- Galerie
- Schlafzimmer mit Badezimmer en suite mit Dusche, WC und Waschtisch
Zusätzlich zur Gesamtmiete werden monatliche Kosten in Höhe von derzeit ca. € 269,53 brutto für Heizung und Warmwasser und ca. € 263,36 brutto für die Kühlung verrechnet.
Eckdaten Objektnr. 10927464
| Art: | Wohnung - Dachgeschoß |
| Land: | Österreich |
| Baujahr: | 1702 |
| Gesamtmiete: | 2.495,00 € |
| Kaltmiete (netto): | 1.811,80 € |
| Betriebskosten: | 456,38 € |
| Wohnfläche: | 131,26 m² |
| Zimmer: | 2,50 |
| Bäder: | 1 |
| WC: | 2 |
Ausstattung
Parkett, Fliesen, Fernwärme, Zentralheizung, Einbauküche, Personenaufzug, Dusche
Ihre persönliche Beratung
Dieser Makler ist ein offizielles Mitglied des IR – ir.at Mehr Erfahren
