Baujahr 2020 - 2 Zimmer Neubau zu vermieten

Wohnung , 1120 Wien


Beschreibung der Immobilie

Baujahr 2020 - 2 Zimmer Neubau zu vermieten

1120 Wien - Aßmayergasse 



Baujahr 2020, 



2 Zimmer Neubau zu vermieten,



bei den Fotos handelt es sich um Beispielfotos einer vergleichbaren Wohnung im Haus, 



die U6 bzw. der Bahnhof Meidling sowie die Badner Bahn, die Straßenbahnlinie 62 und die Buslinien 8A, 9A, 59A und 62A sind in kurzer Gehdistanz zu erreichen, 



1. Liftstock, 



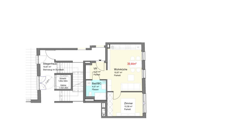
39,44 m2 Wohnfläche,



Wohnzimmer mit offener Wohnküche, Schlafzimmer, Vorzimmer, 



Bad mit Dusche und WC,



Zentralheizung (Fußbodenheizung), 



Mietdauer: 5 Jahre, 



1 Kellerabteil vorhanden, 



bei Bedarf kann ein Garagenstellplatz für extra € 115,00 brutto/Monat angemietet werden (Warteliste), 



weiters stehen auch noch zusätzliche Lagerflächen, welche extra angemietet werden können, zur Verfügung, 



BMM: €   823,78 ( inkl. BK und 10% UST. ) 



zzgl.   €     52,11 brutto/Monat Heizungs- und Warmwasserakonto 





Nebenkosten bei Anmietung:



Kaution: 3BMM 


Der Immobilienmakler erklärt, dass er – entgegen dem in der Immobilienwirtschaft üblichen Geschäftsgebrauch des Doppelmaklers – einseitig nur für den Vermieter tätig ist.

Infrastruktur / Entfernungen

Gesundheit
Arzt <500m
Apotheke <500m
Klinik <500m
Krankenhaus <1.000m

Kinder & Schulen
Schule <500m
Kindergarten <500m
Universität <1.000m
Höhere Schule <500m

Nahversorgung
Supermarkt <500m
Bäckerei <500m
Einkaufszentrum <1.000m

Sonstige
Geldautomat <500m
Bank <500m
Post <500m
Polizei <1.000m

Verkehr
Bus <500m
U-Bahn <1.000m
Straßenbahn <500m
Bahnhof <500m
Autobahnanschluss <2.500m

Angaben Entfernung Luftlinie / Quelle: OpenStreetMap

Eckdaten Objektnr. 6876/1540

Art: Wohnung
Land: Österreich
Alter: Neubau
Gesamtmiete: 823,78
Kaltmiete (netto): 632,11 €
Kaltmiete: 748,89 €
Provision: Gemäß Erstauftraggeberprinzip bezahlt der Abgeber die Provision.
Betriebskosten: 116,78 €
MwSt Gesamt: 74,89 €
Wohnfläche: 39,44 m²
Nutzfläche: 39,44 m²
Grundstücksfl.: 39,44 m²
Gesamtfläche: 39,44 m²
Zimmer: 2
Bäder: 1
WC: 1
Heizwärmebedarf:  B  29,30 kWh/m²a
fGEE:  B  0,89
Immobilie merken Exposé

Ausstattung

Fliesen, Parkett, Gas, Zentralheizung, Wohnküche / offene Küche, Dusche, Garage


Immobilie anfragen


Ihre persönliche Beratung

BRI Immobilienmakler GmbH

Michelle Gnadenberger

BRI Immobilienmakler GmbH

T +43 676 7043377