Toll geschnittene Drei-Zimmer-Wohnung mit Wohlfühl- und Ausbaupotenzial in Margareten

Wohnung , 1050 Wien


Beschreibung der Immobilie

Toll geschnittene Drei-Zimmer-Wohnung mit Wohlfühl- und Ausbaupotenzial in Margareten

Zum Verkauf steht diese teilrenovierte, sehr gut geschnittene Drei-Zimmer-Wohnung im 2. Obergeschoss eines Neubaus des Jahres 1957. Das Wohnhaus befindet sich in einer ruhigen Seitengasse in unmittelbarer Nähe der Wiedner Hauptstraße.



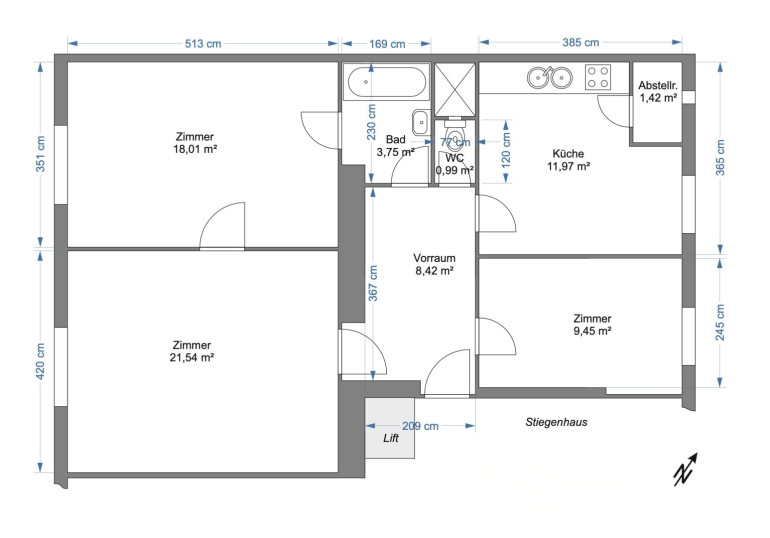
Die mit einem idealen Grundriss versehene, teilrenovierte Drei-Zimmer-Wohnung verfügt über ein ca. 22 m² und ca. 18 m² großes Zimmer zur ruhigen Gassesowie ein weiteres, dem Hof zugewandtes, ca. 9 m² großes Zimmer. Zentral begehbar sind darüber hinaus die Küche mit angrenzendem Abstellraum, das Badezimmer sowie die separate Toilette. Das Verkaufsobjekt befindet sich in einem renovierungsbedürftigen Zustand - die Elektrik wurde vor kurzem auf den neuesten Stand der Technik gebracht. Das Verkaufsobjekt in gesuchter Mikrolage hat nach einer liebevollen Renovierung durchaus langfristiges Potential für ein gemütliches Zuhause, aber natürlich auch als attraktive Kapitalanlage mit moderater Wertsteigerung bei Vermietung.



Fakten & Daten



  • Ruhelage Nähe Wiedner Hauptstraße 
  • 1957 errichtetes Wohnhaus 
  • Drei-Zimmer-Wohnung
  • ca. 76 m² Wohnfläche
  • Wohnzimmer
  • zwei weitere Zimmer
  • Badezimmer
  • separate Toilette
  • Abstellraum / Speis
  • Kellerabteil
  • Waschküche
  • Fahrradabstellraum
  • Personenlift


Ausstattung



  • Badezimmer mit Badewanne, Waschbecken
  • Elektroheizung
  • Rollläden
  • innenliegender Sonnen- und Sichtschutz


Lage & Infrastruktur



Die Geigergasse im 5. Wiener Gemeindebezirk Margareten ist eine typische Wohnstraße mit weitgehend urbanem Ambiente, eingebettet in ein Gemisch aus Altbauten und neueren Wohnprojekten. Die unmittelbare Umgebung verfügt über eine dichte Bebauung und ist einerseits ruhig, andererseits sehr stadtteiltypisch belebt.



Die Infrastruktur ist dicht gewachsen und die Versorgungslage daher ausgezeichnet - sämtliche Geschäfte und Einrichtungen des täglichen Bedarfs sowie weitere Einrichtungen wie Schulen, Apotheken oder Arztpraxen sind ebenfalls lokal gut verteilt.



Verschiedene kleine Parks und Grünflächen liegen in erreichbarer Nähe. Betreffend Gastronomie und kultureller Angebote bietet Margareten und insbesondere Straßen wie Geigergasse, Siebenbrunnengasse oder Laurenzgasse eine gute Auswahl an Cafés, Restaurants und Lokalen und somit eine lebendige Nachbarschaft mit urbanem Charakter.

 



Verkehrsanbindung



Mittels Individualverkehr ermöglicht die zentrale Lage eine sehr gute Anbindung in alle Richtungen.

U-Bahn Linie U1 (Südtiroler Platz) in ca. 1 km Entfernung bzw. 2 Stationen mit der Straßenbahn.

In absehbarer Zeit U-Bahn Linie U2 (Matzleinsdorfer Platz) in Gehnähe.

Die Straßenbahn-Linien 18 und 62 sowie die Badner-Bahn sind in wenigen Gehminuten in ca. 200 m Entfernung zu erreichen.

 



Sonstiges



Wir ersuchen um Verständnis, dass wir aufgrund unserer Nachweispflicht gegenüber dem Eigentümer / der Eigentümerin nur Anfragen mit vollständigen Kontaktdaten (Name, Adresse, Telefonnummer, E-Mail) bearbeiten können.



Sämtliche Angaben zum beschriebenen Verkaufsobjekt sind ohne Gewähr und basieren auf Informationen und Unterlagen, die vom Eigentümer der Liegenschaft bzw. Dritten zur Verfügung gestellt wurden. Für Vollständigkeit, Richtigkeit und Aktualität aller Angaben und Abmessungen wird keine Gewähr übernommen. Allfällige Änderungen, Irrtümer, Satz- und Druckfehler vorbehalten.


Wir weisen darauf hin, dass zwischen dem Vermittler und dem zu vermittelnden Dritten ein familiäres oder wirtschaftliches Naheverhältnis besteht.


Der Vermittler ist als Doppelmakler tätig.

Infrastruktur / Entfernungen

Gesundheit
Arzt <500m
Apotheke <500m
Klinik <1.000m
Krankenhaus <1.000m

Kinder & Schulen
Schule <500m
Kindergarten <500m
Universität <500m
Höhere Schule <1.000m

Nahversorgung
Supermarkt <500m
Bäckerei <500m
Einkaufszentrum <1.000m

Sonstige
Geldautomat <500m
Bank <500m
Post <500m
Polizei <1.000m

Verkehr
Bus <500m
U-Bahn <500m
Straßenbahn <500m
Bahnhof <500m
Autobahnanschluss <3.000m

Angaben Entfernung Luftlinie / Quelle: OpenStreetMap

Eckdaten Objektnr. 197

Art: Wohnung
Land: Österreich
Baujahr: 1957
Alter: Neubau
Kaufpreis: 349.900,00
Kaufpreis / m²: 4.630,76 €
Provision: 12.596,40 € inkl. 20% USt.
Betriebskosten: 194,68 €
MwSt Gesamt: 19,47 €
Wohnfläche: 75,56 m²
Nutzfläche: 75,56 m²
Zimmer: 3
Bäder: 1
WC: 1
Keller: 4,20 m²
Heizwärmebedarf:  D  114,00 kWh/m²a
fGEE:  C  1,54
Immobilie merken Exposé

Ausstattung

Fliesen, Elektro, Personenaufzug, Badewanne, Wasch/Trockenraum


Immobilie anfragen


Ihre persönliche Beratung

Marker Immobilien GmbH

Dieter Marker

Marker Immobilien GmbH

T +43 664 3134681

H +43 664 3134681