"All Inclusive"!4-Zi-ETW mit Garten & Terrasse + Parkplatz & Küche INKLUDIERT ! Neuwertiger Zustand

Wohnung , 3200 Ober-Grafendorf


ruhige SiedlungslagePreis ökologische Holzbauweise - ausgezeichnet mit klimaAKTIV Gold

Beschreibung der Immobilie

"All Inclusive"!4-Zi-ETW mit Garten & Terrasse + Parkplatz & Küche INKLUDIERT ! Neuwertiger Zustand

VERKAUFT !



VERKAUFT !



VERKAUFT !



VERKAUFT !



Diese sofort beziehbare Wohnung mit eigenem Garten erwartet neue Eigentümer !



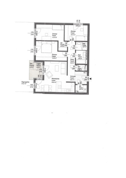
  • 4 Zimmer
  • 2 (!) Bäder - eines mit Dusche und Waschbecken, eines mit Wanne und Waschbecken - wobei die Möglichkeit bestünde diese zu EINEM Badezimmer zu vereinen (=großes Bad) Eine entnehmbar Trennwand sieht dies vor.
  • Terrasse und Garten vom Wohnzimmer zu betreten
  • Hochwertig ausgeführte Bausubstanz und Details (zB. Holzparkett-Böden)
  • Barrierefrei
  • Neuwertige DAN-Küche mit Markengeräten im Preis inkludiert
  • Eingezäunter Garten mit "Türl"
  • Kunststofffenster mit 3-fach Verglasung - alle mit Außenrollo
  • Überall energieeffiziente Bodenheizung / ohne Wartung und ohne Servicekosten (Fernwärme!)
  • Kellerabteil
  • Eigener Parkplatz im Eigentum inklusive
  • ökologische Holzbauweise - ausgezeichnet mit klimaAKTIV Gold 
  • E-Ladestationen in Vorbereitung
  • Die Wohnung ist natürlich fertig, real zu besichtigen und "greifbar"


ACHTUNG ! 



Für genauere Details benötigen wir Ihre Anfrage mit kompletter Angabe von Name, Anschrift, Email-Adresse und natürlich Ihrer Telefonnummer damit wir Sie kontaktieren können !


Der Vermittler ist als Doppelmakler tätig.

Infrastruktur / Entfernungen

Gesundheit
Arzt <5.500m
Apotheke <1.000m
Klinik <7.000m
Krankenhaus <9.000m

Kinder & Schulen
Schule <1.000m
Kindergarten <1.000m
Universität <9.000m
Höhere Schule <6.500m

Nahversorgung
Supermarkt <500m
Bäckerei <1.000m
Einkaufszentrum <2.500m

Sonstige
Bank <1.000m
Geldautomat <1.000m
Post <1.000m
Polizei <1.000m

Verkehr
Bus <1.000m
Bahnhof <1.000m
Autobahnanschluss <2.500m
Flughafen <3.000m

Angaben Entfernung Luftlinie / Quelle: OpenStreetMap

Eckdaten Objektnr. 125

Art: Wohnung
Land: Österreich
Baujahr: 2023
Zustand: Neuwertig
Alter: Neubau
Provision: 3% des Kaufpreises zzgl. 20% USt.
Betriebskosten: 169,60 €
MwSt Gesamt: 16,96 €
Wohnfläche: 95,81 m²
Gesamtfläche: 95,81 m²
Zimmer: 4
Bäder: 2
WC: 1
Terrassen: 1
Stellplätze: 1
Garten: 57,27 m²
Keller: 2,00 m²
Heizwärmebedarf:  A  23,50 kWh/m²a
fGEE:  B  0,72
Immobilie merken Exposé

Ausstattung

Fernwärme, Einbauküche, Wohnküche / offene Küche, Dusche, Badewanne, Parkplatz


Immobilie anfragen


Ihre persönliche Beratung

GK Immo

Gerald Kopecny

GK Immo

T +43 660 341 08 96

H +43 660 341 08 96