Baugrundstück in Ottnang ohne Bauzwang

Grundstück - Baugrund Eigenheim, 4901 Ottnang am Hausruck


Beschreibung der Immobilie

Baugrundstück in Ottnang ohne Bauzwang

Baugrundstück in Ottnang ohne Bauzwang



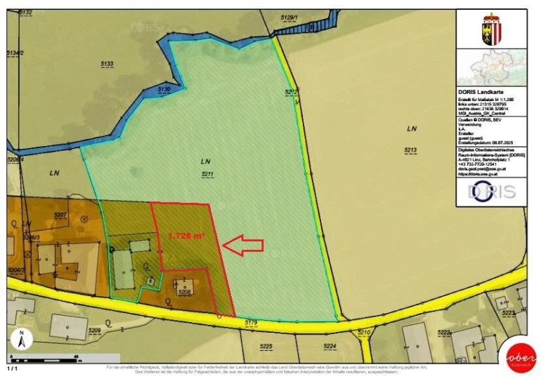
Zum Verkauf steht ein 1.728 m² großes Baugrundstück in Ottnang am Hausruck (neben Untermühlau 5), das sich durch seine leicht abfallende Lage ideal für unterschiedliche Bauvorhaben eignet.



Die Liegenschaft verfügt über eine Dorfwidmung, wodurch vielfältige Nutzungsmöglichkeiten gegeben sind.



Ein besonderer Vorteil: Es besteht kein Bauzwang. Dadurch eignet sich das Grundstück sowohl für sofortige Bebauung als auch als langfristige Investition.



Das Grundstück liegt im ländlichen Gebiet und bietet dennoch eine zentral gelegene, gut erreichbare Lage.



Einkaufsmöglichkeiten, Infrastruktur und Nahversorgung sind ebenfalls schnell erreichbar.



Dieses Baugrundstück verbindet ländliche Atmosphäre mit praktischer Alltagstauglichkeit – ideal für alle, die Ruhe suchen und dennoch gut angebunden sein möchten.



Geschäfte des täglichen Bedarfs, Ärzte, Kindergarten und Schulen, Anbindung an öffentliche Verkehrsmittel, Gasthäuser etc. sind gut erreichbar.



Die Autobahnauffahrt sowie die Bezirkshauptstadt Vöcklabruck sind ca. 20 Minuten entfernt.



Am besten einfach gleich anrufen oder vorbeifahren und das Grundstück besichtigen – es ist mit Pflöcken markiert.



Alois Mairinger  0676 520 519 0


Der Vermittler ist als Doppelmakler tätig.

Infrastruktur / Entfernungen

Gesundheit
Arzt <2.000m
Apotheke <4.000m

Kinder & Schulen
Schule <2.500m
Kindergarten <2.500m

Nahversorgung
Supermarkt <4.000m
Bäckerei <2.500m

Sonstige
Bank <2.500m
Geldautomat <3.500m
Post <3.500m
Polizei <7.500m

Verkehr
Bus <500m
Bahnhof <2.000m

Angaben Entfernung Luftlinie / Quelle: OpenStreetMap

Eckdaten Objektnr. 7359/3558

Art: Grundstück - Baugrund Eigenheim
Land: Österreich
Kaufpreis: 169.000,00
Provision: 3% des Kaufpreises zzgl. 20% USt.
Grundstücksfl.: 1.728,00 m²
Immobilie merken Exposé

Immobilie anfragen


Ihre persönliche Beratung

RE/MAX ImmoCenter - CASA TERRA IMMOBILIENTREUHAND GmbH

Alois Mairinger

CASA TERRA IMMOBILIENTREUHAND GmbH

T +43 7672 22 1 22

H +43 676 520 51 90

F +43 7672 221 22 50