Wohnen über den Dächern von Graz mit gigantischer Außenfläche in einem schönen Grazer Stadtteil - provisionsfrei!

Wohnung , 8010 Graz,07.Bez.:Liebenau


Die Immobilie befindet sich in unmittelbarer Nähe vom beliebten Einkaufszentrum Murpark, welches Ihnen eine Vielzahl von Geschäften und Restaurants bietet. Schulen, Apotheken und Ärzte sind fußläufig erreichbar. Die Verkehrsanbindung ist ebenfalls top und so auch die Infrastruktur.

Beschreibung der Immobilie

Wohnen über den Dächern von Graz mit gigantischer Außenfläche in einem schönen Grazer Stadtteil - provisionsfrei!

Wohnen über den Dächern von Graz mit gigantischer Außenfläche in einem schönen Grazer Stadtteil - provisionsfrei!



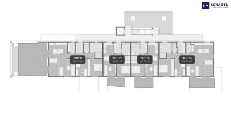
Das im Grünen eingebettete Wohngebäude besteht aus insgesamt 14 Wohneinheiten, wovon sich 13 Wohnungen und ein 100m² PH mit 58m² Dachterrasse, im Gebäude befinden. Die Planung ist hervorragend und exklusiv. Herausragend für dieses Neubauprojekt, welches für Sie ab 2026 beziehbar, ist die gute Infrastruktur, die gute Verkehrsanbindung und die Nähe zum Grazer Zentrum. Das Gebäude sticht vor allem durch enorm große Außenflächen hervor, welche sich immer mehr und mehr als ein "MUSS" herausstellen. Ein wahrer WOHNGENUSS wartet hier auf Sie!



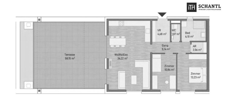
Nun zu den Fakten der TOP C11:



  • Wohnfläche von 80,16m²
  • Terrasse von 58,15m²
  • Wohnen/Kochen/Essen auf 36,22m²
  • Schlafzimmer mit 13,23m²
  • ein weiteres Schlafzimmer 10,86m²
  • Abstellraum 2,06m²
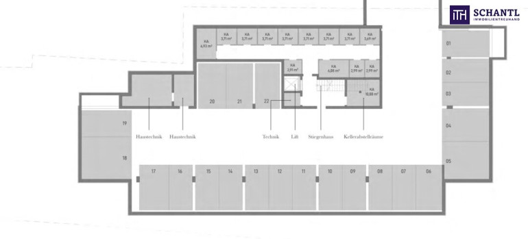
  • Kellerabteil vorhanden
  • Badezimmer 6,10m² mit  Dusche und Waschmaschinenanschluss
  • WC mit 1,87m²
  • Vorraum 4,68m²
  • Gang mit 5,14m²
  • Fernwärme
  • Parkmöglichkeiten sind  in der TG, oder auch Zone
  • KP der Wohnung Top C11 BRUTTO € 584.383,00dies ist der Kaufpreis für den Eigennutzer
  • KP der Wohnung Top C11, NETTO € 519.436,00 dies ist der Kaufpreis, wenn Sie die Wohnung gewerblich vermieten möchten
  • KP für den TG-Parkplatz, BRUTTO € 27.001,00
  • KP für den TG-Parkplatz, NETTO € 24.000,00


Highlights der TOP C11:



  • PROVISIONSFREI
  • die Nähe zum Grazer Zentrum
  • gute Baumeisterqualität, inklusive PV-Anlage
  • top Lage der Immobilie
  • gute Wertanlage
  • ab 2026 bezugsfertig, deshalb wurden auch SYMBOLBILDER verwendet!
  • die Eigengärten sind der Straße abgewandt
  • die Lage des Wohnbauprojektes befindet sich im Herzen von Graz-Jakomini
  • unseren Kunden bieten wir eine hochprofessionelle, kostenlose Finanzierungsberatung an
  • Mitgestaltungsmöglichkeit, Sie können Ihre Wohnung gemeinsam mit dem Bauträger individuell planen und bei der Innenraumgestaltung mitwirken – Ihre maßgeschneiderte Traumwohnung entsteht!
  • Kompakte Grundrisse mit perfekter Raumaufteilung, ideal für Singles, Pärchen oder Anleger, die Wert auf hochwertige Architektur legen.
  • Massivbauweise in Baumeisterqualität garantiert Langlebigkeit, Energieeffizienz und ein angenehmes Wohnklima.
  • moderne Ausstattung mit Fußbodenheizung, hochwertigen Böden und eleganten Sanitäreinrichtungen.
  • ruhige Wohnlage in einer wenig befahrenen Straße, dennoch mit perfekter Anbindung an öffentliche Verkehrsmittel und Infrastruktur
  • attraktive Anlagegelegenheit durch zukunftssichere Bauweise, beliebte Lage und hervorragendes Preis-Leistungs-Verhältnis




Vereinbaren Sie noch heute eine Besichtigung der Lage und eine persönliche Beratung mit uns!
Sie wollen Ihre Immobilie verkaufen? Dann sind Sie bei uns goldrichtig!

Wir sind gerne für Sie da und unterstützen Sie unverbindlich bei der Bewertung Ihrer Immobilie. Mit viel Sorgfalt stellen wir Ihnen alle wichtigen Informationen und Unterlagen zusammen, damit Sie die besten Entscheidungen treffen können.

In Kooperation mit unserer SFI Vermögenstreuhand begleiten wir Sie bei der Verwirklichung Ihres Traumobjekts und unterstützen Sie beim nachhaltigen Vermögensaufbau. Mit unseren erfahrenen Experten sorgen wir dafür, dass Sie die

besten Konditionen erhalten – damit Ihre Träume Wirklichkeit werden!




www.schantl-ith.at in Kooperation mit sfi-invest.com




Die Angaben über das angebotene Objekt erfolgen mit der Sorgfalt eines ordentlichen Immobilienmaklers; für die Richtigkeit solcher Angaben, die auf Informationen der über das Objekt Verfügungsberechtigten beruhen, wird keine Gewähr geleistet!


Wir weisen darauf hin, dass zwischen dem Vermittler und dem zu vermittelnden Dritten ein familiäres oder wirtschaftliches Naheverhältnis besteht.


Der Vermittler ist als Doppelmakler tätig.

Infrastruktur / Entfernungen

Gesundheit
Arzt <500m
Apotheke <1.000m
Klinik <2.000m
Krankenhaus <3.000m

Kinder & Schulen
Schule <500m
Kindergarten <1.000m
Universität <1.000m
Höhere Schule <1.500m

Nahversorgung
Supermarkt <500m
Bäckerei <1.000m
Einkaufszentrum <1.500m

Sonstige
Geldautomat <1.000m
Bank <1.000m
Post <500m
Polizei <1.000m

Verkehr
Bus <500m
Straßenbahn <500m
Autobahnanschluss <3.000m
Bahnhof <1.000m
Flughafen <7.500m

Angaben Entfernung Luftlinie / Quelle: OpenStreetMap

Eckdaten Objektnr. 291684

Art: Wohnung
Land: Österreich
Baujahr: 2024
Zustand: Erstbezug
Alter: Neubau
Kaufpreis: 584.383,00
Wohnfläche: 80,16 m²
Zimmer: 3
Bäder: 1
WC: 1
Terrassen: 1
Heizwärmebedarf:  B  35,90 kWh/m²a
fGEE:  A  0,75
Immobilie merken Exposé

Ausstattung

Fliesen, Parkett, Fernwärme, Fußbodenheizung, Personenaufzug, Kabel/Satelliten-TV, Tiefgarage


Immobilie anfragen


Ihre persönliche Beratung

Schantl ITH Immobilientreuhand GmbH

Ursula Seiwald

Schantl ITH Immobilientreuhand GmbH

T +436645411047

H +43 664 5725475