Mariahilfer Straße um's Eck I Lift in jedem Geschoss I 3 Terrassen I Erstbezug I belags- oder schlüsselfertig I hohe Decken I

Wohnung - Dachgeschoß, 1060 Wien


Westbahnhof: ca. 450m  U-Bahn: U3 und U6 ca. 450m  Straßenbahn: 6 ca. 350m; 5, 9, 18, 49, 52, 60 ca. 500m;  Bus: 57A ca. 600m Kindergarten ca. 110m  Volksschule ca. 190m  Mittelschule ca. 250m

Beschreibung der Immobilie

Mariahilfer Straße um's Eck I Lift in jedem Geschoss I 3 Terrassen I Erstbezug I belags- oder schlüsselfertig I hohe Decken I

Besser könnte die Lage kaum sein! 



Zentral gelegen und dennoch angenehm ruhig präsentiert sich diese exklusive DG-Maisonette-Wohnung, deren Ausstattung selbst höchsten Ansprüchen gerecht wird.



Die Wohnung samt ihren Terrassen erstreckt sich über insgesamt 3 Ebenen und ALLE davon sind barrierefrei über einen in der Wohnung integrierten Lift erreichbar, was diese Immobilie besonders komfortabel und außergewöhnlich macht.



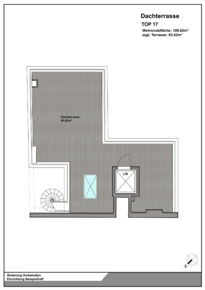
Neben der phänomenalen Dachterrasse mit Weitblick verfügt die Wohnung über 2 weitere Terrassen, sodass jedes Geschoss eine eigene Freifläche aufweist.



Und das Beste: Die Mariahilfer Straße erreichen Sie in nur fünf Gehminuten.
Sie profitieren von einer erstklassigen, äußerst begehrten Lage mit hervorragender Infrastruktur sowie einer optimalen Anbindung an das öffentliche Verkehrsnetz.



Die Wohnung befindet sich aktuell noch im belagsfertigen Zustand, somit haben Sie die Möglichkeit, Ihre neuen vier Wände ganz nach Ihren Wünschen zu gestalten. 

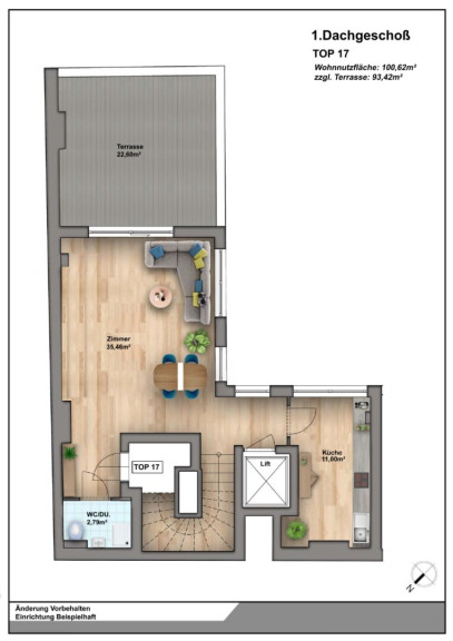
Beispielsweise lässt sich das Zimmer in der ersten Etage, wie im Alternativplan ersichtlich, zu einer Küche umgestalten, sodass ein großzügiger Wohnbereich entsteht.

Es besteht zudem die Möglichkeit, die Wohnung im schlüsselfertigen Zustand zu einem Kaufpreis von 1.190.000,-- Euro zu erwerben.




Einige der Highlights auf einen Blick: 



  • ca. 100,6m² Wohnfläche 
  • 3 oder 4 Zimmer möglich 
  • Barrierefreiheit durch Lift in der Wohnung 
  • Terrasse in jedem Geschoss 
  • fabelhafte Dachterrasse mit Weitblick 
  • 2 Bäder 
  • Fußbodenheizung 
  • Klimaanlage (nur im schlüsselfertigen Zustand, sonst Vorbereitung für Klimaanlage) 
  • Echtholzparkettboden (nur im schlüsselfertigen Zustand)
  • elektrische Außenbeschattungen
  • 3-fach verglaste Fenster
  • hohe Decken 
  • Kellerabteil 
  • Top-Lage Nähe Mariahilfer Straße 



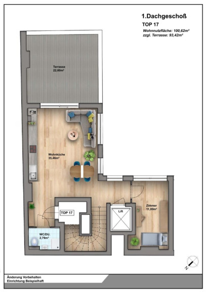
Die Wohnfläche von ca. 100,6m² erstreckt sich über die folgende Raumaufteilung: 



1. Ebene: 



  • Vorraum, welcher fließend offen in die Wohnküche bzw. das Wohnzimmer übergeht
  • Wohnküche bzw. Wohnzimmer mit Ausgang auf die ca. 22,6m² große Terrasse
  • 1 Schlafzimmer bzw. separate Küche 
  • Badezimmer mit Anschlüssen für Dusche und WC


2. Ebene:



  • Vorraum, aus dem jeder Raum zentral begehbar ist
  • 2 Schlafzimmer 
  • Badezimmer mit Anschlüssen für Dusche, Badewanne und WC
  • separates WC mit Möglichkeit für Handwaschbecken 


Auf der 3. Ebene erwartet Sie die ca. 63m² große Dachterrasse!




Die Lage: 

Definitiv eine der begehrtesten Wohngegenden Mariahilfs! 
Nur wenige Gehminuten von der Mariahilfer Straße entfernt und dennoch in angenehm ruhiger Seitengasse gelegen. Hier kommen urbanes Leben, hervorragende Infrastruktur und hohe Lebensqualität auf ideale Weise zusammen. 



In unmittelbarer Umgebung finden sich zahlreiche Einkaufsmöglichkeiten, Cafés, Restaurants, Ärzte, Apotheken sowie Schulen und Kindergärten. Die Nähe zur Mariahilfer Straße bietet zudem ein vielfältiges Angebot an Shopping-, Freizeit- und Kulturmöglichkeiten.



Die öffentliche Verkehrsanbindung ist hervorragend: Mehrere U-Bahn-, Bus- und Straßenbahnlinien sind fußläufig erreichbar und gewährleisten eine schnelle Verbindung in alle Teile der Stadt. Auch der Naschmarkt, das MuseumsQuartier sowie die Wiener Innenstadt sind in kurzer Zeit erreichbar.



Westbahnhof: ca. 450m 

U-Bahn: U3 und U6 ca. 450m 

Straßenbahn: 6 ca. 350m; 5, 9, 18, 49, 52, 60 ca. 500m; 

Bus: 57A ca. 600m



Kindergarten ca. 110m 

Volksschule ca. 190m 

Mittelschule ca. 250m

 



Gerne steht Ihnen Frau Maja Arsic für weitere Fragen bzw. flexibel gestaltbare Besichtigungstermine unter 0699 180 47 130 zur Verfügung.  
www.ringsmuth-immobilien.at



Irrtum und Änderungen vorbehalten!

Infrastruktur / Entfernungen

Gesundheit
Arzt <500m
Apotheke <500m
Klinik <500m
Krankenhaus <500m

Kinder & Schulen
Schule <500m
Kindergarten <500m
Universität <1.000m
Höhere Schule <1.500m

Nahversorgung
Supermarkt <500m
Bäckerei <500m
Einkaufszentrum <1.000m

Sonstige
Geldautomat <500m
Bank <500m
Post <500m
Polizei <500m

Verkehr
Bus <500m
U-Bahn <500m
Straßenbahn <500m
Bahnhof <500m
Autobahnanschluss <4.500m

Angaben Entfernung Luftlinie / Quelle: OpenStreetMap

Eckdaten Objektnr. 16485

Art: Wohnung - Dachgeschoß
Land: Österreich
Zustand: Erstbezug
Alter: Neubau
Kaufpreis: 1.098.000,00
Provision: 3% des Kaufpreises zzgl. 20% USt.
Wohnfläche: 100,60 m²
Nutzfläche: 194,00 m²
Zimmer: 4
Bäder: 2
WC: 3
Terrassen: 3
Heizwärmebedarf:  B  35,86 kWh/m²a
fGEE:  B  1,00
Immobilie merken Exposé

Ausstattung

Fußbodenheizung, Personenaufzug, Dusche, Badewanne


Immobilie anfragen


Ihre persönliche Beratung

Alexander Ringsmuth GmbH

Maja Arsic

Alexander Ringsmuth GmbH

T +43 699 18 04 71 30

H +43 699 18 04 71 30