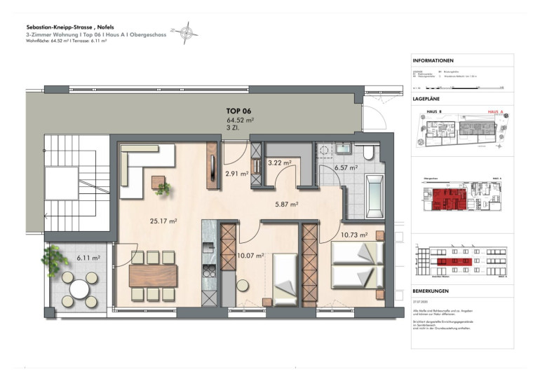
3-Zimmer Wohnung in ruhiger Lage Top 6

Wohnung - Etage, 6800 Feldkirch , Sebastian-Kneipp-Straße 18


Die unmittelbare Nähe zum Dorfzentrum in Nofels, die geringe Distanz zur Stadt Feldkirch in Kombination mit einer ruhigen, entspannten Lage, welche trotz allem eine Vielzahl von Einkaufsmöglichkeiten, Sport- und Freizeitaktivitäten als auch Dienstleistungen in unmittelbarer Nähe bietet, eignet sich optimal für Personen, die nicht bloß eine Wohnung suchen, sondern Räume fürs Leben. Eine sich direkt davor befindliche Bushaltestelle, sowie die Nähe zu den Nachbarländern Schweiz und Lichtenstein lässt für Berufstätige und auch insbesondere Grenzgänger keinen Wunsch übrig.

Beschreibung der Immobilie

3-Zimmer Wohnung in ruhiger Lage Top 6

Diese moderne Etagenwohnung bietet ein stilvolles Ambiente, hochwertige Materialien und eine Ausstattung, die den Alltag außergewöhnlich komfortabel macht.



Ausstattungs-Highlights



  • Großer Wohn- & Essbereich – hell, offen & einladend
  • 2 Schlafzimmer
  • Einbauküche mit Miele-Markengeräten
  • Parkettboden in Wohn- und Schlafräumen
  • Gefliestes Badezimmer mit Badewanne
  • Überdachter Balkon – perfekt für Genussmomente
  • Abstellraum für zusätzliche Ordnung
  • Kellerabteil
  • Personenaufzug vorhanden
  • 2 Tiefgaragenstellplätze


Lage-Highlights auf einen Blick



  • Freizeitmöglichkeiten direkt vor der Haustüre: Spazierwege, Radstrecken & Naturerholung
  • Einkaufsmöglichkeiten: Supermärkte, Bäckereien, Nahversorger in unmittelbarer Nähe
  • Alltagseinrichtungen: Apotheke, Schulen, Kindergarten, Ärzte schnell erreichbar
  • Perfekt für Pendler: Nähe zu Liechtenstein & der Schweiz
  • Sehr gute ÖV-Anbindung: Buslinien & Verkehrsknotenpunkte sorgen für maximale Mobilität


Eine Lage, die Entschleunigung, Komfort und Effizienz ideal miteinander verbindet.



Unsere Angaben beziehen sich auf die Auskünfte des Eigentümers. Irrtum und Änderungen vorbehalten.

Noch nichts gefunden? Wir informieren Sie über geeignete Immobilienangebote noch vor allen anderen.
Legen Sie jetzt kostenlos Ihren individuellen Suchagenten unter folgendem Link an. Wir schicken Ihnen passende Immobilien exklusiv vorab zu.

Suchagent anlegen


Wir weisen darauf hin, dass zwischen dem Vermittler und dem zu vermittelnden Dritten ein familiäres oder wirtschaftliches Naheverhältnis besteht.


Der Immobilienmakler erklärt, dass er – entgegen dem in der Immobilienwirtschaft üblichen Geschäftsgebrauch des Doppelmaklers – einseitig nur für den Vermieter tätig ist.

Infrastruktur / Entfernungen

Gesundheit
Arzt <850m
Apotheke <275m
Krankenhaus <2.625m

Kinder & Schulen
Schule <500m
Kindergarten <350m
Höhere Schule <2.850m
Universität <2.775m

Nahversorgung
Supermarkt <625m
Bäckerei <275m
Einkaufszentrum <2.875m

Sonstige
Bank <325m
Geldautomat <325m
Post <275m
Polizei <2.525m

Verkehr
Bus <100m
Bahnhof <1.900m
Autobahnanschluss <4.150m

Angaben Entfernung Luftlinie / Quelle: OpenStreetMap

Eckdaten Objektnr. 5681/605

Art: Wohnung - Etage
Land: Österreich
Baujahr: 2021
Zustand: Neuwertig
Alter: Neubau
Gesamtmiete: 1.352,62
Kaltmiete (netto): 1.046,82 €
Kaltmiete: 1.203,02 €
Provision: Gemäß Erstauftraggeberprinzip bezahlt der Abgeber die Provision.
Betriebskosten: 156,20 €
Heizkosten: 24,42 €
MwSt Gesamt: 125,18 €
Wohnfläche: 64,50 m²
Zimmer: 3
Bäder: 1
WC: 1
Terrassen: 1
Keller: 8,30 m²
Heizwärmebedarf:  B  35,00 kWh/m²a
fGEE:  A+  0,68
Immobilie merken Exposé

Ausstattung

Fliesen, Steinboden, Parkett, Elektro, Gas, Fußbodenheizung, Personenaufzug, Badewanne, Kabel/Satelliten-TV, Parkplatz, Tiefgarage


Immobilie anfragen


Ihre persönliche Beratung

Rimo Immobilien GmbH

Daniel Marte

Rimo Immobilien GmbH

T +43 5522 39303 28