Geförderte 3- Zimmer Wohnung inkl. Balkon in Petzenkirchen

Wohnung , 3252 Petzenkirchen , Grünes Dorf 2


Grünes Dorf 2 3252 Petzenkirchen

Beschreibung der Immobilie

Geförderte 3- Zimmer Wohnung inkl. Balkon in Petzenkirchen

3-Zimmer Balkonwohnung





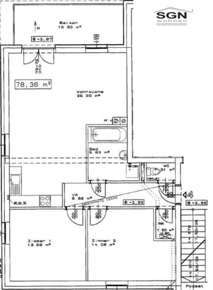
Die geförderte, lichtdurchflutete Wohnung im 1.OG gliedert sich in eine Wohnküche mit Küchenanschlüssen, zwei Schlafzimmer, einen inneren Abstellraum, einen Vorraum, ein separates WC und einen Badezimmer mit Badewanne. Der Balkon ist Richtung Westen ausgelegt.



Zusätzlich ist die Wohnung mit einen Kellerabteil und zwei PKW-Abstellplatz ausgestattet.



Beheizt wird die Wohneinheit mittels regenerativem Heizungssystem in Form einer zentralen Pelletheizung.



Die Wohnung steht Ihnen ab 01.01.2026 zur Verfügung.



Weiters gibt es exklusiv nur für die Bewohner der Wohnhausanlagen ein Schimmbiotop/Schwimmteich, um sich gezielt abkühlen zu können und damit die perfekte Entspannung zu generieren. Weiters ist der Schimmteich mit beschatteten Sitzplätzen sowie einer Duschmöglichkeit ausgestattet. Für Kleinkinder wurde ein eigener Schwimmbereich geschaffen und für die Taucher/Schwimmer ist eine Schwimmzone mit einer Länge von ca. 18 Meter bzw. einer Wassertiefe von 2,5 Meter vorgesehen.





Ein paar Eckdaten zur Wohnhausanlage:



3-geschossiges Wohnhaus



Kinderspielplatz



Schwimmbiotop



Niedrigenergiehaus



Ziegelmauerwerk



Je Wohnung 2 Pkw-Stellplatz



Biomassenzentralheizung



E-Anschluss für Herd



Sanitärräume verfliest



Fussböden Laminat



Medienversorgung: SAT-Anlage, Telefonanschluss



Malerei weis



Gerne stehen wir für weitere Auskünfte zur Verfügung. Wir freuen uns auf Ihren Anruf!

Infrastruktur / Entfernungen

Gesundheit
Arzt <300m
Apotheke <900m
Klinik <9.475m

Kinder & Schulen
Schule <625m
Kindergarten <650m
Universität <875m

Nahversorgung
Supermarkt <900m
Bäckerei <275m
Einkaufszentrum <1.350m

Sonstige
Bank <650m
Geldautomat <650m
Post <600m
Polizei <1.650m

Verkehr
Bus <325m
Bahnhof <600m
Autobahnanschluss <375m

Angaben Entfernung Luftlinie / Quelle: OpenStreetMap

Eckdaten Objektnr. 1164006

Art: Wohnung
Land: Österreich
Baujahr: 2007
Zustand: Gepflegt
Alter: Neubau
Gesamtmiete: 772,68
Kaltmiete (netto): 490,63 €
Kaltmiete: 668,25 €
Betriebskosten: 177,62 €
Heizkosten: 31,34 €
MwSt Gesamt: 73,09 €
Wohnfläche: 78,36 m²
Zimmer: 3
Bäder: 1
WC: 1
Balkone: 1
Stellplätze: 2
Keller: 8,50 m²
Heizwärmebedarf:  B  28,30 kWh/m²a
fGEE: 89,00
Immobilie merken Exposé

Ausstattung

Laminatboden, Zentralheizung, Westbalkon


Immobilie anfragen


Ihre persönliche Beratung

SGN Gemeinnützige Wohnungs- u. Siedlungsgenossenschaft Neunkirchen reg.Gen.m.b.H.

Fabian Männl, MA

SGN Gemeinnützige Wohnungs- u. Siedlungsgenossenschaft Neunkirchen reg.Gen.m.b.H.

T +43 2635 64756 14

H +43 664 8347376