Geräumige Erstbezugswohnung in Krems: 3 Zimmer, Balkon, Fußbodenheizung, Top-Ausstattung!

Wohnung , 3500 Krems an der Donau , Bründlgraben 45A


Beschreibung der Immobilie

Geräumige Erstbezugswohnung in Krems: 3 Zimmer, Balkon, Fußbodenheizung, Top-Ausstattung!

Modernes Wohnen in einer der schönsten Regionen des Landes





Die exklusive Wohnhausanlage DANUBE HILLS mitten in den Weinbergen von Krems an der Donau bietet besonderen Flair und modernsten Komfort.



Die Wohnhausanlage bietet in Summe 110 Wohnungen mit 137 PKW-Stellplätzen und 6 Motorrad-Abstellplätzen.



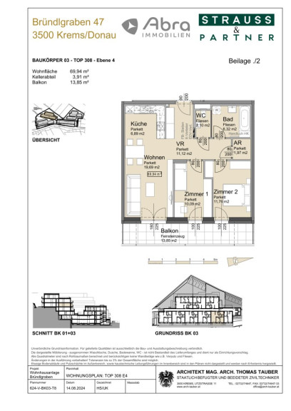
Jede Einheit verfügt über eine Außenfläche (Garten, Terrasse, Dachterrasse, Balkon oder Loggia) sowie ein Kellerabteil.



Die Wohnungen sind umgeben von Grünflächen und Weingärten.





DANUBE HILLS bietet weiters:






  • Parkettböden aus Natureiche



  • Nassräume mit Feinsteinzeug, hochwertige Sanitärkeramik



  • alle Wohnungen sind mit Küchen ausgestattet, weitere Möblierungen/Ausstattung auf Anfrage



  • Außenliegender Sonnenschutz



  • Fußbodenheizung



  • Wärme und Warmwasser mittels Biomasse-Fernwärme CO2-neutral



  • Klimatisierung im DG möglich



  • Glasfaseranbindung



  • Fernblick je nach Ausrichtung innerhalb der Anlage



  • Photovoltaikanlage – Versorgung der Allgemeinfläche und Energiegemeinschaft möglich



  • Allgemeine Flächen samt Spielplätzen



  • Nachhaltige Baustoffe und teilweise Dachbegrünung



  • ESG-Zertifiziert, errichtet mit nachhaltigen Baustoffen nach den Kriterien Klima-aktiv Silber und EU-Taxonomie-konform



  • bezugsfertig






Trotz der erholsamen Lage verfügt es mit der nahegelegenen Auffahrt Krems auf die S5 – Stockerauer Schnellstraße über eine optimale Anbindung an St. Pölten und Wien.



Der in wenigen Minuten erreichbare Bahnhof bietet zahlreiche Anbindungen in die Großstädte Wien und St. Pölten. Man verspürt das Lebensgefühl einer historischen Stadt mit Charakter, ohne auf die Annehmlichkeiten der nahen gelegenen Großstädte verzichten zu müssen.



In direkter Nähe befinden sich sämtliche Nahversorger, wie das beliebte Einkaufzentrum Alex, mehrere Kindergärten, Schulen und Universitäten, sowie das Universitätsklinikum Krems und andere Gesundheitseinrichtungen.





Zu der von Ihnen gewählten Wohnung:





Bitte entnehmen Sie die Eckdaten aus dem Inserat und gustieren Sie die Fotos.



Sehr gerne zeige ich Ihnen diese und auch andere Wohnungen vor Ort bei einem unverbindlichen Besichtigungstermin.



Da nicht alle Wohnungen inseriert wurden, können Sie somit leichter die für Sie passende Wohnung finden.



Ebenso freue ich mich, Ihnen weiterführende Unterlagen zukommen zu lassen.





Als UNESCO Weltkulturerbe und wichtige Universitätsstadt ist Krems ein kulturelles und wissenschaftliches Zentrum Mitteleuropas – und wurde in diesem Zusammenhang mehrfach als Stadt mit der höchsten Lebensqualität und auch zur zukunftsfähigsten Stadt Österreichs ausgezeichnet.



Krems weist eine überdurchschnittliche Dichte an Bildungseinrichtungen auf. Rund 31.000 Einwohnerinnen und Einwohnern stehen 15.000 Studierende und ca. 6.000 Schülern gegenüber.



Es gibt in Krems fünf Hochschulen und Universitäten. Eine Vielzahl der Studierenden kommt aus den unterschiedlichsten Teilen Österreichs und aus dem Ausland.



Die Nachfrage nach Wohnraum ist daher enorm. Dieser Umstand macht Krems als Standort für ein Immobilieninvestment sehr interessant, stetig steigende Mieten sichern dieses Investment langfristig und nachhaltig ab. Erwähnt sei in diesem Zusammenhang die EGS-Zertifizierung, die Errichtung mit nachhaltigen Baustoffen nach den Kriterien Klima aktiv Bronze und die EU-Taxonomie-Konformität.



Das antizyklische Investieren bietet viele Vorteile und sollte für Anleger das Gebot der Stunde sein.



Die Ansprüche an modernes Wohnen sind sehr hoch.



Daher verfügt jede Wohnung über eine Außenfläche, wie eine Loggia, Terrasse, Balkon oder Eigengarten, einen PKW-Abstellplatz in der Tiefgarage und barrierefreien Zugang.



Krems ist eine Stadt der kurzen Wege. Alle Bildungseinrichtungen sind mit dem PKW oder Rad in nur wenigen Minuten erreichbar. Das Universitätsklinikum Krems ist nur 1,4 km entfernt. Somit ist diese Wohnung auch für Studierende, Lehrende und Ärzte sehr interessant.



Ich hoffe, ich konnte Ihr Interesse an dieser neuen Wohnhausanlage wecken und würde mich sehr freuen, Ihre perfekte Wohnung zu finden.

Infrastruktur / Entfernungen

Gesundheit
Arzt <1.250m
Apotheke <1.525m
Klinik <2.025m
Krankenhaus <1.125m

Kinder & Schulen
Schule <625m
Kindergarten <1.200m
Universität <1.575m
Höhere Schule <1.425m

Nahversorgung
Supermarkt <625m
Bäckerei <750m
Einkaufszentrum <600m

Sonstige
Geldautomat <1.025m
Bank <725m
Post <1.525m
Polizei <1.375m

Verkehr
Bus <200m
Autobahnanschluss <800m
Bahnhof <1.700m
Flughafen <3.000m

Angaben Entfernung Luftlinie / Quelle: OpenStreetMap

Eckdaten Objektnr. 5908/1207

Art: Wohnung
Land: Österreich
Baujahr: 2025
Zustand: Erstbezug
Alter: Neubau
Gesamtmiete: 1.199,01
Kaltmiete (netto): 915,15 €
Kaltmiete: 1.090,00 €
Miete / m²: 17,40 €
Betriebskosten: 174,85 €
MwSt Gesamt: 109,01 €
Wohnfläche: 69,94 m²
Nutzfläche: 69,94 m²
Zimmer: 3
Keller: 3,91 m²
Heizwärmebedarf:  B  23,50 kWh/m²a
fGEE:  A+  0,63
Immobilie merken Exposé

Ausstattung

Estrichboden, Fliesen, Parkettboden, Fernwärme, Fußbodenheizung, Einbauküche, Personenaufzug


Immobilie anfragen


Ihre persönliche Beratung

ABRA IC GmbH

Andreas Stadler

ABRA IC GmbH

T +43664 3551068