Moderne Garconniere im Gutshof Glanegg
Wohnung
,
5082
Glanegg
WOHNEN IM GUTSHOF GLANEGG Im neuen Nordtrakt des Gutshof Glanegg wohnen Sie in einem harmonisch dem Stil des historischen Anwesens angepassten, aber technisch modernen Neubau mit hochwertiger Ausstattung. Umgeben von der idyllischen Landschaft am Fuße des Untersbergs residieren Sie hier mitten im Grünen und genießen Ruhe und Natur. Die Salzburger Altstadt ist nur einen Katzensprung entfernt und mit den Linien 21 und 35 in ca. 15 Minuten erreichbar.
Beschreibung der Immobilie
Moderne Garconniere im Gutshof Glanegg
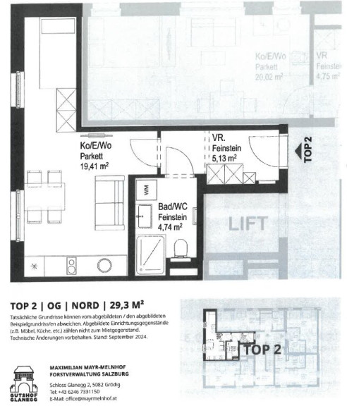
Die neuwertige, ca. 29,30 m² große Wohnung befindet sich im 1. Obergeschoß (mit Lift) des Nordtraktes und überzeugt mit durchdachtem Grundriss und hochwertiger Ausstattung. Die ideale Westausrichtung lässt viel Tageslicht und Sonne in die Räume.
Eckdaten & Ausstattung:
- Wohnfläche: ca. 29,30 m²
- Wohn-Schlafraum mit Echtholzparkett, Feinstein in Vorraum und Bad
- Küche: Tischlerqualität, Grohe-Armaturen, Elektra Bregenz-Elektrogeräte, Kochfeld mit 2 Kochplatten, Geschirrspüler, Backofen, Kühlschrank
- Bad: Dusche, Waschtisch, Handtuchtrockner, LED-Spiegel, Grohe Armaturen, Waschmaschinenanschluss, WC
- Hochwertige Holzfenster
- Bodenheizung mit Energieversorgung aus der Hackschnitzelheizung des Forstbetriebs
Der Immobilienmakler erklärt, dass er – entgegen dem in der Immobilienwirtschaft üblichen Geschäftsgebrauch des Doppelmaklers – einseitig nur für den Vermieter tätig ist.
Infrastruktur / Entfernungen
Gesundheit
Arzt <1.500m
Apotheke <3.000m
Klinik <5.500m
Krankenhaus <6.500m
Kinder & Schulen
Schule <1.500m
Kindergarten <1.000m
Universität <5.500m
Höhere Schule <1.000m
Nahversorgung
Supermarkt <3.000m
Bäckerei <1.500m
Einkaufszentrum <6.500m
Sonstige
Bank <1.000m
Geldautomat <1.000m
Post <1.500m
Polizei <4.000m
Verkehr
Bus <500m
Bahnhof <6.000m
Autobahnanschluss <1.000m
Flughafen <5.500m
Angaben Entfernung Luftlinie / Quelle: OpenStreetMap
Eckdaten Objektnr. 536/2113
| Art: | Wohnung |
| Land: | Österreich |
| Gesamtmiete: | 611,72 € |
| Kaltmiete (netto): | 451,42 € |
| Kaltmiete: | 537,57 € |
| Provision: | Gemäß Erstauftraggeberprinzip bezahlt der Abgeber die Provision. |
| Betriebskosten: | 86,15 € |
| Heizkosten: | 16,99 € |
| MwSt Gesamt: | 57,16 € |
| Wohnfläche: | 29,30 m² |
| Bäder: | 1 |
| Heizwärmebedarf: | B 32,00 kWh/m²a |
| fGEE: | A+ 0,65 |
Ausstattung
Parkett, Fußbodenheizung, Einbauküche, Personenaufzug, Dusche
Ihre persönliche Beratung
Dieser Makler ist ein offizielles Mitglied des IR – ir.at Mehr Erfahren
