Startbüro in der Nähe von der Wattgasse!

Büro / Praxis , 1160 Wien,Ottakring


Beschreibung der Immobilie

Startbüro in der Nähe von der Wattgasse!

Unbefristet - Wilheminenstraße - 44qm - ruhig



Ich freue mich auf Ihren Anruf

Paul Kleindl 01/526 26 36 14 oder 0699/1188 76 00



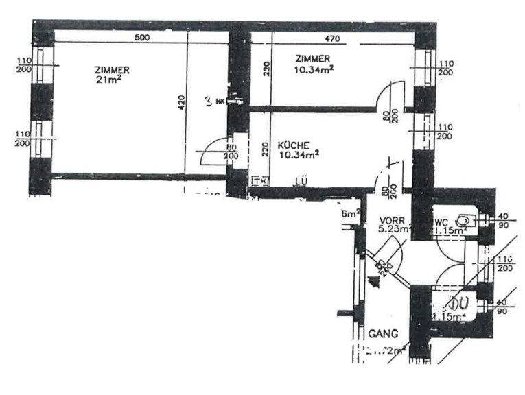
Vermietet wird ein Startbüro in einem gepflegten Jahrhundertwendehaus im Erdgeschoss, bestehend aus zwei extra Büroräumen, Teeküche und Bad/Toilette.



Aufteilung

Vorraum

2 Arbeitsräume

Teeküche

Bad/Toilette



Infrastruktur
Der Standort gewährleistet eine optimale Nahversorgung an das öffentliche Verkehrsnetz.



Öffentliche Anbindung
Buslinien 10A sowie S-Bahn-Station S45 Ottakring ca.12min

Straßenbahnlinie 2 - Wilhelminenstraße

Straßenbahnlinie 33 und 44 Ottakringer Straße

Straßenbahnlinie 2 und 43 Hernalser Hauptstraße



Resümee

Ein schöner Platz zum Arbeiten -  perfekt aufgeteiltes Startbüro



Ich freue mich auf Ihren Anruf

Paul Kleindl 01/526 26 36 14 oder 0699/1188 76 00


Wir weisen darauf hin, dass zwischen dem Vermittler und dem zu vermittelnden Dritten ein familiäres oder wirtschaftliches Naheverhältnis besteht.


Der Vermittler ist als Doppelmakler tätig.

Eckdaten Objektnr. 1760/682

Art: Büro / Praxis
Land: Österreich
Baujahr: 1900
Alter: Altbau
Kaltmiete (netto): 500,00 €
Kaltmiete: 581,00 €
Miete / m²: 11,36 €
Provision: 3 Bruttomonatsmieten zzgl. 20% USt.
Betriebskosten: 81,00 €
MwSt Gesamt: 116,20 €
Nutzfläche: 44,00 m²
Bürofläche: 44,00 m²
Zimmer: 2
Bäder: 1
WC: 1
Heizwärmebedarf: 117,00 kWh/m²a
fGEE: 2,63
Immobilie merken Exposé

Ausstattung

Gas, Etagenheizung, Teeküche


Immobilie anfragen


Ihre persönliche Beratung

Lind Immobilien

Paul Kleindl

Lind Immobilien

T +43 1 526 26 36 14

H +43 699 1188 7600