Günstige Dachgeschosswohnung Nähe Bahnhof

Wohnung - Dachgeschoß, 2640 Gloggnitz , Stuppacher Straße 7


Gloggnitz ist eine Stadt mit ca. 5900 Einwohnern im Bezirk Neunkirchen im südlichen Niederösterreich. Die Stadtgemeinde Gloggnitz bietet eine ausgesprochen gute Infrastruktur sowie über eine sehr gute öffentliche Verkehrsanbindung.

Beschreibung der Immobilie

Günstige Dachgeschosswohnung Nähe Bahnhof

Günstige Dachgeschosswohnung Nähe Bahnhof



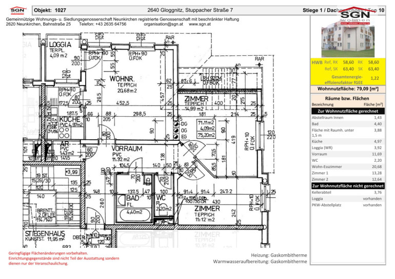
Diese großzügige Dachgeschosswohnung im 3. Obergeschoss (ohne Lift) bietet ein durchdachtes Raumkonzept. 



Beim Betreten gelangt man in einen zentralen Vorraum, von dem aus alle Räume zugänglich sind. Das geräumige Wohnzimmer bildet das Zentrum der Wohnung und führt direkt auf die Loggia, die zusätzlichen Freiraum bietet. Die angrenzende Küche verfügt über direktes Tageslicht. Die beiden nebeneinender liegenden Zimmer stehen als Schlaf-, Kinder- oder Arbeitsräume zur Verfügung. Das Badezimmer ist mit einer Badewanne ausgestattet. Ein separates WC ist ebenfalls vorhanden. Die Beheizung erfolgt über eine effiziente Gaskombitherme, die individuelle Temperaturregelung ermöglicht.



Die Wohnung liegt in einem Mischhaus, in dem bereits einige Einheiten in Wohnungseigentum übertragen wurden.





Ein paar Eckdaten: 



  • unbefristete Miete, gefördert und mit Kaufoption
  • SAT-Anlage 
  • Gaskombitherme
  • Kunststofffenter
  • Innenjalousien
  • Wasserfilter
  • PKW-Abstellplatz




***Eine tolle Wohnung wartet auf SIE***

Infrastruktur / Entfernungen

Gesundheit
Arzt <900m
Apotheke <1.400m
Klinik <8.350m

Kinder & Schulen
Schule <1.175m
Kindergarten <1.000m

Nahversorgung
Supermarkt <775m
Bäckerei <950m
Einkaufszentrum <975m

Sonstige
Bank <975m
Geldautomat <975m
Post <1.300m
Polizei <1.000m

Verkehr
Bus <175m
Bahnhof <350m
Autobahnanschluss <1.975m

Angaben Entfernung Luftlinie / Quelle: OpenStreetMap

Eckdaten Objektnr. 102700001000010

Art: Wohnung - Dachgeschoß
Land: Österreich
Baujahr: 1998
Zustand: Gepflegt
Alter: Neubau
Gesamtmiete: 602,20
Kaltmiete (netto): 343,12 €
Kaltmiete: 547,46 €
Betriebskosten: 204,34 €
MwSt Gesamt: 54,74 €
Wohnfläche: 79,09 m²
Zimmer: 2
Bäder: 1
WC: 1
Stellplätze: 1
Keller: 3,76 m²
Heizwärmebedarf: 63,40 kWh/m²a
Immobilie merken Exposé

Ausstattung

Fliesen, Laminatboden, Gas, Etagenheizung, Badewanne, Kabel/Satelliten-TV, Parkplatz


Immobilie anfragen


Ihre persönliche Beratung

SGN Gemeinnützige Wohnungs- u. Siedlungsgenossenschaft Neunkirchen reg.Gen.m.b.H.

Daniela Lehner

SGN Gemeinnützige Wohnungs- u. Siedlungsgenossenschaft Neunkirchen reg.Gen.m.b.H.

T +43 2635 64756 65