Modernes Loft in 1060 Wien: 200m² für Büro oder Praxis – Miete 4.000€!

Büro / Praxis , 1060 Wien , Stumpergasse


Die Immobilie in der Stumpergasse 1060 Wien besticht durch ihre erstklassige Lage in unmittelbarer Nähe zur pulsierenden Maria Hilfer Straße. Hier genießen Sie eine perfekte Anbindung an öffentliche Verkehrsmittel wie U-Bahn, Straßenbahn und Bus. Zahlreiche Einrichtungen wie Ärzte, Apotheken, Schulen und Supermärkte sind fußläufig erreichbar. Auch kulturelle Highlights und Freizeitmöglichkeiten liegen direkt vor der Tür. Ein idealer Standort für Büro und Praxis!

Beschreibung der Immobilie

Modernes Loft in 1060 Wien: 200m² für Büro oder Praxis – Miete 4.000€!

Willkommen in Ihrem neuen Büro oder Atelier im Herzen von 1060 Wien – einem Ort, der nicht nur durch seine beeindruckende Größe von 200 m² besticht, sondern auch durch seine zentrale Lage und moderne Ausstattung.



Für eine monatliche Miete von nur 4.000,00 € erwartet Sie ein großzügiges, lichtdurchflutetes Loft, das ideal für kreative Köpfe, innovative Start-ups oder medizinische Praxen geeignet ist. Die umfassenden Modernisierungen verleihen dieser Immobilie einen zeitgemäßen Charme, während der Stadtblick durch große Fenster für eine inspirierende Arbeitsatmosphäre sorgt.



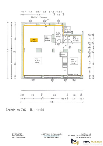
Die Räumlichkeiten bieten nicht nur viel Platz, sondern auch funktionale Details, die den Arbeitsalltag erleichtern. Mit zwei WCs und zwei Bädern sind Sie bestens ausgestattet, um sowohl Mitarbeiter:innen als auch Kund:innen komfortabel zu empfangen. Die hochwertige Einbauküche lädt dazu ein, während der Pausen kulinarische Köstlichkeiten zu genießen.



Ein weiterer Vorteil dieser Immobilie ist die durchdachte Ausstattung. Fliesenböden sorgen für ein stilvolles Ambiente, während die Gas-Etagenheizung für eine angenehme Wärme sorgt. Ein Fahrradraum und ein Abstellraum sind ebenfalls vorhanden und bieten zusätzlichen praktischen Nutzen.



Die Lage könnte nicht besser sein: Sie profitieren von hervorragenden Verkehrsanbindungen. Ob Bus, U-Bahn oder Straßenbahn – die Anbindung ist optimal, sodass Sie und Ihre Kunden mühelos anreisen können. In unmittelbarer Nähe finden Sie zudem alles, was das Leben und Arbeiten angenehm macht: Ärzte, Apotheken, Kliniken, Schulen, Kindergärten, Universitäten sowie Supermärkte und Bäckereien. Auch ein Einkaufszentrum ist nur einen Katzensprung entfernt.



Nutzen Sie diese einmalige Gelegenheit, Ihren Traum vom perfekten Arbeitsplatz in einer der lebenswertesten Städte Europas zu verwirklichen. Lassen Sie sich von der Kombination aus modernem Flair, zentraler Lage und umfassender Infrastruktur begeistern.



Kontaktieren Sie uns noch heute, um mehr über diese außergewöhnliche Immobilie zu erfahren und einen Besichtigungstermin zu vereinbaren. Ihr neues Büro oder Atelier in 1060 Wien wartet auf Sie!



Frau Ildiko PARI, MSc. Tel: 0676/6024667, www.immomaster.at



Bitte beachten Sie, dass wir aufgrund der Nachweispflicht gegenüber dem Eigentümer nur Anfragen mit vollständiger Angabe der Anschrift und Angaben zur Person (Vor- und Nachname, Wohnadresse, Telefonnummer, E-Mail-Adresse) bearbeiten können.



Es wird darauf hingewiesen, dass die angeführten Daten ausschließlich auf Informationen des Verkäufers oder Dritter (z.B. Behörden) beruhen, so daß für die Richtigkeit keine Gewähr übernommen werden kann!



Mehr Objekte finden Sie auf www.immomaster.at!


Möchten Sie eine Bewertung Ihrer Immobilie?

Sie wollen Ihr Haus, Ihr Grundstück oder Ihre Wohnung verkaufen oder vermieten?

Anfragen bitte an: office@immomaster.at



Aufgrund der seit 2014 geltenden EU-Richtlinien zum Fernabsatz- und Auswärtsgeschäfte-Gesetz können Objektunterlagen erst nach Ihrer Bestätigung, dass Sie unser Tätigwerden als Immobilienvermittler wünschen und über Ihre Rücktrittsrechte aufgeklärt wurden, zugesendet werden. Sie erhalten daher eine E-Mail, in der Sie diese Punkte bestätigen müssen. Danach werden Ihnen die Detailunterlagen zum Objekt übermittelt.

Es entstehen durch diese Bestätigung keinerlei Kosten. Der Anspruch auf Provision in der Höhe von 3% des Kaufpreises zzgl. Umsatzsteuer entsteht mit der Rechtswirksamkeit des vermittelten Geschäfts.

Noch nichts gefunden? Wir informieren Sie über geeignete Immobilienangebote noch vor allen anderen.
Legen Sie jetzt Ihren individuellen Suchagenten unter folgendem Link an. Wir schicken Ihnen passende Immobilien exklusiv vorab zu.
Suchagent anlegen - https://immomaster-ildiko-pari.service.immo/registrieren/de


Wir weisen darauf hin, dass zwischen dem Vermittler und dem zu vermittelnden Dritten ein familiäres oder wirtschaftliches Naheverhältnis besteht.


Der Vermittler ist als Doppelmakler tätig.

Infrastruktur / Entfernungen

Gesundheit
Arzt <250m
Apotheke <250m
Klinik <500m
Krankenhaus <500m

Kinder & Schulen
Schule <250m
Kindergarten <250m
Universität <750m
Höhere Schule <1.250m

Nahversorgung
Supermarkt <250m
Bäckerei <250m
Einkaufszentrum <750m

Sonstige
Geldautomat <250m
Bank <500m
Post <500m
Polizei <250m

Verkehr
Bus <250m
U-Bahn <250m
Straßenbahn <250m
Bahnhof <250m
Autobahnanschluss <4.500m

Angaben Entfernung Luftlinie / Quelle: OpenStreetMap

Eckdaten Objektnr. 318

Art: Büro / Praxis
Land: Österreich
Baujahr: 1905
Zustand: Modernisiert
Alter: Altbau
Kaltmiete (netto): 2.941,24 €
Kaltmiete: 3.333,33 €
Miete / m²: 14,71 €
Provision: 3 Bruttomonatsmieten zzgl. 20% USt.
Betriebskosten: 392,09 €
MwSt Gesamt: 666,67 €
Nutzfläche: 200,00 m²
Gesamtfläche: 200,00 m²
Lagerfläche: 54,11 m²
Bürofläche: 137,29 m²
Bäder: 2
WC: 2
Heizwärmebedarf:  B  49,00 kWh/m²a
fGEE:  B  1,02
Immobilie merken Exposé

Ausstattung

Fliesen, Gas, Etagenheizung, Einbauküche, Dusche


Immobilie anfragen


Ihre persönliche Beratung

Immomaster Ildiko Pari

Ildiko Pari

Ildiko Pari

T +43 676 602 46 67