Zwei Büroräumlichkeiten im Altstadtzentrum von Klagenfurt zu kaufen - EINZELVERKAUF möglich

Büro / Praxis , 9020 Klagenfurt am Wörthersee


Beschreibung der Immobilie

Zwei Büroräumlichkeiten im Altstadtzentrum von Klagenfurt zu kaufen - EINZELVERKAUF möglich

Investitionsmöglichkeit in barrierefreie, vermietete Büroflächen direkt Am Alten Platz in Klagenfurt - auch Einzelerwerb möglich
 



Zum Verkauf gelangt ein interessantes und lukratives Investitionspaket direkt am Alten Platz, im historischen Zentrum von Klagenfurt Stadt.



Es handelt sich hierbei um zwei Büroeinheiten im 1. Dachgeschoss eines wunderschönen und gepflegten Gründerzeit-Zinshauses aus dem Jahr 1900, das im Zuge eines Um- und Zubaus 1995 um die Dachgeschossobjekte erweitert wurde. Die erzielte Gesamtnutzfläche der beiden Verkaufsobjekte beträgt ca. 194m².



Die beiden Büroeinheiten sind seit 1996 an einen verlässlichen und sehr seriösen Mieter auf unbefristete Zeit vermietet und garantieren daher stabile und langfristige Mieteinnahmen.



Sollten Sie am Erwerb einer einzelnen Büroeinheit interessiert sein, so bitte ich um Ihre kurze Kontaktaufnahme - Sie bekommen umgehend die Verkaufsdaten der jeweiligen Einheit übermittelt!



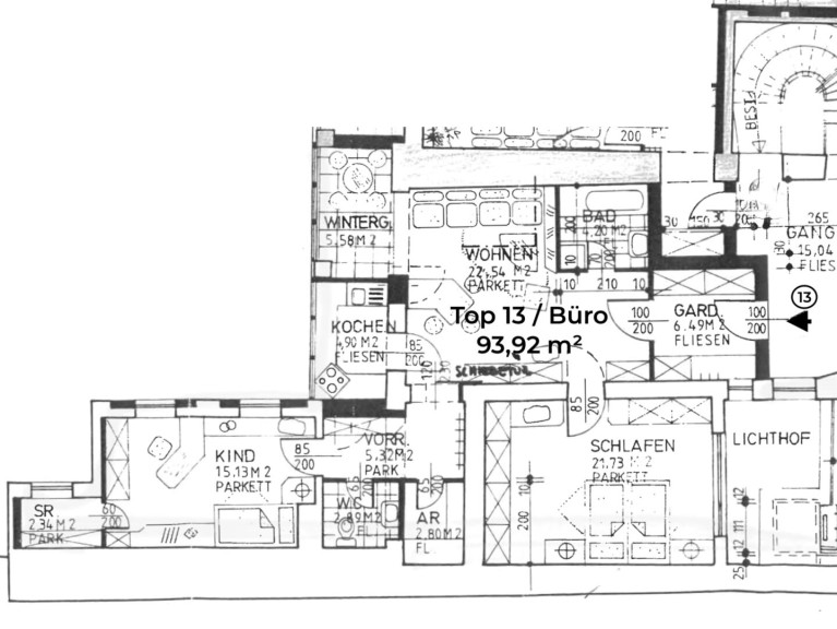
Büro TOP 13: GNF 94,33 m²  - aktuelle monatliche Nettomiete € 1.152,54 - wird ab 31.12.2025 frei und kann somit selbst genutzt werden !



Büro TOP 14: GNF 99,67 m² - aktuelle monatliche Nettomiete € 1.186,04 





Fakten & Daten



  • Historisches Gründerzeithaus aus dem Jahre 1900
  • Frequentierte Toplage in Fußgängerzone
  • Personenaufzug
  • Barrierefreiheit
  • Stabile, langfristige Mieterträge
  • Unbefristet vermietet


Lage und Infrastruktur



Klagenfurt bietet als charmante Landeshauptstadt, direkt am beliebten Wörthersee gelegen, eine Vielzahl von Möglichkeiten und Annehmlichkeiten für ein ausgeglichenes Stadtleben. Die Mikrolage der zum Verkauf stehenden Liegenschaft, inmitten der Fußgängerzone am Alten Platz, ist äußerst attraktiv und bietet eine gelungene Kombination aus urbanem Leben, ausgezeichneten Einkaufsmöglichkeiten sowie einem regen Geschäftsleben. Restaurants, Cafés sowie zahlreiche weitere infrastrukturelle Einrichtungen sind schnell und einfach erreichbar, ebenso das beliebte Naherholungsgebiet am wunderschönen Wörthersee.

Die Infrastruktur ist unbestritten hervorragend - sämtliche Geschäfte und Einrichtungen des täglichen Bedarfs befinden sich fußläufig in unmittelbarer Nähe.



Verkehrsanbindung



Hervorragende Verkehrsanbindung - in wenigen Fahrminuten erreicht man Hauptbahnhof sowie Flughafen.

Perfekte Anbindung an das österreichische Autobahnnetz mittels A2-Südautobahn.





Möchten Sie sich gerne ein persönliches Bild machen? Ich freue mich auf eine Besichtigung mit Ihnen! 



Für weitere Informationen und Besichtigungstermine wenden Sie sich bitte an:



Mag. Ulrike Brunner



********************************************************************************************



ULLI Immo



T: +43 676 4680409



E: office@ulli-immo.at



Sonstiges:



Wir ersuchen um Verständnis, dass wir aufgrund unserer Nachweispflicht gegenüber dem Eigentümer / der Eigentümerin nur Anfragen mit vollständigen Kontaktdaten (Name, Adresse, Telefonnummer, E-Mail) bearbeiten können.



Sämtliche Angaben zum beschriebenen Mietobjekt sind ohne Gewähr und basieren auf Informationen und Unterlagen, die vom Eigentümer der Liegenschaft bzw. Dritten zur Verfügung gestellt wurden. Für Vollständigkeit, Richtigkeit und Aktualität aller Angaben und Abmessungen wird keine Gewähr übernommen. Allfällige Änderungen, Irrtümer, Satz- und Druckfehler vorbehalten.



Provision:



Im Falle eines Vertragsabschlusses beträgt unser Honorar lt. Maklerverordnung für Immobilienmakler (IMV), BGBl. 297/1996 idgF BGBl. II Nr. 268/2010, sowie Maklergesetz, BGB. Nr. 262/1996 idF BGBl. I Nr. 58/2010, 3 % des Kaufpreises zzgl. 20 % USt.




Wir weisen darauf hin, dass zwischen dem Vermittler und dem zu vermittelnden Dritten ein familiäres oder wirtschaftliches Naheverhältnis besteht.


Der Vermittler ist als Doppelmakler tätig.

Infrastruktur / Entfernungen

Gesundheit
Arzt <500m
Apotheke <500m
Krankenhaus <1.000m
Klinik <1.000m

Kinder & Schulen
Schule <500m
Kindergarten <500m
Universität <1.000m
Höhere Schule <1.000m

Nahversorgung
Supermarkt <500m
Bäckerei <500m
Einkaufszentrum <500m

Sonstige
Bank <500m
Geldautomat <500m
Post <500m
Polizei <500m

Verkehr
Bus <500m
Autobahnanschluss <3.500m
Bahnhof <1.500m
Flughafen <3.500m

Angaben Entfernung Luftlinie / Quelle: OpenStreetMap

Eckdaten Objektnr. 1630/338

Art: Büro / Praxis
Land: Österreich
Baujahr: 1900
Zustand: Teil_vollrenoviert
Möbliert: Teil
Alter: Altbau
Kaufpreis: 570.000,00
Kaufpreis / m²: 3.031,91 €
Provision: 3% des Kaufpreises zzgl. 20% USt.
Betriebskosten: 286,26 €
Heizkosten: 34,06 €
MwSt Gesamt: 75,03 €
Wohnfläche: 193,59 m²
Nutzfläche: 188,00 m²
Bürofläche: 188,00 m²
Heizwärmebedarf:  E  151,00 kWh/m²a
fGEE:  E  2,54
Immobilie merken Exposé

Ausstattung

Fernwärme, Personenaufzug


Immobilie anfragen


Ihre persönliche Beratung

Ulli IMMO - Eine Marke der Gerhard Hudej Unternehmensgruppe

Ulrike Brunner

Gerhard Hudej GmbH

T 0676/4680409