Haus mit Garten, Pool und 4 Parkplätzen in Leopoldsdorf bei Wien!

Haus - Einfamilienhaus, 2333 Leopoldsdorf


Beschreibung der Immobilie

Haus mit Garten, Pool und 4 Parkplätzen in Leopoldsdorf bei Wien!

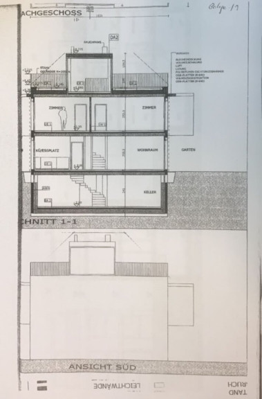
Dieses wundervolle Neubauprojekt befindet sich auf Eigengrund - direkt in Leopoldsdorf bei Wien, (Nähe Himberger Straße), ca. 10 Fahrminuten zum Favoritner Verteilerkreis und 4 Fahrminuten, bzw. 15 Gehminuten vom Leopoldsdorfer Badeteich entfernt.  Dieses Einfamilienhaus lässt die Herzen höher schlagen! Die luxeriöse Ausstattung aus Marmor im dezenten schwarz/weiss Farbemustern gehalten, bietet für eine Großfamilie ausreichend viel Platz  zum Entspannen und Wohlfühlen. Es besteht aus 5 großräumigen Zimmern, verteilt auf 3 Ebenen mit Galerie und zwei Dachterassen nach Osten und nach Süden ausgerichtet. Das Haus ist voll unterkellert und komplett verfliest. Ein Badezimmer befindet sich ebenfalls im Keller, woraus man durchaus ein Gästebereich oder ein Hobbyraum gestalten kann.



Der Garten bietet einen aufbereiteten Swimmingpool mit Anschlüsse, wofür die Aushebung der Erdarbeiten und die Verlegung der Anschlüsse bereits erfolgt sind. Fertigstellung erfolgt durch den neuen Eigentümer.



Die Beheizung der Wohnräume erfolgt mittels einer Luftwärmepumpe, die Böden sind mit Fußbodenheizung verlegt und alle Räume sind mit kontrollierter Wohnraumbelüftung ausgestattet, welches für Zu- und Abluft sorgt.



Parkplätze sind für 4 Autos vorhanden.



Zögern Sie nicht nach einem Besichtigungstermin anzufragen !



Raumaufteilung:



Erdgeschoss:



  • Wohnzimmer: 24,26 m²
  • Vorzimmer: 2,96 m²
  • Abstellraum: 1,54 m²
  • WC: 2,44 m²
  • Küche: 19,41 m²


Obergeschoss:



  • Zimmer 1: 12,07 m²
  • Zimmer 2: 14,76 m²
  • Zimmer 3: 12.20m²
  • Badezimmer: 6,53 m²
  • Flur: 3,90 m²


Dachgeschoss:



  • Galerie: 13,88 m²
  • Terrasse 1: 13,07 m²
  • Terrasse 2: 21.43 m²


Kellergeschoss:



  • Vollunterkellerung: 68,26 m²
  • Freifläche: Garten + aufbereitete Poolanlage


PREIS: VB € 882.000,00





Erfüllt dieser Wohntraum genau Ihre Anforderungen und Wünsche? - Dann zögern Sie nicht und kontaktieren Sie uns. Auf Anfrage übersenden wir Ihnen gerne ein detailliertes Exposé und einen Lageplan.



Frau Deniz Berber steht Ihnen für weitere Informationen und eine persönliche Besichtigung jederzeit gerne telefonisch unter der Mobilnummer 0660 63 60 100 oder per E-Mail an d.berber@favorite-immo.at zur Verfügung!


Hinweis gemäß Energieausweisvorlagegesetz: Ein Energieausweis wurde vom Eigentümer bzw. Verkäufer, nach unserer Aufklärung über die generell geltende Vorlagepflicht, sowie Aufforderung zu seiner Erstellung noch nicht vorgelegt. Daher gilt zumindest eine dem Alter und der Art des Gebäudes entsprechende Gesamtenergieeffizienz als vereinbart. Wir übernehmen keinerlei Gewähr oder Haftung für die tatsächliche Energieeffizienz der angebotenen Immobilie.


Der Vermittler ist als Doppelmakler tätig.

Eckdaten Objektnr. 6109/1535

Art: Haus - Einfamilienhaus
Land: Österreich
Baujahr: 2017
Zustand: Erstbezug
Alter: Neubau
Kaufpreis: 882.000,00
Provision: 3% des Kaufpreises zzgl. 20% USt.
Wohnfläche: 162,00 m²
Grundstücksfl.: 300,00 m²
Zimmer: 5
Bäder: 2
WC: 3
Terrassen: 2
Stellplätze: 4
Garten: 80,00 m²
Keller: 68,26 m²
Immobilie merken Exposé

Ausstattung

Fliesen, Parkett, Fußbodenheizung, Einbauküche, Bad mit Fenster, Badewanne, Dusche, Parkplatz, Swimmingpool


Immobilie anfragen


Ihre persönliche Beratung

Favorite Immobilientreuhand GmbH

Deniz Berber

Favorite Immobilientreuhand GmbH

T +43 1 9711034

H +43 660 6360100

F +4314106879