3-Zi.-Mietwohnung in Bahnhofsnähe

Wohnung , 2460 Bruckneudorf


Beschreibung der Immobilie

3-Zi.-Mietwohnung in Bahnhofsnähe

3-Zimmer-Mietwohnung in Bahnhofsnähe – Heizkosten inklusive



Objektbeschreibung



Diese gepflegte 3-Zimmer-Wohnung befindet sich im 1. Stock eines neu umgebauten Wohnhauses mit insgesamt nur drei Wohneinheiten – ideal für Mieter, die eine ruhige und überschaubare Wohnatmosphäre schätzen. Die Wohnung überzeugt durch eine durchdachte Raumaufteilung und eine moderne Ausstattung.



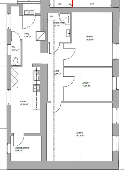
Die Wohnfläche teilt sich wie folgt auf:




  • Vorraum



  • Separates WC



  • Badezimmer



  • Küche mit Platz für einen Esstisch und praktischer Speis



  • Wohnzimmer



  • Zwei separat begehbare Schlafzimmer




Die hochwertige, moderne Küche ist vollständig ausgestattet und verfügt über alle notwendigen Elektrogeräte.



Ausstattung




  • Wohnräume teilmöbliert 



  • Hochwertige Laminatböden



  • Außenrollos in allen Räumen



  • Zentralheizung mit kostengünstiger Luftwärmepumpe inkl. Subzähler



  • Eigener Abstellraum im Hof



  • Gemeinschaftsgarten zur Nutzung für alle Mieter




Hinweis zur Haustierhaltung



In diesem Objekt ist die Hunde­haltung nicht gestattet.



Zusammenfassung



Diese charmante Wohnung bietet modernen Wohnkomfort, eine durchdachte Raumaufteilung und eine hervorragende Lage. Ideal für Singles, Paare oder kleine Familien, die ein angenehmes Wohnumfeld mit bester Infrastruktur suchen.


Der Immobilienmakler erklärt, dass er – entgegen dem in der Immobilienwirtschaft üblichen Geschäftsgebrauch des Doppelmaklers – einseitig nur für den Vermieter tätig ist.

Infrastruktur / Entfernungen

Gesundheit
Arzt <500m
Apotheke <500m
Klinik <500m

Kinder & Schulen
Schule <500m
Kindergarten <500m

Nahversorgung
Supermarkt <500m
Bäckerei <500m
Einkaufszentrum <2.500m

Sonstige
Bank <500m
Geldautomat <500m
Polizei <1.000m
Post <500m

Verkehr
Bus <500m
Autobahnanschluss <2.500m
Bahnhof <500m

Angaben Entfernung Luftlinie / Quelle: OpenStreetMap

Eckdaten Objektnr. 7882/12516

Art: Wohnung
Land: Österreich
Gesamtmiete: 1.165,81
Kaltmiete (netto): 753,36 €
Kaltmiete: 939,82 €
Provision: Gemäß Erstauftraggeberprinzip bezahlt der Abgeber die Provision.
Betriebskosten: 186,46 €
Heizkosten: 110,00 €
MwSt Gesamt: 115,99 €
Wohnfläche: 94,00 m²
Zimmer: 3
Bäder: 1
WC: 1
Immobilie merken Exposé

Immobilie anfragen


Ihre persönliche Beratung

Brigitte KIRCHMAYER

BIT Immobilien Handelsg.m.b.H.

T +43 2162 64764

H + 43 676 435 45 97