Familienwohnung mit großer Wohnküche in AKH- und U6-Nähe

Wohnung - Etage, 1170 Wien


U6 Michelbeuern/AKH, U6 Alser Straße

Beschreibung der Immobilie

Familienwohnung mit großer Wohnküche in AKH- und U6-Nähe

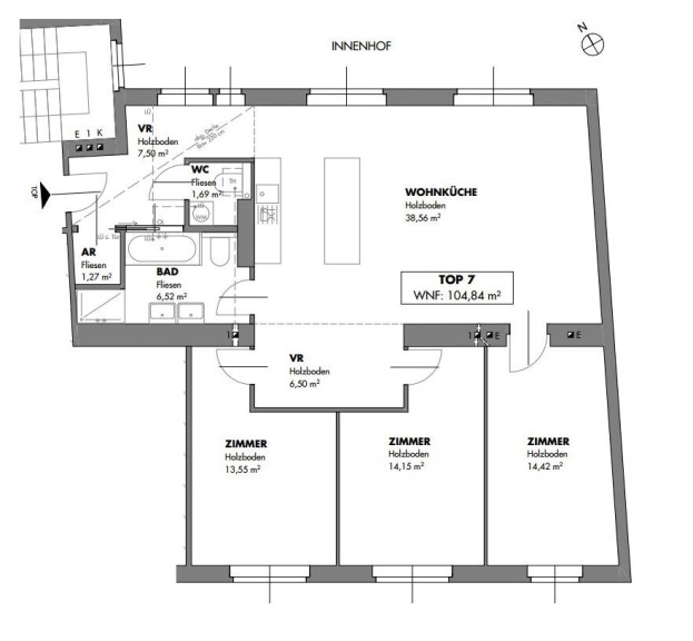
Zum Verkauf gelangt diese 4-Zimmer-Wohnung mit einer ca. 39 m² großen, hofseitigen Wohnküche und drei ca. gleich großen Zimmern.



Die Wohnung befindet sich nahe AKH und U6.





Über den Vorraum gelangen Sie in die ca. 39 m² große, hofseitige Wohnküche, aus der Sie in drei Zimmer mit je ca. 14 m² sowie das Bad mit Badewanne, Dusche und WC kommen. Die Wohnung bietet Ihnen auch noch ein Extra-WC und einen Abstellraum, die beide aus dem Vorraum aus begehbar sind.





Highlights



Wohnung in Top-Zustand

große Wohnküche

moderner Grundriss

sehr gute Lage dank AKH- und U-Bahn-Nähe

Hernalser Einkaufsstraßen ums Eck





Umgebung/öffentliche Anbindung



U6 Stationen Alser Straße und Michelbeuern/AKH in Gehweite

Straßenbahnstation 43 Richtung Schottentor/Innenstadt in Gehweite








Infrastruktur / Entfernungen

Gesundheit
Arzt <500m
Apotheke <500m
Klinik <500m
Krankenhaus <1.000m

Kinder & Schulen
Schule <500m
Kindergarten <500m
Universität <1.000m
Höhere Schule <1.000m

Nahversorgung
Supermarkt <500m
Bäckerei <500m
Einkaufszentrum <500m

Sonstige
Geldautomat <500m
Bank <500m
Post <500m
Polizei <500m

Verkehr
Bus <500m
U-Bahn <500m
Straßenbahn <500m
Bahnhof <500m
Autobahnanschluss <3.000m

Angaben Entfernung Luftlinie / Quelle: OpenStreetMap

Eckdaten Objektnr. 1619/7915

Art: Wohnung - Etage
Land: Österreich
Zustand: Teil_vollrenoviert
Kaufpreis: 499.000,00
Provision: 3% des Kaufpreises zzgl. 20% USt.
Betriebskosten: 293,31 €
MwSt Gesamt: 29,33 €
Wohnfläche: 105,00 m²
Zimmer: 4
Bäder: 1
WC: 2
Heizwärmebedarf:  E  195,00 kWh/m²a
fGEE:  D  2,34
Immobilie merken Exposé

Ausstattung

Gas, Etagenheizung, Fußbodenheizung, Wohnküche / offene Küche, Badewanne, Dusche


Immobilie anfragen


Ihre persönliche Beratung

RE/MAX Real Experts Immobilien lifetime GmbH

Alice Prat (Team Hubert Koller)

RE/MAX Real Experts Immobilien lifetime GmbH

T +43 1 470 25 00

H +43 664 851 58 71