NEUBAUBÜRO nahe PRATERSTERN

Büro / Praxis , 1020 Wien


Beschreibung der Immobilie

NEUBAUBÜRO nahe PRATERSTERN

MODERNE BÜROFLÄCHEN nächst PRATERSTERN & NORDBAHNHOF

Zur Vermietung gelangen moderne Büroräumlichkeiten in zentraler Lage des 2.Bezirks mit gutem U-Bahnanschluß.

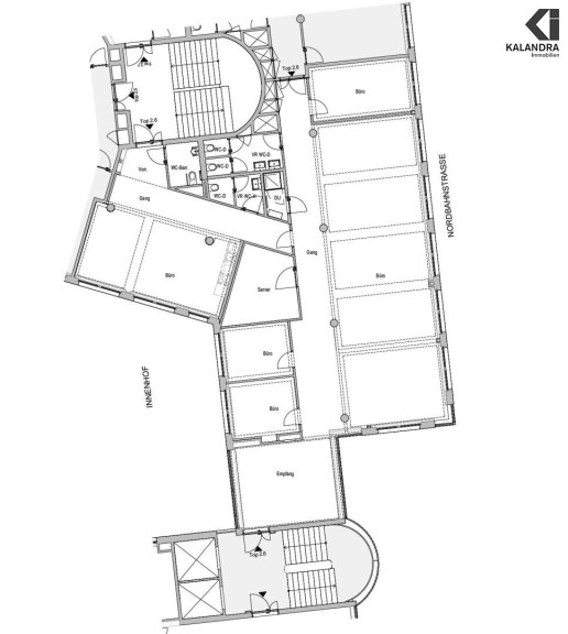
Raumaufteilung:
Vorraum, großer Empfang, 4-8 Büroräume, Küche, Badezimmer, 4 WC, ein Duschbad, Lager-/ Serverraum.

Ausstattung:
- die Räumlichkeiten werden neu adaptiert und ausgemalt übergeben
- Fensterbank-Kabelkanäle
- Raster-Deckenleuchten sind vorhanden
- Hauszentralheizung (Fernwärme)

Zusätzlich zu den oa. Betriebskosten wird ein monatliches Heizkosten-Akonto von Euro 329,- + 20% USt. vorgeschrieben, einmal jährlich findet eine verbrauchsabhängige Abrechnung statt.

Die bestehende Raumaufteilung (siehe Plan) ist abänderbar (Gipskarton-Leichtbauwände).
Die Durchführung kann vom Vermieter organisiert werden, die Kosten für entsprechende Umbauarbeiten müsste der Mieter tragen.

Garagenplätze sind im Haus ab Euro 98,- + 20% USt./ Monat anmietbar.

Angeboten wird ein auf bis zu 10 Jahre befristetes Mietverhältnis mit dreijährigem, mieterseitgen Kündigungsverzicht.
Es werden 6 Bruttomonatsmieten (Bankgarantie möglich) als Kaution verlangt.


Infrastruktur / Entfernungen

Gesundheit
Arzt <500m
Apotheke <500m
Klinik <500m
Krankenhaus <1.500m

Kinder & Schulen
Schule <500m
Kindergarten <500m
Universität <1.500m
Höhere Schule <1.500m

Nahversorgung
Supermarkt <500m
Bäckerei <500m
Einkaufszentrum <2.000m

Sonstige
Geldautomat <500m
Bank <500m
Post <500m
Polizei <500m

Verkehr
Bus <500m
U-Bahn <500m
Straßenbahn <500m
Bahnhof <500m
Autobahnanschluss <2.000m

Angaben Entfernung Luftlinie / Quelle: OpenStreetMap

Eckdaten Objektnr. 18549

Art: Büro / Praxis
Land: Österreich
Baujahr: 1996
Zustand: Gepflegt
Kaltmiete (netto): 3.445,91 €
Kaltmiete: 4.299,44 €
Provision: 3 Bruttomonatsmieten zzgl. 20% USt.
Betriebskosten: 853,53 €
MwSt Gesamt: 859,89 €
Nutzfläche: 265,07 m²
Zimmer: 8
WC: 4
Heizwärmebedarf:  B  49,00 kWh/m²a
Immobilie merken Exposé

Ausstattung

Zentralheizung, Personenaufzug


Immobilie anfragen


Ihre persönliche Beratung

KALANDRA Immobilien Robert Kalandra e.U.

Mag. Robin Kalandra

KALANDRA Immobilien Robert Kalandra e.U.

T +43-1533326913

H +43-69911804004

F +43-1-533-32-69-20