Moderne Bürofläche in Bestlage – 1030 Wien

Büro / Praxis - Bürofläche, 1030 Wien


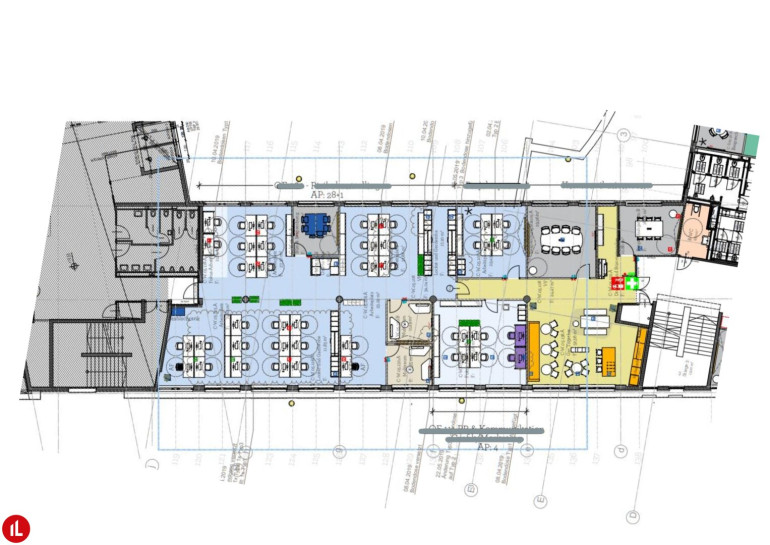
Beschreibung der Immobilie

Moderne Bürofläche in Bestlage – 1030 Wien

Repräsentative Büroeinheit mit hervorragender Verkehrsanbindung!



Diese großzügige und moderne Bürofläche befindet sich in einem gepflegten Bürogebäude in ausgezeichneter Lage des 3. Bezirks. Sie überzeugt durch helle, offene Räume, eine durchdachte Raumstruktur und ein angenehmes Arbeitsklima.



Die hochwertige Ausstattung mit lärmschluckendem Vorwerk-Teppichboden, moderner Klimaanlage und flexiblen Systemtrennwänden ermöglicht eine individuelle Gestaltung – ideal für Unternehmen, die Wert auf Komfort, Effizienz und ein professionelles Umfeld legen.



Außenliegender Sonnenschutz, Kunststofffenster in Weiß sowie eine effiziente Fernwärmeheizung sorgen für ein ausgeglichenes Raumklima das ganze Jahr über. Eine vollausgestattete Küche mit Geschirrspüler, Mikrowelle und Kühlschrank steht den Mitarbeitern ebenso zur Verfügung wie eine Kantine und ein Café im Haus (Leonardi/Euerst).



Die Büroeinheit bietet damit eine moderne, funktionale Arbeitsumgebung mit hervorragender Anbindung an das öffentliche Verkehrsnetz (U3 Erdberg) sowie die Südost-Tangente. Die nahegelegene APCOA-Garage, nutzbar über die Flow App, ergänzt das Angebot optimal.






Objektdetails




  • Bauweise: Stahlbeton, außen wärmegedämmt



  • Fenster: Kunststofffenster weiß mit außenliegendem Sonnenschutz



  • Raumteilung: Systemtrennwände / Trockenbau – individuell anpassbar



  • Boden: hochwertiger, lärmschluckender Vorwerk-Teppichboden



  • Innentüren: Systembau in Holzoptik



  • Klimatisierung: moderne Klimaanlage (komplett erneuert)



  • Heizung: Fernwärme über Heizkörper



  • Lift: allgemeiner Aufzug (ohne Schlüsselbedienung)



  • WCs: getrennte Sanitäranlagen (1 Damen-, 1 Herren-WC)



  • Barrierefreiheit: kein Behinderten-WC vorhanden





Infrastruktur & Ausstattung




  • Küche / Pausenraum: mit Einbauküche (Geschirrspüler, Mikrowelle, Kühlschrank)



  • Kantine im Haus: Betriebskantine & Café „Leonardi/Euerst“ für alle Mieter



  • Internet: eigener Internetanschluss erforderlich



  • Möblierung: unmöbliert, hochwertige Büromöbel (Neudörfler, Bj. 2019) nach Absprache möglich



  • Bauliche Änderungen: nach vorheriger Information und Bewilligung des Vermieters (Rückbaupflicht bei Mietende)





Verkehrsanbindung & Lagevorteile



Die Dietrichgasse liegt im dynamischen Stadtteil Erdberg, nur wenige Gehminuten von der U3-Station Erdberg entfernt.




  • Öffentlich: U3, Bus 77A, 80A, Straßenbahn 18 in Gehdistanz



  • PKW: schnelle Anbindung an Erdberger Lände und A23 (Südost-Tangente)



  • Parken: öffentliche APCOA-Garage im Haus (Nutzung via Flow App)





Betriebskosten (netto, exemplarisch lt. BK-Abrechnung)



Die Betriebskosten beinhalten u. a.: (rd. 26.037 € p.A. und somit rd. 2.170 € pro Monat)




  • Allgemeinstrom, Liftwartung, Müllentsorgung



  • Reinigung und Instandhaltung der Allgemeinflächen



  • Versicherung, Verwaltungskosten



  • Heizkosten (Fernwärme) belaufen sich auf rd. 4.553 € p.A. und somit rd. 380 € pro Monat





Arbeitsumfeld & Atmosphäre



Helle, offene Räume mit großen Fensterflächen schaffen ein freundliches und produktives Arbeitsklima. Die moderne Klimatisierung, der lärmdämpfende Bodenbelag und die ruhige Lage tragen zu einem angenehmen Raumgefühl bei – geschätzt von Mitarbeitern und Geschäftspartnern gleichermaßen.




IHRE INVESTITION: monatlich EUR 10 493,86



inkl. Heizkosten und Betriebskosten



Kaution: 3 Bruttomonatsmieten inkl. Heizung und Strom



Stromkosten belaufen sich aktuell auf rd. 3.037 € p.A. und somit rd. 253 € pro Monat



Ab sofort verfügbar.




LEINER KUNDEN HABEN'S BESSER! Ein GRATIS Übersiedlungsauto steht für Ihren Umzug bereit.




KONTAKTIEREN SIE UNS |  Paul Hanifl - 0664 125 11 11



Immobilientreuhänder | Immobilienmakler, Immobilienverwalter & Bauträger



Alleinbeauftragte Immobilienkanzlei



Unser Erfolgshonorar beträgt 3% zuzüglich 20% Umsatzsteuer



Ihre Anfrage ist uns wichtig und wertvoll!



In Entsprechung des FAGG (Fern- und Auswärtsgeschäfte-Gesetz) und des VRUG (Verbraucherrechte-Richtlinie-Umsetzungsgesetz) ist es uns nur möglich, Termine nach Erhalt einer schriftlichen Anfrage mit vollständigen Kontaktangaben (Name, Adresse, Telefon, Email) zu vereinbaren. Dies gilt auch für die Weitergabe relevanter Informationen des Objektes. Wir danken für Ihr Verständnis und freuen uns, Sie bald als Kunde begrüßen zu dürfen.

Infrastruktur / Entfernungen

Gesundheit
Arzt <500m
Apotheke <500m
Klinik <500m
Krankenhaus <1.000m

Kinder & Schulen
Schule <500m
Kindergarten <500m
Universität <1.000m
Höhere Schule <1.000m

Nahversorgung
Supermarkt <500m
Bäckerei <500m
Einkaufszentrum <1.000m

Sonstige
Geldautomat <500m
Bank <500m
Post <500m
Polizei <500m

Verkehr
Bus <500m
U-Bahn <500m
Straßenbahn <1.000m
Bahnhof <500m
Autobahnanschluss <1.000m

Angaben Entfernung Luftlinie / Quelle: OpenStreetMap

Eckdaten Objektnr. 21885

Art: Büro / Praxis - Bürofläche
Land: Österreich
Baujahr: 1973
Alter: Neubau
Kaltmiete (netto): 6.194,88 €
Kaltmiete: 8.364,88 €
Provision: 30.113,57 € inkl. 20% USt.
Betriebskosten: 2.170,00 €
Heizkosten: 380,00 €
MwSt Gesamt: 1.748,98 €
Gesamtfläche: 516,24 m²
Bürofläche: 277,90 m²
Heizwärmebedarf:  C  55,50 kWh/m²a
fGEE:  C  1,28
Immobilie merken Exposé

Ausstattung

Teppichboden, Einbauküche, Personenaufzug, Teeküche


Immobilie anfragen


Ihre persönliche Beratung

Immobilienwelt Leiner

Paul Hanifl

Immobilienwelt Leiner

H +43 664 125 11 11