Kaufen statt Mieten! 4-Zimmer-Eigentumswohnung im beliebten Ortsteil Leoben-Göss.
Wohnung
,
8700
Göß
8700 Leoben/Göss
Beschreibung der Immobilie
Kaufen statt Mieten! 4-Zimmer-Eigentumswohnung im beliebten Ortsteil Leoben-Göss.
Zum Verkauf steht eine gepflegte 4-Zimmer-Eigentumswohnung mit einer Nutzfläche von ca. 88,20 m² sowie einer südseitig ausgerichteten Loggia mit rund 5,23 m².
Die Wohnung befindet sich in einem Mehrparteienhaus aus dem Jahr 1961 im 3.und letztem Stockwerk (ohne Lift) in sehr guter Wohnlage in Leoben-Göss.
Das Gebäude präsentiert sich in gutem Allgemeinzustand. Dach und Fassade wurden bereits saniert, die Dachboden- und Kellerdecken gedämmt, die Stiegenhausfenster erneuert und das Treppenhaus wird aktuell neu ausgemalt. Sämtliche dafür anfallenden Kosten sind bereits beglichen.
Die Wohnung selbst wurde vor rund 20 Jahren modernisiert (Bad, Fenster, Elektrik, Innentüren, Böden etc.) und befindet sich in einem gepflegten Zustand.
Durch die umfassenden Modernisierungen entspricht sie nicht mehr dem ursprünglichen Baujahr und wirkt zeitgemäß und einladend.
Die Wohnung wird mit Küche und Badezimmereinrichtung verkauft. Zusätzlich wurde im Wohnzimmer eine Klimaanlage installiert.
Eine tolle Raumaufteilung ermöglicht ihnen eine individuelle Nutzung und ergibt so eine begehrte 4 Zimmer Wohnung (Wohnzimmer, 3 Schlafräume).
Beheizt wird dieses Objekt mit einer eigenen Gas-Zentralheizung (somit regeln und steuern sie die Heizung für ihre Einheit selbst).
Zur Wohnung gehört ein großzügiges Kellerabteil. Allgemeinkellerflächen stehen für Fahrräder usw. zur Verfügung.
Die begehrte Göss Lage mit allen Einrichtungen des täglichen Lebens in unmittelbarer Nähe und der fußläufig erreichbaren Schule und Kindergarten sprechen für diese Wohnung.
Das Stadtzentrum von Leoben ist nur wenige Autominuten oder mit dem öffentliche Verkehrsmittel erreichbar. Die Autobahnanbindung ist in unmittelbarer Nähe.
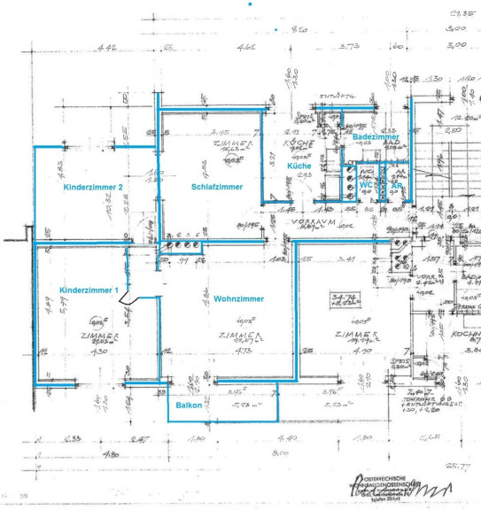
Raumeinteilung:
Vorraum, Wohnzimmer, Schlafzimmer, Kinderzimmer 1, Kinderzimmer 2, Küche mit Essbereich, Badezimmer, WC, Abstellraum, Loggia. Kellerabteil.
Besonders hervorzuheben ist:
- begehrte Göss Lage
- gute Raumaufteilung
- guter Zustand - sofort beziehbar
- eigene Gaszentralheizung
Die Liegenschaft kann sofort übernommen werden.
HWB: 150,50 kWh/m²a
Kaufpreis: € 129.000,-
BK: 278,59- inkl. Rücklage
Honorar: 3% vom Kaufpreis zzgl. 20% MwSt.
Infrastruktur / Entfernungen
Gesundheit
Arzt <500m
Apotheke <500m
Krankenhaus <3.000m
Kinder & Schulen
Schule <500m
Universität <2.500m
Kindergarten <500m
Höhere Schule <3.000m
Nahversorgung
Supermarkt <500m
Bäckerei <500m
Einkaufszentrum <2.500m
Sonstige
Bank <500m
Geldautomat <500m
Post <500m
Polizei <1.500m
Verkehr
Bus <500m
Autobahnanschluss <2.000m
Bahnhof <3.500m
Angaben Entfernung Luftlinie / Quelle: OpenStreetMap
Eckdaten Objektnr. 961/35838
| Art: | Wohnung |
| Land: | Österreich |
| Baujahr: | 1961 |
| Kaufpreis: | 129.000,00 € |
| Provision: | 3% des Kaufpreises zzgl. 20% USt. |
| Nutzfläche: | 88,20 m² |
| Bäder: | 1 |
| WC: | 1 |
| Heizwärmebedarf: | E 122,80 kWh/m²a |
| fGEE: | D 1,95 |
Ausstattung
Gas
Ihre persönliche Beratung
Dieser Makler ist ein offizielles Mitglied des IR – ir.at Mehr Erfahren

