Flexibel einsetzbare Gewerbefläche im ersten Obergeschoss

Halle / Lager / Produktion , 2334 Vösendorf


SCS Vösendorf

Beschreibung der Immobilie

Flexibel einsetzbare Gewerbefläche im ersten Obergeschoss

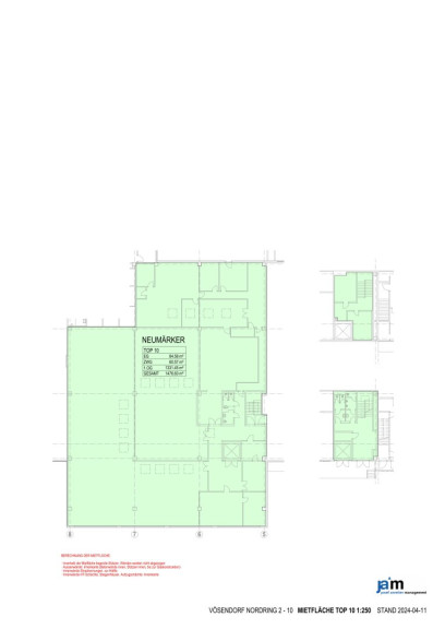
Attraktive Fläche im ersten Obergeschoss direkt neben der SCS Vösendorf! Zur Vermietung steht ein flexibel nutzbares Objekt mit ca. 1.476m² Nutzfläche direkt neben der SCS Vösendorf. Ein Teil der Fläche wurde bereits als Büro verwendet und der andere Teil ist hoch genug um Hochregale zu installieren. Die Raumhöhe beträgt bis zu 5,6m. Ein Lastenaufzug (5.000kg) führt direkt vor der eigenen Laderampe in das erste Obergeschoss. Die Heizanlage wurde 2021 erneuert und besteht aus  Heizlüftern und Radiatoren. 



Es besteht auch eine Kaufoption. KP: € 2 Mio.



Für Fragen oder einen Besichtigungstermin stehe ich jederzeit  zur Verfügung.



Bernhard FRIEDRICH 

+43 660 117 90 20 

bf@finallyhome.at




Hinweis gemäß Energieausweisvorlagegesetz: Ein Energieausweis wurde vom Eigentümer bzw. Verkäufer, nach unserer Aufklärung über die generell geltende Vorlagepflicht, sowie Aufforderung zu seiner Erstellung noch nicht vorgelegt. Daher gilt zumindest eine dem Alter und der Art des Gebäudes entsprechende Gesamtenergieeffizienz als vereinbart. Wir übernehmen keinerlei Gewähr oder Haftung für die tatsächliche Energieeffizienz der angebotenen Immobilie.


Wir weisen darauf hin, dass zwischen dem Vermittler und dem zu vermittelnden Dritten ein familiäres oder wirtschaftliches Naheverhältnis besteht.


Der Vermittler ist als Doppelmakler tätig.

Infrastruktur / Entfernungen

Gesundheit
Arzt <2.000m
Apotheke <500m
Klinik <4.000m
Krankenhaus <3.500m

Kinder & Schulen
Schule <2.000m
Kindergarten <1.500m
Universität <7.000m
Höhere Schule <5.000m

Nahversorgung
Supermarkt <500m
Bäckerei <1.000m
Einkaufszentrum <1.000m

Sonstige
Geldautomat <500m
Bank <1.500m
Post <1.500m
Polizei <1.000m

Verkehr
Bus <500m
U-Bahn <2.000m
Straßenbahn <5.000m
Bahnhof <500m
Autobahnanschluss <500m

Angaben Entfernung Luftlinie / Quelle: OpenStreetMap

Eckdaten Objektnr. 1819/48

Art: Halle / Lager / Produktion
Land: Österreich
Zustand: Gepflegt
Kaltmiete (netto): 10.613,95 €
Kaltmiete: 12.423,53 €
Miete / m²: 7,19 €
Provision: 44.724,71 € inkl. 20% USt.
Betriebskosten: 1.809,58 €
Heizkosten: 1.007,96 €
MwSt Gesamt: 2.686,30 €
Nutzfläche: 1.476,00 m²
Immobilie merken Exposé

Ausstattung

Estrichboden, Laminatboden, Gas, Zentralheizung, Lastenaufzug


Immobilie anfragen


Ihre persönliche Beratung

Bernhard Friedrich

finallyHOMEreal GmbH

T +43 660 117 9020