Maisonette-Wohnung in Fohnsdorf/Hetzendorf mit Balkon

Wohnung - Maisonette, 8753 Fohnsdorf , Kolonieweg 2


Fohnsdorf-Ortsteil Hetzendorf. In der Nähe der Arena Fohnsdorf.

Beschreibung der Immobilie

Maisonette-Wohnung in Fohnsdorf/Hetzendorf mit Balkon

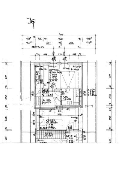
Zum Angebot steht eine gut aufgeteilte Maisonette-Wohnung.

Die Wohnung wurde nach dem letzten Mietverhältnis teilsaniert und befindet sich in einem sehr guten Zustand.



Sie liegt im ersten Stock eines Mehrparteienhauses und verfügt über einen Vorraum, eine Küche, ein Wohnzimmer, einen Abstellraum, ein Schlafzimmer, ein Badezimmer mit Badwanne, ein WC sowie einen Balkon.



Vom Vorraum aus gelangt man in das WC, den Abstellraum, die Küche und das Wohnzimmer.

Das Wohnzimmer bietet zudem Zugang zu einem ca. 6 m² großen Balkon.



Über eine Holz-Innentreppe erreicht man das Obergeschoss, in dem sich das Badezimmer, ein Schlafzimmer und ein zusätzlicher Abstellraum befinden.



Bei Interesse oder offenen Fragen können Sie sich jederzeit gerne bei uns melden.









Noch nichts gefunden? Wir informieren Sie über geeignete Immobilienangebote noch vor allen anderen.
Legen Sie jetzt Ihren individuellen Suchagenten unter folgendem Link an. Wir schicken Ihnen passende Immobilien exklusiv vorab zu.

Suchagent anlegen - https://realbuero-knitl.service.immo/registrieren/de


Hinweis gemäß Energieausweisvorlagegesetz: Ein Energieausweis wurde vom Eigentümer bzw. Verkäufer, nach unserer Aufklärung über die generell geltende Vorlagepflicht, sowie Aufforderung zu seiner Erstellung noch nicht vorgelegt. Daher gilt zumindest eine dem Alter und der Art des Gebäudes entsprechende Gesamtenergieeffizienz als vereinbart. Wir übernehmen keinerlei Gewähr oder Haftung für die tatsächliche Energieeffizienz der angebotenen Immobilie.


Der Immobilienmakler erklärt, dass er – entgegen dem in der Immobilienwirtschaft üblichen Geschäftsgebrauch des Doppelmaklers – einseitig nur für den Vermieter tätig ist.

Infrastruktur / Entfernungen

Gesundheit
Arzt <1.775m
Apotheke <1.775m
Krankenhaus <3.650m

Kinder & Schulen
Schule <1.700m
Kindergarten <3.675m

Nahversorgung
Supermarkt <825m
Bäckerei <800m
Einkaufszentrum <5.225m

Sonstige
Bank <1.875m
Geldautomat <1.875m
Post <1.850m
Polizei <1.600m

Verkehr
Bus <225m
Autobahnanschluss <725m
Bahnhof <2.550m
Flughafen <4.600m

Angaben Entfernung Luftlinie / Quelle: OpenStreetMap

Eckdaten Objektnr. 8419/193

Art: Wohnung - Maisonette
Land: Österreich
Baujahr: 1900
Zustand: Gepflegt
Alter: Altbau
Gesamtmiete: 602,11
Kaltmiete (netto): 296,29 €
Kaltmiete: 446,96 €
Provision: Gemäß Erstauftraggeberprinzip bezahlt der Abgeber die Provision.
Betriebskosten: 150,67 €
Heizkosten: 92,04 €
MwSt Gesamt: 63,11 €
Wohnfläche: 63,00 m²
Zimmer: 2
Bäder: 1
WC: 1
Balkone: 1
Immobilie merken Exposé

Ausstattung

Laminatboden, Gas, Zentralheizung, Parkplatz


Immobilie anfragen


Ihre persönliche Beratung

Realbüro Knitl GmbH

Ema Salkic-Hadzipasic

Realbüro Knitl GmbH

T 035732247

H 06649160934